Добавить в корзинуПозвонить
Найти в Дзене

Каркасный дом 6х6 + терасса 2х6м

Небольшой дом с двумя спальнями. Двухскатной крышей в один этаж Купить этот готовый проект на нашем сайте со скидкой 1. Спальня – 6,18м2
2. Спальня – 6,15м2
3. Кухня-гостиная – 14,65м2
4. Терраса – 12,25м2
5. СУ – 1,20м2
6. Крыльцо – 1,20м2
7. Кладовая – 1,01м2 Итого: 42,64м2 Боковая стенка внутри помещения –  3м,
Высота в коньке – 4,329м Пол: 200мм
Наружные стены: 150мм
Внутренние перегородки: 150мм и 100мм
Кровля: 200мм Сваи: 23шт - 100 000 р
Доска на каркас: 13м3 - 325 000 р.
Утеплитель: 30м3 - 100 000р
Пленка мембрана на каркас снаружи вкруг: 3 рулона - 15 000р
Пленка пароизоляция: 2 рулона - 5 000р
Наружная отделка фасада: 85м2 - 170 000р (можно дешевле)
Вн.Отделка стен: 161м2 - 200 000р (можно дешевле)
Отделка полов: 33м2 - 40 000р (можно дешевле)
Отделка потолков: 44м2 - 40 000р
Пол на террасе: 15м2 - 15 000р (лиственница или дкп)
Кровля: 88м2 - 160 000р (по 2тр за м2, можно и дешевле)
Итого: 1 170 000р за 42 м2, те 27 800р за м2 Этот проект уже готов и можно купить со скид
Оглавление

Небольшой дом с двумя спальнями. Двухскатной крышей в один этаж

Купить этот готовый проект на нашем сайте со скидкой

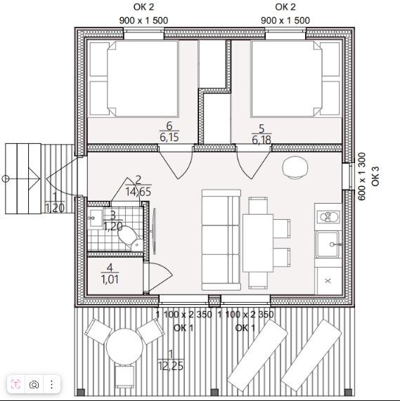
Планировка:

1. Спальня – 6,18м2
2. Спальня – 6,15м2
3. Кухня-гостиная – 14,65м2
4. Терраса – 12,25м2
5. СУ – 1,20м2
6. Крыльцо – 1,20м2
7. Кладовая – 1,01м2

Итого: 42,64м2

-2

Высота потолков:

Боковая стенка внутри помещения –  3м,
Высота в коньке – 4,329м

-3

Толщина утепления:

Пол: 200мм
Наружные стены: 150мм
Внутренние перегородки: 150мм и 100мм
Кровля: 200мм

-4

Сколько стоит?

Сваи: 23шт - 100 000 р
Доска на каркас: 13м3 - 325 000 р.
Утеплитель: 30м3 - 100 000р
Пленка мембрана на каркас снаружи вкруг: 3 рулона - 15 000р
Пленка пароизоляция: 2 рулона - 5 000р
Наружная отделка фасада: 85м2 - 170 000р (можно дешевле)
Вн.Отделка стен: 161м2 - 200 000р (можно дешевле)
Отделка полов: 33м2 - 40 000р (можно дешевле)
Отделка потолков: 44м2 - 40 000р
Пол на террасе: 15м2 - 15 000р (лиственница или дкп)
Кровля: 88м2 - 160 000р (по 2тр за м2, можно и дешевле)
Итого: 1 170 000р за 42 м2, те 27 800р за м2

Этот проект уже готов и можно купить со скидкой на нашем сайте Домокея

Если вы хотите что-то своё - мы сделаем проект под заказ