Добавить в корзинуПозвонить
Найти в Дзене
Застройщик «ДСК-1»

Квартира для большой семьи: какой она должна быть?

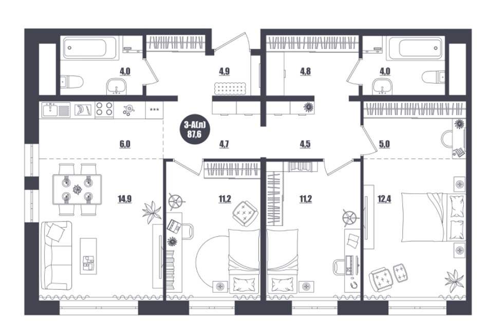
Для больших семей встаёт вопрос, как найти подходящую квартиру, желательно, в новом доме и с удобной инфраструктурой. Разбираемся вместе. Если вы хотите уютное пространство с большой гостиной, где можно встречать гостей или собираться своей большой семьей, с отдельными комнатами для каждого, то обратите внимание на трехкомнатные квартиры в жилых комплексах «Крылов». Квартиры есть в сданном доме №3, а так же в строящихся домах № 4.1, 4.2 и 4.4. В этой статье мы разберем, почему большим семьям с детьми стоит присмотреться к квартирам в наших домах. Посмотрим подробнее на примере квартиры площадью 87,6 м². В планировке такого формата у каждого члена семьи будет личное пространство и одновременно возможность наслаждаться совместным пребыванием в общих зонах. Здесь предусмотрены отдельные комнаты, которые можно использовать функционально и по своему усмотрению: как спальные комнаты для родителей и ребенка, или можно адаптировать одну комнату, как рабочий кабинет. Детскую можно расположить п

Для больших семей встаёт вопрос, как найти подходящую квартиру, желательно, в новом доме и с удобной инфраструктурой. Разбираемся вместе. Если вы хотите уютное пространство с большой гостиной, где можно встречать гостей или собираться своей большой семьей, с отдельными комнатами для каждого, то обратите внимание на трехкомнатные квартиры в жилых комплексах «Крылов». Квартиры есть в сданном доме №3, а так же в строящихся домах № 4.1, 4.2 и 4.4. В этой статье мы разберем, почему большим семьям с детьми стоит присмотреться к квартирам в наших домах.

Какой должна быть идеальная квартира
для большой семьи?

Посмотрим подробнее на примере квартиры площадью 87,6 м².

В планировке такого формата у каждого члена семьи будет личное пространство и одновременно возможность наслаждаться совместным пребыванием в общих зонах. Здесь предусмотрены отдельные комнаты, которые можно использовать функционально и по своему усмотрению: как спальные комнаты для родителей и ребенка, или можно адаптировать одну комнату, как рабочий кабинет. Детскую можно расположить подальше от кухни и входа, чтобы дети спокойно отдыхали по вечерам, а родители могли проводить время на кухне за ужином друг с другом. Если в семье есть творческий подросток, то одну из комнат можно легко превратить в гостевую для встреч с друзьями или занятий музыкой. А вот большая кухня-гостиная идеальна для семейных встреч по вечерам за ароматным ужином и в праздники. Места хватит для всех.

-2

В корпусе №4.4 представлены квартиры с уже готовой чистовой отделкой от застройщика. Ремонт будет выполнен с использованием материалов светлых тонов, чтобы универсальный интерьер можно было легко адаптировать под любой дизайн-проект. В ванных комнатах и санузлах будет полный комплект необходимого сантехнического оборудования. Покупателям останется только занести мебель, повесить шторы, расставить предметы интерьера – и никакой строительной пыли и шума вокруг.


В корпусе №4.1 предлагаются
квартиры с мебелью – новый формат для рынка жилья нашего округа. Здесь уже будет установлен кухонных гарнитур с варочной поверхностью, духовым шкафом и вытяжкой, а также обеденный стол, вместительный платяной шкаф. Конечно, будет выполнена отделка и установлена сантехника. Такое готовое решение от застройщика избавляет покупателей от лишних хлопот по обустройству квартиры и дополнительных трат.

К тому же, сейчас есть время успеть прибрести жилье от застройщика «ДСК-1» по сниженной ставке:

спецпрограмма «Семейная ипотека» от 2,2%*

Подробности условий можно получить у менеджера. Мы можем сделать персональный расчет для вас и подадим заявки в банки для одобрения абсолютно бесплатно.

Получите подборку квартир: krylov.dsk1.one

Справочно о проекте:

ЖК «Крылов» расположен в 39-м микрорайоне Сургута. Общая площадь микрорайона превысит 21 га, где будут проживать 6 344 жителя. Здесь запроектированы разноэтажные дома  высотой от 9 до 16 этажей, а также паркинг на 498 машиномест и соседский центр. Придомовая территория будет благоустроена, появятся детские и спортивные площадки, велоинфраструктура для любителей активного отдыха и зона для выгула домашних питомцев.

Справочно о компании:

«ДСК-1» — старожил среди застройщиков в России. Компания ведет свою историю с 70-х годов. За минувшие полвека истории «ДСК-1» построил множество кварталов Сургута  и полностью модернизировал производство, перейдя от строительства типовых домов советского стандарта к современным жилым комплексам, учитывающим потребности горожанина. Застройщик занимает 1 место по региону по объемам возводимой жилой недвижимости — сейчас «ДСК-1» строит почти 147 тысяч «квадратов».

*Полная стоимость кредита рассчитывается от 6,465% до 10,990%.

Ставка от 2,2% годовых на срок до ввода объекта недвижимости в эксплуатацию доступна в рамках программы ПАО Сбербанк «Ипотека с государственной поддержкой для семей с детьми» при приобретении строящегося жилья у юридического лица по ДДУ или готового жилья у застройщика – партнера Банка АО СЗ «ДСК+1», при нахождении объекта застройщика на проектном финансировании в Корпоративном Блоке Сбербанка и присвоении в связи с этим снижении ставки на 3,8 % годовых, при условии подключения пакета услуг Домклик Плюс со страхованием жизни и здоровья заемщика, на срок кредитования от 12 до 360 месяцев и первоначальном взносе от 20,1% от стоимости кредитуемого жилого помещения. После ввода объекта недвижимости в эксплуатацию ставка составит от 6% годовых.

Минимальная сумма кредита – 300 тыс. руб. Максимальный размер кредита до 12 000 000 руб – при покупке жилья в Москве и Московской области, Санкт-Петербурге и Ленинградской области; до 6 000 000 руб при покупке жилья в других регионах. Валюта – рубли РФ.

Кредит предоставляется гражданам РФ, у которых имеется ребенок не достигший возврата 7 лет на дату заключения кредитного договора, гражданин РФ; либо имеется ребенок, гражданин РФ, которому установлена категория «ребенок-инвалид»; либо имеются двое или более детей, граждане РФ, которые не достигли возраста 18 лет на дату заключения кредитного договора (приобретение объекта недвижимости возможно в 35 регионах РФ с недостаточным уровнем строительства многоквартирных домов, либо в городах с населением до 50 тыс. человек по данным Росстата, кроме городов Московской и Ленинградской областей). Необходимо предоставление свидетельств о рождении и подтверждение гражданства всех детей.

Дополнительные расходы: пакет Домклик Плюс, страхование и оценка объекта недвижимости, оформляемого в залог (тарифы зависят от индивидуальных особенностей заемщика), нотариальное заверение документов, направление документов на гос. регистрацию ДДУ в электронном виде.

Обеспечение по кредиту – залог кредитуемого объекта недвижимости. Итоговая сумма кредита определяется индивидуально, на основании оценки платежеспособности и стоимости обеспечения заемщика. Банк вправе отказать в выдаче кредита без объяснения причин. Изменение условий – Банком в одностороннем порядке. Предложение действительно в период с 10.07.2024 по 31.12.2030 г. вкл. Подробнее об условиях кредитования, необходимых документах и ограничениях на www.sberbank.ru. Реклама. ПАО Сбербанк. Генеральная лицензия Банка России на осуществление банковских операций № 1481 от 11.08.2015.

Застройщик АО Специализированный застройщик ДСК-1. Проектная декларация на наш.дом.рф

Брак
50,3 тыс интересуются