Найти в Дзене

Светлый интерьер двухкомнатной квартиры: дизайн, интерьер, планировка, фото и видео

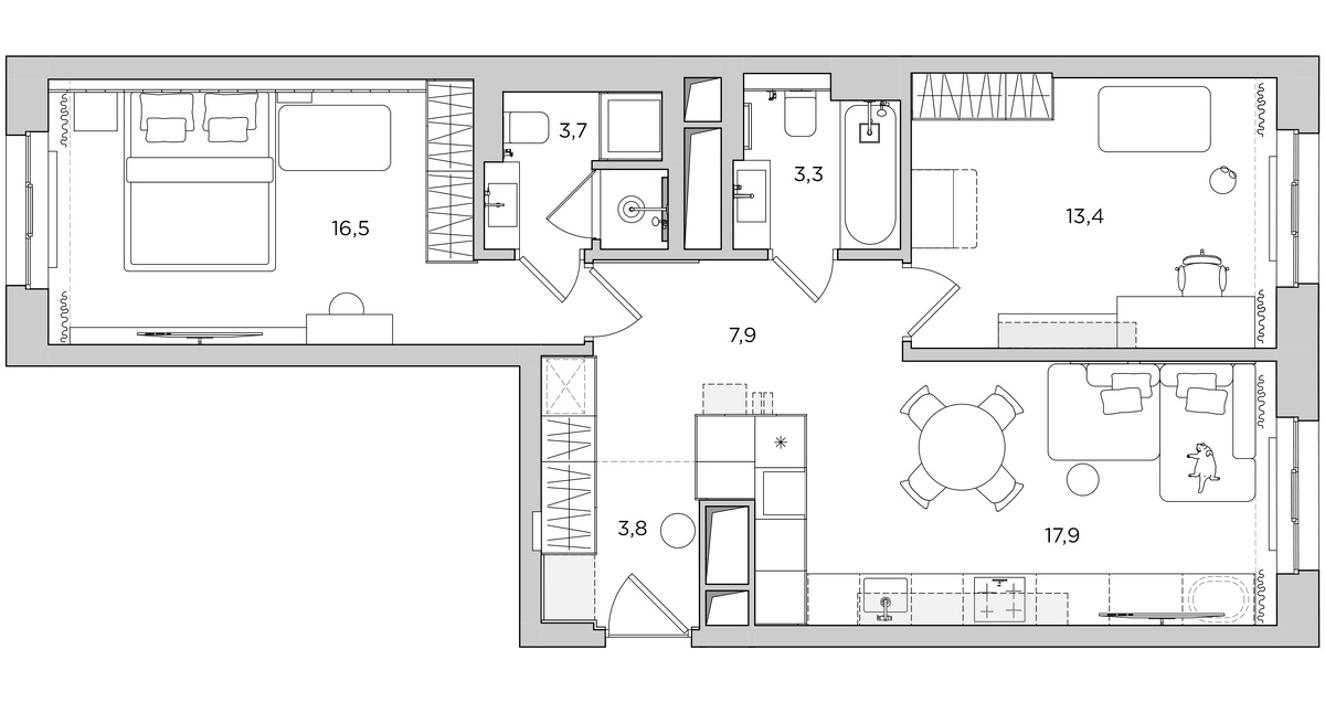
Интерьер этой акварельной квартиры мы сделали для молодой пары, которые планируют ребенка. Заказчики попросили нас оформить квартиру в светлых природных оттенках, подготовить детскую комнату и запланировать места для их кота. Привет! Меня зовут Карен Карапетян, я — архитектор и интерьерный дизайнер. Мы в компании Alexander Tischler проектируем и реализуем интерьеры, а также проектируем и производим корпусную мебель. Планировка от застройщика была неплохой, но мы ее немного переработали. Он разместил мастер-спальню в смежной с кухней-гостиной комнате, и у него получился длинный коридор, а небольшая кухня-гостиная была зажата стенами. Мы перенесли спальню заказчиков в другую комнату, а рядом с кухней-гостиной сделали детскую. Стену, разделяющую кухню-гостиную и детскую, мы сделали короче. В прихожей застройщик разместил объемный вентиляционный короб, мы его спрятали за зеркалом. Также оно визуально расширяет пространство прихожей. Грязную зону мы отделили плиткой с восточным орнаментом,
Оглавление

Интерьер этой акварельной квартиры мы сделали для молодой пары, которые планируют ребенка. Заказчики попросили нас оформить квартиру в светлых природных оттенках, подготовить детскую комнату и запланировать места для их кота.

Небольшая кухня-гостиная
Небольшая кухня-гостиная

Привет! Меня зовут Карен Карапетян, я — архитектор и интерьерный дизайнер. Мы в компании Alexander Tischler проектируем и реализуем интерьеры, а также проектируем и производим корпусную мебель.

Планировка двухкомнатной квартиры с кухней-гостиной

Планировка от застройщика была неплохой, но мы ее немного переработали. Он разместил мастер-спальню в смежной с кухней-гостиной комнате, и у него получился длинный коридор, а небольшая кухня-гостиная была зажата стенами.

Мы перенесли спальню заказчиков в другую комнату, а рядом с кухней-гостиной сделали детскую. Стену, разделяющую кухню-гостиную и детскую, мы сделали короче.

Дизайн прихожей

В прихожей застройщик разместил объемный вентиляционный короб, мы его спрятали за зеркалом. Также оно визуально расширяет пространство прихожей.

Небольшая прихожая
Небольшая прихожая

Грязную зону мы отделили плиткой с восточным орнаментом, ее мы также использовали в гостевой ванной комнате.

Панель для входной двери заменили: теперь она такая же, как стена вокруг, а на ней разместили крючки для сумок. Поставили шкафы, в них есть штанги и полки для одежды и аксессуаров, а в крайнем правом модуле — место для лотка мейн-куна.

Прихожая с местами для хранения
Прихожая с местами для хранения

Дизайн угловой кухни

Для небольшой кухни-гостиной мы сделали угловой кухонный гарнитур. Мы реализовали необычное решение: нижние модули кухни продолжаются до окна и приобретают новую функцию — теперь это ТВ-тумба с домиком для кота.

Кухня-гостиная для молодой семьи
Кухня-гостиная для молодой семьи

Мы не стали делать верхние модули по всему периметру кухни, чтобы добавить легкости интерьеру. Кухня достаточно узкая, и верхние модули сильно перегрузили бы пространство.

Кухонный гарнитур с рифлеными фасадами
Кухонный гарнитур с рифлеными фасадами

В угловом пенале мы разместили выкатные сетки, так мы минимизировали потерю полезной площади. Мы продолжили столешницу к угловому пеналу и провели розетки, чтобы разместить чайник или кофемашину, не портить общее пространство кухни.

Угловой кухонный гарнитур
Угловой кухонный гарнитур

Небольшая гостиная

Несмотря на небольшую площадь кухни-гостиной, мы смогли разместить здесь обеденный стол на четыре персоны и глубокий диван. Стену за диваном оформили панелями с текстурой дуба и подсветкой.

Мебель в квартире для кота

Благодаря сокращению стены кухни-гостиной мы смогли скомпоновать кухонные пеналы и комплекс для кота в одном блоке, сохранив комфортный проход.

Комплекс с когтеточкой для кота
Комплекс с когтеточкой для кота

Мы сделали круглые отверстия в фасаде кухонного гарнитура, так любимец сможет отдыхать в комфортном месте рядом с хозяевами.

Отверстие в фасаде кухонного гарнитура
Отверстие в фасаде кухонного гарнитура

А лоток мы разместили в фасадах шкафа в прихожей.

Место для лотка в прихожей
Место для лотка в прихожей

Универсальная детская комната

Мы хотели сделать детскую, которой не понадобится ремонт, когда ребенок подрастет.

Детская комната в пастельных оттенках
Детская комната в пастельных оттенках

Для детской комнаты мы спроектировали и изготовили большой шкаф до потолка, для него подобрали разноцветные ручки-шарики, у рабочего стола повесили шкаф для книг и поставили тумбу для игрушек.

Стену за детской кроваткой оформили бесшовными обоями, изготовленными по нашему заказу. У этой стены мы поставили отдельно стоящую детскую кроватку. Когда первенец подрастет, такую кроватку будет легко заменить на взрослую — от шкафа до окна остается больше двух метров.

Бесшовные обои для детской
Бесшовные обои для детской

Дизайн и ремонт ванной комнаты

В гостевой ванной комнате использовали два вида плитки: яркую с восточным орнаментом и бежевую с текстурой песчаника, дополнили интерьер ванной аксессуарами в латунной отделке.

Гостевая ванная комната
Гостевая ванная комната

А в шкафу над инсталляцией мы спрятали коллекторный узел — это стильный и удобный доступ к коммуникациям.

Шкаф над инсталляцией
Шкаф над инсталляцией

Мастер-спальня с душевой

Мастер-спальня с душевой
Мастер-спальня с душевой

Спальню родителей организовали так, чтобы в ней свободно стояла детская кроватка, которую в первые месяцы жизни малыша можно держать у кровати родителей. Из-за этого со стороны хозяйки у кровати нет прикроватной тумбы, только небольшая полочка.

Платяной шкаф для одежды в спальне
Платяной шкаф для одежды в спальне

Изголовье оформили мягкими панелями, розетки спрятали сверху, там же смонтировали подсветку. Напротив кровати установили косметический столик с ящиком и большое зеркало.

Мягкое изголовье кровати
Мягкое изголовье кровати

Ванная комната при мастер-спальне

К спальне родителей мы присоединили душевую. Ее оформили глянцевой изумрудной плиткой, которая очень понравилась заказчикам. На ее фоне расположили светлую мебель и аксессуары. Левее душевой поставили пенал для стиральной и сушильной машин.

Если вы тоже хотите не беспокоиться о ремонте и реализовать интерьер, который будет полностью отвечать вашим пожеланиям, оставляйте заявку через простого бота в моем Телеграме. Мы рассчитаем стоимость вашего ремонта и расскажем, как сэкономить до 2 млн рублей.

Кликайте сюда, увидите форму для заявки сверху

Другие наши интерьеры:

Мы сняли подробный обзор интерьера, где я рассказал и про другие его фишки. А также опубликовали смету интерьера