Добавить в корзинуПозвонить
Найти в Дзене

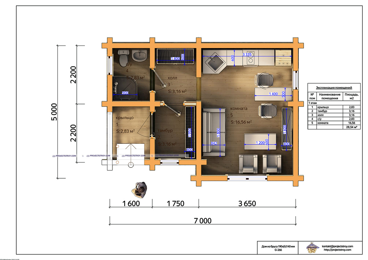
Проект из профилированного бруса 7х5 м

Деревянный дом из сухого профилированного бруса 190х140 мм Площадь по полу - 28.5 кв. м Какой еще дом, с такой площадью? Только сезонный, дачный вариант для выходных На заметку:
Хочу деревянный дом.
НО из чего, какой материал стен. Какие стеновые материалы на российском рынке?
Горизонтальный массива деревянного стенового материала:
-рубленое бревно;
-оцилиндрованное бревно;
-профилированный брус;
-клееный брус;
-лафет
Каркасные строения из дерева:
-каркасные строения из пиломатериала;
-каркасно-столбчатые из массивного бревна
Комбинированные деревянные стеновые материалы:
-рубленое бревно с каркасно-столбчатым массивом бревна
Вот вам и деревянный дом) Для расчета строительства проекта G-266:
-общая площадь по экспликации - 28.5 кв. м
-объем профилированного бруса 190х140 мм - 21 куб. м из 6 м
-пог. длина бруса - 790 п.м
-пог. фундамента - 33 м
-балки - 100х200 мм
-стропила - 50х200 мм
-площадь кровли и периметр - 57 кв. м и - 48 пог. м
-угол кровли -19.5 гр.
-высота 1-го этажа в

Загородный проект дома для сезонного проживания

Деревянный дом из сухого профилированного бруса 190х140 мм

Площадь по полу - 28.5 кв. м

Какой еще дом, с такой площадью?

Только сезонный, дачный вариант для выходных

проект из бруса сухого
проект из бруса сухого
планировка дома из бруса
планировка дома из бруса
На заметку:
Хочу деревянный дом.

НО из чего, какой материал стен. Какие стеновые материалы на российском рынке?

Горизонтальный массива деревянного стенового материала:
-рубленое бревно;
-оцилиндрованное бревно;
-профилированный брус;
-клееный брус;
-лафет

Каркасные строения из дерева:
-каркасные строения из пиломатериала;
-каркасно-столбчатые из массивного бревна

Комбинированные деревянные стеновые материалы:
-рубленое бревно с каркасно-столбчатым массивом бревна

Вот вам и деревянный дом)

профилированный брус проект
профилированный брус проект
планировка 7х5 м
планировка 7х5 м

Для расчета строительства проекта G-266:
-общая площадь по экспликации - 28.5 кв. м
-объем профилированного бруса 190х140 мм - 21 куб. м из 6 м
-пог. длина бруса - 790 п.м
-пог. фундамента - 33 м
-балки - 100х200 мм
-стропила - 50х200 мм
-площадь кровли и периметр - 57 кв. м и - 48 пог. м
-угол кровли -19.5 гр.
-высота 1-го этажа в парной - от 1.90 м
-высота строения - 4.0 м

сруб из профилирвоанного бруса
сруб из профилирвоанного бруса
проекты небольших домов
проекты небольших домов

@projectstroy.com

проект из сухого бруса 7х5 м