Добавить в корзинуПозвонить
Найти в Дзене
Сойка Концепт.Бюро

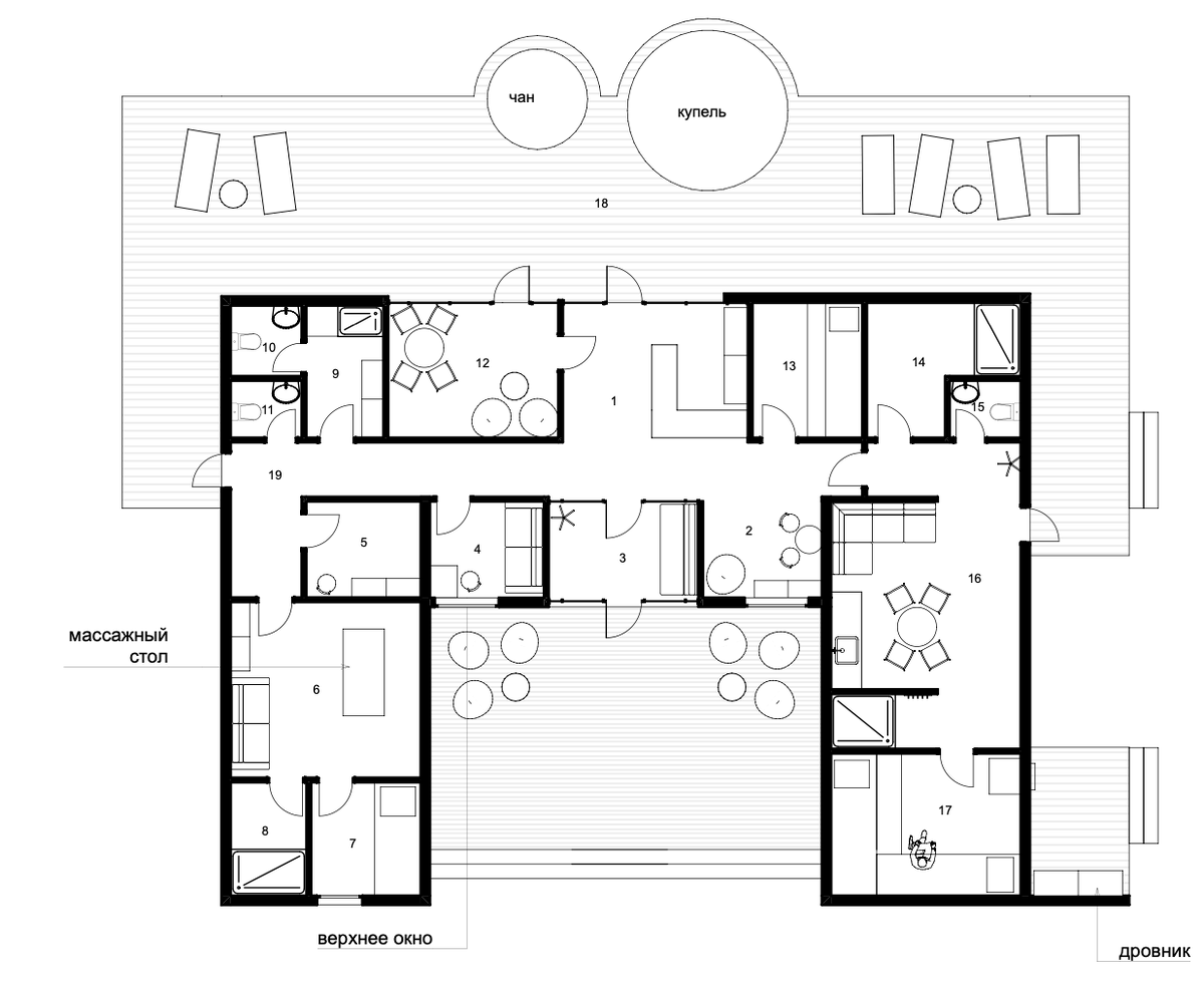
Идеальная планировка банного комплекса в загородном отеле

Эта баня — результат многолетнего опыта нашей команды и подробного анализа предпочтений гостей. Мы опросили клиентов и тщательно продумали каждую деталь, чтобы создать универсальное пространство, которое отвечает всем требованиям комфорта и функциональности. Мы уверены, что эта планировка является идеальной для загородного отеля, сочетая уют, удобство и современный дизайн. Данный комплекс предлагает гостям уникальный опыт расслабления и оздоровления, сочетая современный дизайн с природным окружением. Основные особенности проекта: Этот банный комплекс станет центром притяжения для гостей вашего загородного отеля, предлагая высококлассные условия для отдыха и оздоровления в гармонии с природой. Площадь объекта: 274–318 м² (в зависимости от выбранного варианта). Проект реализован в рамках работы сотрудников арх.бюро сойка в проекте "Охотники за солнцем"

Эта баня — результат многолетнего опыта нашей команды и подробного анализа предпочтений гостей. Мы опросили клиентов и тщательно продумали каждую деталь, чтобы создать универсальное пространство, которое отвечает всем требованиям комфорта и функциональности. Мы уверены, что эта планировка является идеальной для загородного отеля, сочетая уют, удобство и современный дизайн.

Данный комплекс предлагает гостям уникальный опыт расслабления и оздоровления, сочетая современный дизайн с природным окружением.

-2

Основные особенности проекта:

  1. Комплексная планировка: Баня включает в себя ресепшн, чайную зону, две парные, процедурные кабинеты, комнаты отдыха и соляную комнату. Пространство организовано таким образом, чтобы обеспечить комфорт и приватность для каждого гостя.
  2. Открытые террасы и купели: Просторная терраса с деревянным настилом включает зоны для отдыха и чан с купелью, где гости могут расслабиться на свежем воздухе, наслаждаясь природой.
  3. Многофункциональность: Проект предусматривает различные форматы использования — от индивидуального оздоровления до аренды для проведения мероприятий.
  4. Простор и свет: Благодаря панорамным окнам и верхнему освещению, баня выглядит светлой и просторной, создавая ощущение уединённости и связи с окружающей природой.

Этот банный комплекс станет центром притяжения для гостей вашего загородного отеля, предлагая высококлассные условия для отдыха и оздоровления в гармонии с природой.

Площадь объекта: 274–318 м² (в зависимости от выбранного варианта).

Проект реализован в рамках работы сотрудников арх.бюро сойка в проекте "Охотники за солнцем"