Добавить в корзинуПозвонить
Найти в Дзене

Проектируем системы электроснабжения. Основная надпись, её размещение и наполнение информацией

Всем привет! На связи Энциклопедия Электрика. Сегодня поговорим об основной надписи при разработки проекта электроснабжения Прежде чем перейти к основной части нашей статьи, хотелось бы напомнить, что энциклопедия электрика - это тематический канал, направленный на расширение ваших познаний в монтаже и проектирование электроустановок. Познакомиться с нашим каналом и идеями вы можете в конце статьи. Основная надпись - это самая важная информация, которая позволяет определить принадлежность проекта электроснабжения к определённому объекту, стадии, системы проектирования и т.д. Давайте подробнее рассмотрим что такое основная надпись, для чего она нужна и какие бывают надписи. Вопросы, которые рассмотрим в этой статье: 1. Что такое Основная надпись чертежа 2. Какая нормативная документация регламентирует данные Основной надписи чертежа. 3. Выдержки из ГОСТ и рассмотрение различий между Основными надписями 4. Примеры Основных надписей. Основная надпись — совокупность основных данных и сведе
Оглавление

Всем привет! На связи Энциклопедия Электрика. Сегодня поговорим об основной надписи при разработки проекта электроснабжения

Прежде чем перейти к основной части нашей статьи, хотелось бы напомнить, что энциклопедия электрика - это тематический канал, направленный на расширение ваших познаний в монтаже и проектирование электроустановок. Познакомиться с нашим каналом и идеями вы можете в конце статьи.

Основная надпись - это самая важная информация, которая позволяет определить принадлежность проекта электроснабжения к определённому объекту, стадии, системы проектирования и т.д. Давайте подробнее рассмотрим что такое основная надпись, для чего она нужна и какие бывают надписи.

Вопросы, которые рассмотрим в этой статье:

1. Что такое Основная надпись чертежа

2. Какая нормативная документация регламентирует данные Основной надписи чертежа.

3. Выдержки из ГОСТ и рассмотрение различий между Основными надписями

4. Примеры Основных надписей.

1. Что такое Основная надпись чертежа

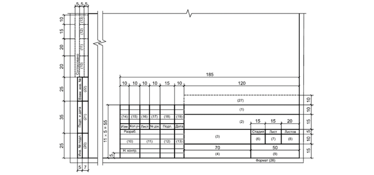
Основная надпись — совокупность основных данных и сведений о проектном документе. Информация Основной надписи располагается в Графах таблицы. Сама таблица имеет установленную форму, согласно ГОСТ 2.104-2006 и ГОСТ Р 21.101-2020. Располагается таблица основной надписи в правом нижнем углу листа в рамке формата, вне зависимости от формата листа (рисунок 1).

Выполняется основная надпись, графы и рамки сплошной толстой линией и сплошной тонкой линией, согласно ГОСТ 2.303.

Рисунок 1. Пример Основной надписи форма 3, согласно ГОСТ Р 21.101-2020. Изображение разработано командой НПО ЭлектроРазработки
Рисунок 1. Пример Основной надписи форма 3, согласно ГОСТ Р 21.101-2020. Изображение разработано командой НПО ЭлектроРазработки

2. Какая нормативная документация регламентирует данные Основной надписи чертежа.

Действующей нормативной документацией, которая несёт общие и конкретизирующие сведения об основной надписи, её размещения, количества граф, а также информации, которая в них представлена, является ГОСТ 2.104-2006 и ГОСТ Р 21.101-2020.

скачать ГОСТ Р 21.101-2020 можно по ссылке ниже:

ГОСТ Р 21.101-2020(Основные требования к проектной и рабочей документации).pdf

скачать ГОСТ 2.104-2006 можно по ссылке ниже:

ГОСТ 2.104-2006 (основные надписи шапки).pdf

3. Выдержки из ГОСТ и рассмотрение различий между Основными надписями

Рассмотрим какие есть формы основных надписей, согласно ГОСТ Р 21.101-2020 и для чего они используются

На рисунке 2 представлена форма 3 основной надписи. Она используется при разработке листов основных комплектов рабочих чертежей, графических документов проектной документации и графических документов по инженерным изысканиям

Рисунок 2. Форма 3 основной надписи, согласно ГОСТ Р 21.101-2020.
Рисунок 2. Форма 3 основной надписи, согласно ГОСТ Р 21.101-2020.
Примечание - Для графических документов по инженерным изысканиям запись "Н. контр." ("Нормо-контроль") в основной надписи допускается не выполнять.

На рисунке 3 представлена форма 4 основной надписи. Она используется при разработке чертежей строительных изделий. Данную надпись имеет первый лист чертежей строительных изделий. Последующие листы выполняются по форме 6 (рисунок 5)

Рисунок 3. Форма 4 основной надписи, согласно ГОСТ Р 21.101-2020
Рисунок 3. Форма 4 основной надписи, согласно ГОСТ Р 21.101-2020

На рисунке 4 представлена форма 5 основной надписи. Используется данная форма для эскизных чертежей общих видов нетиповых изделий, всех видов текстовых документов (первый или заглавный лист). Данную надпись имеет первый лист чертежей строительных изделий. Последующие листы выполняются по форме 6 (рисунок 5)

Рисунок 4. Форма 5 основной надписи, согласно ГОСТ Р 21.101-2020
Рисунок 4. Форма 5 основной надписи, согласно ГОСТ Р 21.101-2020
Примечание - Основную надпись по форме 5 допускается использовать для графических документов по инженерным изысканиям, не используемых в проектировании в качестве графической основы.

На рисунке 5 представлена форма 6 основной надписи. Используется данная форма для последующих листов, кроме первого, чертежей строительных изделий, эскизных чертежей общих видов нетиповых изделий и всех видов текстовых документов.

Рисунок 5. Форма 6 основной надписи, согласно ГОСТ Р 21.101-2020
Рисунок 5. Форма 6 основной надписи, согласно ГОСТ Р 21.101-2020

Ниже представлена документ с выдержкой из ГОСТ, с указанием информации, которая указывается в графах листа. Так как все графы на рисунках помечены, не составит труда понять что нужно указывать в конкретном графе таблицы. В связи с тем, что информации достаточно много, есть смысл отдельно выделить её в рамках документа и не перечислять все обозначения в статье.

Информация, которая указывается в графах основной надписи проектной документации.docx

4. Примеры Основных надписей.

Рассмотрим примеры основных надписей проектной документации.

Пример использования формы 3 в проектной документации изображён на рисунке 6. Указана основная информация по чертежу - Схема принципиальная группового щита рабочего освещения ЩО-1.1. В целях сохранности тайны проектирования, данные объекта и лиц, причастных к проектированию не разглашаются.

Рисунок 6. Графический документ с обозначением информации основной надписи по форме 3. Изображение разработано командой НПО ЭлектроРазработки
Рисунок 6. Графический документ с обозначением информации основной надписи по форме 3. Изображение разработано командой НПО ЭлектроРазработки

Пример использования формы 6 в проектной документации изображён на рисунке 7. На данном листе указывается шифр проекта и порядковый номер листа.

Рисунок 7. Текстовый документ с обозначением информации основной надписи по форме 6. Изображение разработано командой НПО ЭлектроРазработки
Рисунок 7. Текстовый документ с обозначением информации основной надписи по форме 6. Изображение разработано командой НПО ЭлектроРазработки

Уважаемые читатели! Мы благодарим вас за проявленный интерес к данной статье и надеемся, что она помогла вам углубить знания в области электроустановок, вы очень поможете нашему проекту если поставите палец вверх, а также порекомендуете данную статью другим читателям. Обязательно не забудьте подписаться на наш канал, чтобы не пропускать новые статьи и материалы. Если у вас есть предложения по улучшению материала или замечания, пожалуйста, оставьте комментарий. Ваши комментарии должны содержать конструктивные предложения, чтобы мы могли совместно сделать мир электроустановок более понятным и доступным для изучения.

Дополнительно сообщаем, что НПО «ЭлектроРазработки» работает над созданием нового мобильного приложения под названием «Энциклопедия электрика». Это уникальное и профессиональное приложение станет первым в своём роде в нашей стране и объединит изучение различных аспектов электроустановок с множеством статей, опросов, шаблонов, калькуляторов, анимаций и макетов. Чтобы не пропустить все новости и быть в числе первых, кто испытает всю мощь этого мобильного приложения, мы предлагаем вам подписаться на наш сервис в VK по ссылке: https://vk.cc/cyLZWG. Выход мобильного приложения запланирован на конец ноября 2024 года.

Друзья, мы постоянно находимся в стадии разработки более эксклюзивного, интересного и познавательного контента. На данный момент этот эксклюзив готовится к заливке в приложение о котором мы рассказали выше, тем не менее, вы также можете получить доступ к этим ресурсам.

Доступ к более качественному и полезному материалу содержит в себе:

1. Шаблоны для расчётов электрических нагрузок и другие полезные инструменты.

2. База нормативной литературы.

3. Готовые решения для проектирования электроустановок.

4. Более ценный и актуальный контент.

5. Эксклюзивный словарь электрика.

Эти ресурсы помогут вам повысить квалификацию и эффективность работы, а также получить доступ к эксклюзивной информации, которая будет полезна как начинающим, так и опытным специалистам.

Чтобы получить доступ к этим материалам, вы можете поддержать нашу деятельность донатом.

Добавьте описание
Добавьте описание

Основная цель НПО «ЭлектроРазработки» — объединить и сделать мир электроустановок более понятным и доступным для всех инженерных направлений электроэнергетики, как для профессионалов, так и для молодых специалистов!

Оставаться с нами можно и на других платформах:

Ссылка на нашу группу ВК: https://vk.com/enelectro

Ссылка на Дзен: https://dzen.ru/electroencyclopedia

Ссылка на наш Telegram канал: https://t.me/electroencyclopedia

Ссылка на нашу группу в Telegram: https://t.me/+fZRdm5bsjqVhYWUy

Наша рабочая почта: info@npoelectrodesign.ru

Поддержать наш проект: https://vk.com/donut/enelectro