Найти в Дзене

Каркасный дом с двумя спальнями и уютной террасой.

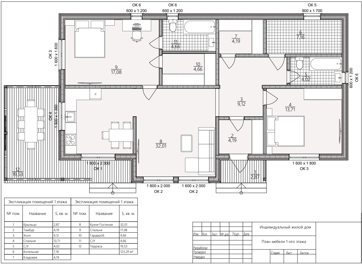
Рассмотрим стоимость на примере проекта одноэтажного дома 18 х 8,7 с террасой и жилой площадью 100м2 Крыльцо: 2,87 кв. м.
Тамбур: 4,19
Холл: 9,12
Спальня: 13,71
С/У: 4,02
Котельная: 7,16
Кладовая: 4,19
Кухня-Гостиная: 32,01
Спальня: 17,08
Гардероб: 4,66
С/У: 4,66
Терраса: 19,53
Итого: 123,20 м² Первый этаж: 2,85м, второй свет 4,2м Угол наклона кровли: 25 градусов Проект выполнен под дом на винтовых сваях, но если вы хотите использовать бетонный фундамент - проект остаётся тот же, из него убираем лишние листы: обвязка, лаги пола. пол: 200мм + 50мм перехлестное утепление = 200мм, чердачное перекрытие 200мм + 50мм перехлестное утепление = 250мм наружные стены: 150мм + 50мм перехлестное утепление = 200мм,
внутренние перегородки: 150мм кровля: 200мм + 50мм перехлестное утепление = 250мм Сваи: 47шт - 200 000 р
Доска на каркас: 40м3 - 1 млн р.
Утеплитель: 105м3 - 350 000р
Пленка мембрана на каркас снаружи вкруг: 8 рулонов - 40 000р
Пленка пароизоляция: 6 рулонов - 15 000р
Наружная отд
Оглавление

Рассмотрим стоимость на примере проекта одноэтажного дома 18 х 8,7 с террасой и жилой площадью 100м2

Планировка:

-2

Крыльцо: 2,87 кв. м.
Тамбур: 4,19
Холл: 9,12
Спальня: 13,71
С/У: 4,02
Котельная: 7,16
Кладовая: 4,19
Кухня-Гостиная: 32,01
Спальня: 17,08
Гардероб: 4,66
С/У: 4,66
Терраса: 19,53

Итого: 123,20 м²

-3

Высота потолков:

Первый этаж: 2,85м, второй свет 4,2м

Угол наклона кровли: 25 градусов

-4

Проект выполнен под дом на винтовых сваях, но если вы хотите использовать бетонный фундамент - проект остаётся тот же, из него убираем лишние листы: обвязка, лаги пола.

Толщина утепления:

пол: 200мм + 50мм перехлестное утепление = 200мм, чердачное перекрытие 200мм + 50мм перехлестное утепление = 250мм

наружные стены: 150мм + 50мм перехлестное утепление = 200мм,
внутренние перегородки: 150мм

кровля: 200мм + 50мм перехлестное утепление = 250мм

-5

Сколько стоит?

Сваи: 47шт - 200 000 р
Доска на каркас: 40м3 - 1 млн р.
Утеплитель: 105м3 - 350 000р
Пленка мембрана на каркас снаружи вкруг: 8 рулонов - 40 000р
Пленка пароизоляция: 6 рулонов - 15 000р
Наружная отделка фасада: 180м2 - 360 000р (можно дешевле)
Вн.Отделка стен: 400м2 - 550 000р (можно дешевле)
Отделка полов: 110м2 - 150 000р (можно дешевле)
Отделка потолков: 140м2 - 150 000р (натяжной, качественный)
Пол на террасе: 25м2 - 25 000р (лиственница или дкп)
Кровля: 226м2 - 500 000р (по 2тр за м2, можно и дешевле)
Итого: 3 340 000р за 123 м2, те 27 100р за м2

-6

Этот проект уже готов и можно купить со скидкой на нашем сайте Домокея

Если вы хотите что-то своё - мы сделаем проект под заказ