Добавить в корзинуПозвонить
Найти в Дзене

Баня Плавна

Внешний образ бани Плавна идеально вписывается в пространство загородной жизни. Здесь работает все – и массивные бревна большого диаметра, и двускатная крыша, образующая широкие навесы, и широкая открытая терраса перед входом.
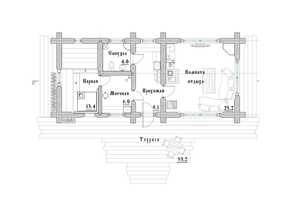
За дверью хозяев и гостей ждёт прихожая, моечная и, разумеется, парная. Значительную часть внутреннего пространства бани занимает просторная и комфортабельная комната отдыха. Имеется в бане и санузел.
Проект выполнен с учетом всех актуальных достижений в области загородного строительства, а также банного дела. Как хорошо будет попариться в такой бане, посидеть на террасе с чашкой травяного чая (не обязательно именно чая, конечно), неспешно беседуя с родными и друзьями...


Внешний образ бани Плавна идеально вписывается в пространство загородной жизни. Здесь работает все – и массивные бревна большого диаметра, и двускатная крыша, образующая широкие навесы, и широкая открытая терраса перед входом.

За дверью хозяев и гостей ждёт прихожая, моечная и, разумеется, парная. Значительную часть внутреннего пространства бани занимает просторная и комфортабельная комната отдыха. Имеется в бане и санузел.

Проект выполнен с учетом всех актуальных достижений в области загородного строительства, а также банного дела. Как хорошо будет попариться в такой бане, посидеть на террасе с чашкой травяного чая (не обязательно именно чая, конечно), неспешно беседуя с родными и друзьями...

-2