Найти в Дзене
INMYROOM

Семейная квартира: как организовать пространство, удобное для всех

На что молодой семье обратить внимание при выборе жилья Главные требования к современной квартире — максимальное удобство и функциональность. Удачная планировка и организация пространства определяют уровень физического и психологического комфорта всех членов семьи. Показываем на примере квартиры в ЖК «Новое Внуково» от группы «Самолет», как создать удобное и функциональное пространство в семейной квартире. Идеальным вариантом для семьи с ребенком будет квартира с отдельными жилыми комнатами и отдельным гостевым санузлом. Кухня должна быть достаточно просторной, чтобы разместить весь функционал, мебель стандартных размеров и большой обеденный стол. Кухня находится вдалеке от спален — можно принимать гостей и не мешать детям. Желательно, чтобы санузел не имел общих стен с детской комнатой, так как родителям приходится им пользоваться, когда ребенок спит. Дополнительный плюс для семьи с детьми — второй гостевой санузел. Он находится на входе в квартиру, и если гости останутся ночевать, то
Оглавление

На что молодой семье обратить внимание при выборе жилья

Главные требования к современной квартире — максимальное удобство и функциональность. Удачная планировка и организация пространства определяют уровень физического и психологического комфорта всех членов семьи. Показываем на примере квартиры в ЖК «Новое Внуково» от группы «Самолет», как создать удобное и функциональное пространство в семейной квартире.

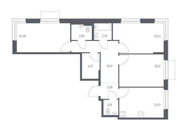
Планировка: пример удачного решения для семейной квартиры

Идеальным вариантом для семьи с ребенком будет квартира с отдельными жилыми комнатами и отдельным гостевым санузлом. Кухня должна быть достаточно просторной, чтобы разместить весь функционал, мебель стандартных размеров и большой обеденный стол. Кухня находится вдалеке от спален — можно принимать гостей и не мешать детям. Желательно, чтобы санузел не имел общих стен с детской комнатой, так как родителям приходится им пользоваться, когда ребенок спит. Дополнительный плюс для семьи с детьми — второй гостевой санузел. Он находится на входе в квартиру, и если гости останутся ночевать, то не будут мешать остальным членам семьи. А чтобы ребенка было удобнее купать, лучше сделать выбор в пользу ванны, а не душевой кабины.

 📷
📷
 📷
📷

Зонирование: как организовать пространство для разных членов семьи

Интерьер для семьи с ребенком должен быть эргономичным, поэтому пространство следует использовать максимально рационально. В квартире должно быть место для сборов и общего времяпрепровождения, а также родительская спальня, комната для ребенка с рабочим местом и игровой зоной.

Кухня просторная, поэтому ее можно обустроить максимально функционально. Здесь есть место для углового гарнитура и вместительной обеденной зоны. Площадь комнаты позволяет разместить даже полноценную зону отдыха. Смежная комната — это гостиная. При желании можно объединить пространства и оформить большую кухню-гостиную 26 кв. м.

 📷
📷

У ребенка должно быть свое личное пространство. Если нет возможности обустроить отдельную комнату, то уединенный уголок можно создать искусственно, с помощью перегородок и декоративных приемов зонирования. Дошкольнику организуют просторное место для игр, школьнику — комфортное рабочее место и зону отдыха отдельно от других членов семьи.

В этом планировочном решении, как и во многих других от группы «Самолет», в спальне два окна. Это большой плюс для школьника — в комнату попадает много естественного освещения, ребенок не будет портить зрение.

Место для сна следует отодвинуть от окна — там лучше расположить рабочий стол. Детское пространство должно включать в себя мебель, которая позволит хранить игрушки. Лучше отдать предпочтение низким полкам, благодаря которым ребенок будет иметь к вещам свободный доступ. Для хранения одежды подойдут большие шкафы и комоды, для игрушек — корзины или ящики.

 📷
📷

У родителей тоже должна быть своя личная зона. Идеальный вариант — мастер-спальня. Она сочетает в себе спальню, санузел и гардеробную, создавая максимально комфортное пространство для жизни.

 📷
📷

В прихожей необходимо предусмотреть место для того, чтобы надеть обувь и одежду и чтобы было куда положить сумку или ключи. Желательно использовать закрытые шкафы, дабы не захламлять пространство. Мебель от пола до потолка с зеркальными дверцами поможет расширить границы помещения и добавит функционал.

 📷
📷

Организация мест для хранения: как избежать захламленности

Эффективное использование пространства является ключевым фактором при выборе жилья, поэтому важно учесть места для хранения вещей. Большое количество предметов в открытом доступе вызывает чувство захламленности и скрадывает полезные метры. Поэтому в гостиной и в кухне рекомендуется продумать наличие шкафов с закрытыми фасадами, в детских — открытые полки и стеллажи, в спальне — отдельную гардеробную.

В этом планировочном решении есть отдельное помещение, которое каждый может использовать по своему усмотрению: как кладовую или как полноценную гардеробную. Такое решение позволит отказаться от массивных шкафов и красиво организовать хранение вещей в одном месте.

 📷
📷
 📷
📷

Социальная инфраструктура и детские площадки

При выборе жилья одним из важных факторов для родителей становится продуманная инфраструктуры рядом с домом. Чтобы не усложнять себе жизнь, семьи с детьми делают выбор в пользу вариантов с доступностью всех стратегически важных точек. Детские сады, школы, кружки и поликлиника в пешей доступности — это и удобно, и безопасно.

Квартиры с ремонтом и мебелью: готовые решения для семейного комфорта

Главное преимущество покупки жилья с готовой отделкой и мебелью — это экономия времени и средств. Если у покупателя есть индивидуальные запросы, застройщики учитывают их на этапе подбора планировки или отделки. При комбинировании возможных вариантов подбирается квартира под потребности клиента. Застройщик берет на себя все хлопоты, связанные с отделкой и обстановкой, и сдает полностью готовые к заселению квартиры. После сдачи в эксплуатацию в них можно сразу въехать — все главные ремонтные работы уже завершены, мебель расставлена, а значит, можно спокойно начинать новую жизнь на новом месте.

 📷
📷

Сейчас читают: