Добавить в корзинуПозвонить
Найти в Дзене
Теплотория

Начало строительства бани.

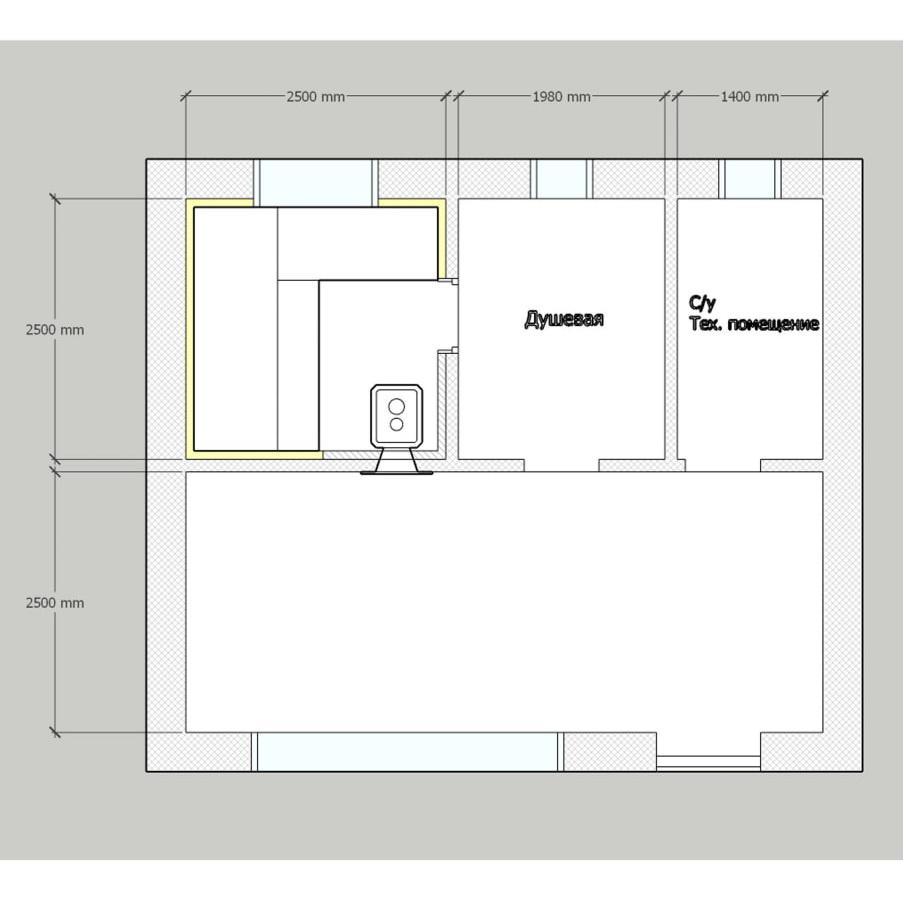
Все начинается с проекта/планировки и т.д. Очень важно его/ее сделать, продумать, прежде чем начинать само строительство. В ситуации, когда разрабатывают проект бани с нуля, часто останавливаются на варианте, где есть парная, душевая и комната отдыха. А есть очень важное помещение – сан.узел. Оно же может включать в себя функцию технического помещения для размещения различных элементов и агрегатов для функционирования бани. К примеру, тут мы рассказывали про чуть ли не идеальную котельную/тех.помещение: https://t.me/teplotoriyaru/557
И сегодня на схеме вы можете видеть одну из возможных планировок лаконичной, компактной бани, которую вы можете себе сделать. Изменению может подлежать толщина стен. Тут все на усмотрение архитектора и конструктора. Парилка включает в себя угол для банной печи и угловой полок. Самодостаточно, функционально. Каждое помещение имеет окно. 1) В контексте парной это важно. Почему? Рассказываем тут: https://t.me/teplotoriyaru/516
2) И какие окна могут быть в

Все начинается с проекта/планировки и т.д.

Очень важно его/ее сделать, продумать, прежде чем начинать само строительство.

В ситуации, когда разрабатывают проект бани с нуля, часто останавливаются на варианте, где есть парная, душевая и комната отдыха.

Самодостаточный банный комплекс.
Самодостаточный банный комплекс.

А есть очень важное помещение – сан.узел. Оно же может включать в себя функцию технического помещения для размещения различных элементов и агрегатов для функционирования бани.

К примеру, тут мы рассказывали про чуть ли не идеальную котельную/тех.помещение: https://t.me/teplotoriyaru/557

И сегодня на схеме вы можете видеть одну из возможных планировок лаконичной, компактной бани, которую вы можете себе сделать. Изменению может подлежать толщина стен. Тут все на усмотрение архитектора и конструктора.

Парилка включает в себя угол для банной печи и угловой полок. Самодостаточно, функционально.

Каждое помещение имеет окно.

1) В контексте парной это важно. Почему? Рассказываем тут: https://t.me/teplotoriyaru/516
2) И какие окна могут быть в бане, показываем тут: https://t.me/teplotoriyaru/677

Пользуйтесь!

А если есть желание выполнить отделку бани, комплектацию бани, то вы знаете что у нас в Теплотории есть множество интересных и нужных материалов, обращайтесь!

P.S:

Есть куда улучшить баню?

Напишите нам в комментарии, может что-то упустили.

#отделкабани_цикл