Добавить в корзинуПозвонить
Найти в Дзене

Давай подготовим супер-план для успешного ремонта!

На примере нашей работы над дизайн-проектом, чтобы он реализовался так, как запланировано, мы выделили несколько пунктов: Первым делом подумай, какие материалы тебе нравятся и подходят для твоего стиля. Это может быть, например, краска, обои, тканевые панели для стен, деревянные или ламинатные полы, и, конечно же, мебель! Заранее посмотри разные варианты и варианты текстур, так ты сможешь создать идеальную атмосферу. При заключении договора с заказчиком мы заполняем техническое задание (у нас разработан шаблон со всеми необходимыми вопросами). Это занимает около 2 часов. Мы разбираем ваши пожелания и рассказываем о стоимости, а также о плюсах и минусах каждого материала или дизайнерского решения. Забудь про беспорядок с проводами! 💡 Придумай, куда планируешь ставить каждый прибор и под какие нужды будешь использовать розетки. Не забывай о месте для телевизора, зарядок для гаджетов и освещения. Продумай удобное расположение розеток, чтобы все было под рукой и красиво! Важный этап диза
Оглавление

На примере нашей работы над дизайн-проектом, чтобы он реализовался так, как запланировано, мы выделили несколько пунктов:

1. Определись с видами материалов для отделки стен, пола и мебели

Первым делом подумай, какие материалы тебе нравятся и подходят для твоего стиля. Это может быть, например, краска, обои, тканевые панели для стен, деревянные или ламинатные полы, и, конечно же, мебель! Заранее посмотри разные варианты и варианты текстур, так ты сможешь создать идеальную атмосферу.

При заключении договора с заказчиком мы заполняем техническое задание (у нас разработан шаблон со всеми необходимыми вопросами). Это занимает около 2 часов. Мы разбираем ваши пожелания и рассказываем о стоимости, а также о плюсах и минусах каждого материала или дизайнерского решения.

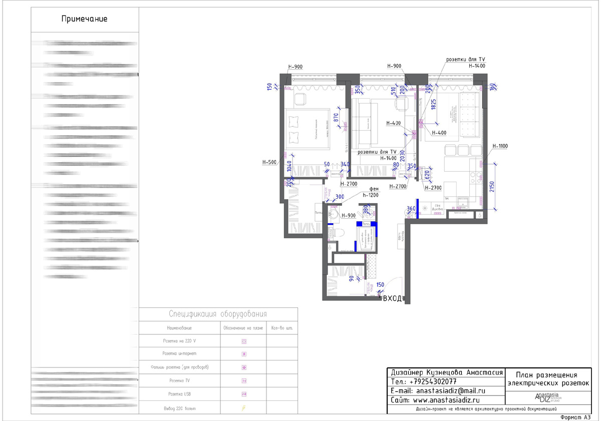
2. Важный этап – это электрика

Забудь про беспорядок с проводами! 💡 Придумай, куда планируешь ставить каждый прибор и под какие нужды будешь использовать розетки. Не забывай о месте для телевизора, зарядок для гаджетов и освещения. Продумай удобное расположение розеток, чтобы все было под рукой и красиво!

-2

Важный этап дизайна проекта — согласование схемы электрики с заказчиком, а также дополнение и разбор жизненных сценариев их использования. Это поможет учесть все нужды и предпочтения, чтобы сделать проект максимально комфортным и функциональным!

3. Проведи мини-тендер строителей

Выбор строителей – это серьезный шаг! 🏗️ Проведи небольшой отбор и посмотри на опыт тех, кого рассматриваешь. Постарайся найти отзывы от предыдущих клиентов и пообщайся с ними. Опыт – это важно, чтобы все прошло гладко и без сюрпризов!

-3

У нас разработан бриф-опросник для строительной компании, и мы можем им поделиться! 😉

4. Составь план ремонтных работ и сроки их исполнения

Составь четкий план того, что и когда будешь делать! 📅 Раздели все работы на этапы: подготовка, основные работы, отделка и уборка. Определи сроки исполнения каждого этапа, чтобы ты знала, когда ждут поэтапные завершения и когда можно будет вдохнуть в новое пространство свежий воздух!

-4

Независимо от наличия или отсутствия авторского надзора, мы даем свои рекомендации, чтобы ремонт состоялся согласно проекту. У нас разработан План-график закупок и проведения ремонтных работ (пример). Производственный план запрашивается у строителей

5. Составь план закупа и собери все сметы

Теперь самое время собрать все сметы на материалы и мебель! 💰 Это поможет тебе понять общий бюджет и избежать ненужных трат. Сделай список всех необходимых товаров, посмотри цены и не забывай добавить небольшую «подушку» в бюджет на неожиданные расходы. Лучше быть готовым к сюрпризам, чем расстраиваться в процессе!

-5

Мы, как правило, после разработки визуальной концепции будущего интерьера, переходим к следующему шагу. Для согласования материалов, заложенных в дизайн-проект, мы выезжаем с заказчиком в салоны и рассматриваем все образцы. Далее салоны предоставляют сметы и спецификации со всеми необходимыми материалами и сроками поставки или изготовления. Таким образом, ещё до начала ремонта у вас будет понимание бюджета и сроков.

Вот такой план!

Пусть в вашем ремонте будут только приятные хлопоты.

...

В нашем портфолио можно найти разнообразные дизайн-проекты, от классических до современных. Наша команда специалистов работает с большим вдохновением и страстью к созданию уникальных решений для каждого клиента.

Дизайнер интерьеров Анастасия Кузнецова