Добавить в корзинуПозвонить
Найти в Дзене
Проект И.Т.П

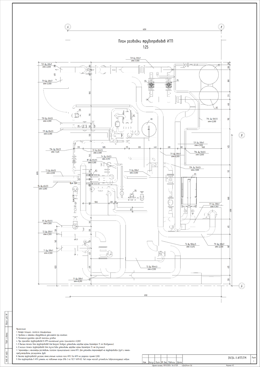
Рабочие чертежи для ИТП 1,5 Гкал/ч

Это третий пост из серии "проект ИТП "курильщика"". Первая часть здесь. Вторая часть здесь. Как и обещал, показываю результат свой работы. Еще раз скажу, это не полноценный проект, а просто чертежи для монтажников. Если вам нужен проект, заполните небольшую форму: https://forms.yandex.ru/u/62d81292bf7fde0924872e26/ или можно написать в любое представительство в описании канала.
Модель ИТП с трассировкой лучей
Модель ИТП с трассировкой лучей

Это третий пост из серии "проект ИТП "курильщика"".

Первая часть здесь.

Вторая часть здесь.

Как и обещал, показываю результат свой работы.

Еще раз скажу, это не полноценный проект, а просто чертежи для монтажников.

Посмотреть чертежи

Если вам нужен проект, заполните небольшую форму: https://forms.yandex.ru/u/62d81292bf7fde0924872e26/

или можно написать в любое представительство в описании канала.