Найти в Дзене
DIVAN.RU

ДО/ПОСЛЕ: красиво переделали однушку 59 кв.м в центре Питера

Хозяйка этой квартиры — состоявшаяся женщина-врач, увлечена литературой, обожает путешествовать и гулять по улочкам родного Санкт-Петербурга. Для нее дизайнер Дарья Ковалева создала нежный интерьер с атмосферой бесконечной весны. Об объекте: однокомнатная квартира 59 кв.м, г. Санкт-Петербург Автор проекта: дизайнер Дарья Ковалева, автор фото Максим Максимов Бюджет: 5,7 млн. рублей Эта квартира находится в доме 1890 года постройки. Заказчица купила ее на этапе демонтажа отделки. Прежние жильцы уже начали ремонт, но передумали. Квартира не нуждалась в перепланировке: большая кухня-гостиная, отдельная спальня, просторная прихожая и совмещенный санузел полностью устраивали новую владелицу. Дополнительный приятный бонус — все пять окон выходят на солнечную сторону, и из них открывается красивый вид. Мы старались передать ощущение легкости майского утра, когда птицы заливаются щебетом, а ветерок обволакивает свежестью цветущих деревьев, — рассказывает дизайнер. — Хотелось, чтобы это ощущение
Оглавление

Хозяйка этой квартиры — состоявшаяся женщина-врач, увлечена литературой, обожает путешествовать и гулять по улочкам родного Санкт-Петербурга. Для нее дизайнер Дарья Ковалева создала нежный интерьер с атмосферой бесконечной весны.

Об объекте: однокомнатная квартира 59 кв.м, г. Санкт-Петербург

Автор проекта: дизайнер Дарья Ковалева, автор фото Максим Максимов

Бюджет: 5,7 млн. рублей

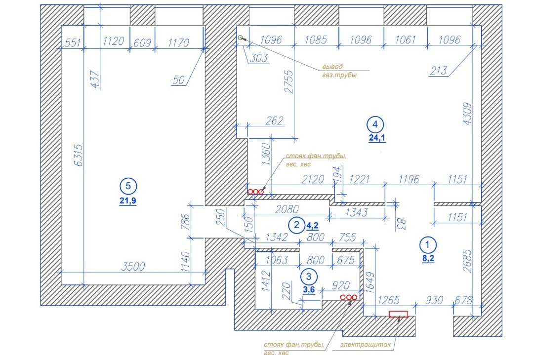
Эта квартира находится в доме 1890 года постройки. Заказчица купила ее на этапе демонтажа отделки. Прежние жильцы уже начали ремонт, но передумали. Квартира не нуждалась в перепланировке: большая кухня-гостиная, отдельная спальня, просторная прихожая и совмещенный санузел полностью устраивали новую владелицу. Дополнительный приятный бонус — все пять окон выходят на солнечную сторону, и из них открывается красивый вид.

Мы старались передать ощущение легкости майского утра, когда птицы заливаются щебетом, а ветерок обволакивает свежестью цветущих деревьев, — рассказывает дизайнер. — Хотелось, чтобы это ощущение дарило радость даже холодной зимой.

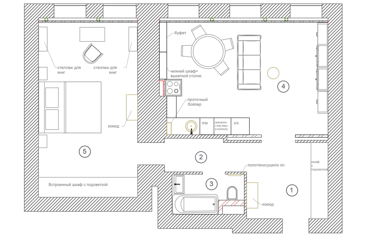
Кухня-гостиная

Особенность начальной планировки в том, что кухня-гостиная представляет единое просторное помещение с тремя окнами. Прежняя отделка здесь уже была демонтирована. Требовалось выполнить финальные работы: покрасить стены, уложить напольное покрытие и продумать расстановку мебели с учетом пожеланий заказчицы.

Для стен выбрали пудровые тона — их легко изменить спустя время и они соответствуют пожеланиям хозяйки об уютном светлом интерьере. «Керамогранит в прихожей и в кухне с рисунком терраццо — это легкое напоминание об Италии, куда заказчица любит ездить в путешествия», — комментирует дизайнер.

Прием: кухню и гостиную визуально делит на зоны напольного покрытие. Это не только декоративное, но и практичное решение — для мокрой зоны керамогранит более долговечен, а ламинат с текстурой дерева в гостиной создает уютную атмосферу.

Проект дизайнера Дарьи Ковалевой; автор фото Максим Максимов
Проект дизайнера Дарьи Ковалевой; автор фото Максим Максимов

Кухонный угловой гарнитур выполнен на заказ по индивидуальным размерам. Верхний ярус — только на одной стене, так пространство кажется «легче». А чтобы разные по глубине нижние модули «встали» в одну линию, стену за вытяжкой нарастили. За одним из фасадов спрятали стиральную машинку.

Обратите внимание: фартук предусмотрен только над плитой, на остальных стенах — моющаяся краска.

Продолжением гарнитура стали белые шкаф с выкатным столом и шкаф-витрина. Они визуально дробят пространство и отделяют кухню от столовой зоны. Выкатной стол удобно использовать как дополнительную рабочую поверхность или как стол для сервировки. За стеклянными фасадами витрины можно красиво расставить посуду и декор, а за глухими — разные мелочи, там же скрыт доступ к коммуникациям.

Прием: разные по дизайну стулья делают интерьер более выразительным, динамичным и зрительно объединяют столовую с гостиной — в ней тоже есть белая мебель с деревянными элементами. Яркая картина в простенке между окнами подобрана в оттенок гарнитура.

Обратите внимание на светильник над обеденным столом. Он выполнен в форме ветки, на которой сидят «птицы». Светильник стал отправной точкой и названием проекта — «Птицы на ветке».

В гостиной — угловой диван Ситено, комод Модерн и стеллаж Нордик от отечественного производителя мебели divan.ru. Светлая бархатистая обивка перекликается со цветом стен, а тонкие деревянные опоры выглядят «легко», элегантно и облегчают процесс уборки. Диван раскладывается и может служить дополнительным спальным местом.
Проект дизайнера Дарьи Ковалевой; автор фото Максим Максимов
Проект дизайнера Дарьи Ковалевой; автор фото Максим Максимов

В кадре угловой диван Ситено Barhat Light, divan.ru >>

-8

▶️Сейчас этот диван можно купить с выгодой до 24 000₽*. Сделайте интерьер уютнее этой осенью со скидками до 60% на распродаже divan.ru >>

Комод «с листочками» продолжает тему природы. Благодаря объемному растительному декору он притягивает взгляды и становится выразительным акцентом..

В кадре комод Модерн White, divan.ru >>

Широкий дверной проем между кухней-гостиной и прихожей оформили раздвижными стеклянными дверьми. В тандеме с белым напольным плинтусом они создают легкий освежающий контраст, деликатно обрамляя комнату.

В кадре стеллаж Нордик Light, divan.ru >>

Спальня

Главные преимущества спальни — площадь 22 кв.м, правильная квадратная форма комнаты и наличие двух окон.

В ходе переделки поменяли палитру: нежный пудровый и другие светлые тона добавили воздуха и создали расслабляющую атмосферу. В качестве акцентов — кровать в сочной обивке и текстиль.

Кстати: кровать Весмар от divan.ru выполнена в духе mid-century — плавные округлые формы и высокие опоры придают модели визуальную легкость. А яркая обивка делает интерьер выразительным.

Проект дизайнера Дарьи Ковалевой; автор фото Максим Максимов
Проект дизайнера Дарьи Ковалевой; автор фото Максим Максимов

На фото: кровать Весмар 160 Velvet Coral, divan.ru >>

-13

▶️Сейчас эту кровать можно купить с выгодой до 24 000₽*. Сделайте интерьер уютнее этой осенью со скидками до 60% на распродаже divan.ru >>

Прием: бра над тумбами имеют схожий дизайн со светильником в кухне и поддерживают весеннее настроение, которое логично дополняет картина «У бассейна» художницы Саши Соколовой.

Для хранения предназначен встроенный под потолок шкаф. Часть фасадов сделали зеркальными — они отражают свет от окон и добавляют объема.

В рабочей зоне около окна — винтажный стол и акцентный стул в цвет обивки кровати. Дополняют дизайн стеллаж Аргос от бренда divan.ru и оригинальный торшер.

На фото: стеллаж Аргос Белый от 19 990 ₽* >>

Прихожая

В этой зоне требовалось продумать хранение таким образом, чтобы не загромождать пространство.

Прихожая тоже выполнена в пудровом оттенке, на полу — плитка терраццо. В нишу встроили большой шкаф — он предназначен для хранения верхней одежды, чемоданов, хозяйственных принадлежностей и пылесоса. Для хранения шапок, шарфов, перчаток и зонтов выбрали комод с цветочным принтом.

Санузел

До переделки помещение можно было назвать «казенным». Белая крупная плитка напоминала больничные стены, а нелогичное использование пространства делало санузел нефункциональным.

В новом санузле плитку под дерево скомбинировали с белым кабанчиком, квадратной плиткой и моющейся краской. Прямоугольная плитка, уложенная шахматным способом, выглядит необычно и выразительно, даже несмотря на то, что цвет материала — белый.

От душевой отказались в пользу полноценной ванны. Для хранения предусмотрели подвесную тумбу под раковиной и крючки.

=========

Оцените материал в комментариях, а если статья понравилась — не забудьте поставить лайк.

🖤divan.ru — не только блог про интерьеры, но и производитель доступной дизайнерской мебели. Ищите новые идеи и переходите на сайт, чтобы воплотить их в жизнь.

*Цены актуальны на момент публикации статьи