Добавить в корзинуПозвонить
Найти в Дзене
DIVAN.RU

Модная однушка 43 кв.м с ремонтом от застройщика

Типовая отделка этой квартиры стала отправной точкой для преображения — как чистый лист для художника. Объект: однокомнатная квартира 43,6 кв.м , Беларусь, Минский р-н, д. Копище Авторы проекта: дизайнеры Алексей и Екатерина Савицкие, автор фото Александр Юрчик Квартира приобреталась с чистовой отделкой от застройщика: окрашенные потолки, фоновые светлые обои, двери с наличниками в цвете «беленый дуб», светлый ламинат, плитка в санузлах, все сантехническое оборудование, розетки и выключатели. Из мебели была установлена угловая кухня с отдельно стоящим холодильником, посудомойкой, духовым шкафом, мойкой и смесителем, тумба с зеркалом в санузле. Особенностью проекта была невозможность сноса или переноса перегородок и дверных проемов. В итоге комнату разделили на гостиную и спальню. В общую зону (гостиную) можно попасть как из кухни, так и напрямую из прихожей. В зоне отдыха владельцы просили поставить диван со спальным местом. Диван подобрали не только функциональный, но и отвечающий дух
Оглавление

Типовая отделка этой квартиры стала отправной точкой для преображения — как чистый лист для художника.

Авторы проекта дизайнеры Алексей и Екатерина Савицкие, автор фото Александр Юрчик
Авторы проекта дизайнеры Алексей и Екатерина Савицкие, автор фото Александр Юрчик

Объект: однокомнатная квартира 43,6 кв.м , Беларусь, Минский р-н, д. Копище

Авторы проекта: дизайнеры Алексей и Екатерина Савицкие, автор фото Александр Юрчик

Квартира приобреталась с чистовой отделкой от застройщика: окрашенные потолки, фоновые светлые обои, двери с наличниками в цвете «беленый дуб», светлый ламинат, плитка в санузлах, все сантехническое оборудование, розетки и выключатели. Из мебели была установлена угловая кухня с отдельно стоящим холодильником, посудомойкой, духовым шкафом, мойкой и смесителем, тумба с зеркалом в санузле.

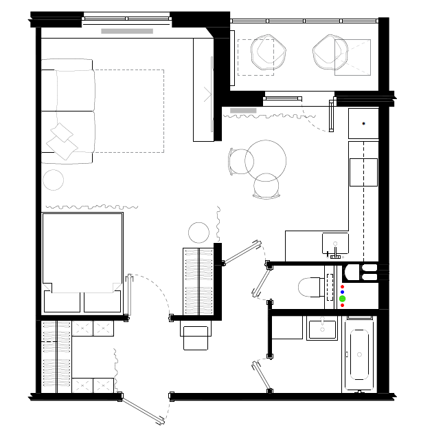
Особенностью проекта была невозможность сноса или переноса перегородок и дверных проемов. В итоге комнату разделили на гостиную и спальню. В общую зону (гостиную) можно попасть как из кухни, так и напрямую из прихожей.

Планировочное решение
Планировочное решение

Гостиная

В зоне отдыха владельцы просили поставить диван со спальным местом. Диван подобрали не только функциональный, но и отвечающий духу времени: лаконичный, современный, с округлыми формами. Обивка насыщенного терракотового цвета задает настроение всему помещению. Это модель Бонент от бренда divan.ru.

В кадре диван Боннет Velvet Terra >>, ТВ-тумба Квелен Latte от divan.ru >>

▶️Сейчас этот диван можно купить с выгодой до 42 000₽*. Сделайте интерьер уютнее этой осенью со скидками до 60% на распродаже divan.ru >>

-4

Интересный ход: стандартный пластиковый подоконник и радиатор скрыли за экраном-подиумом. Получилась многофункциональная конструкция: закрытые зоны хранения и одновременно дополнительная поверхность, на которой можно посидеть у окна либо поставить чашку кофе. Ковер оживляет пространство геометрией, в диалоге с ритмом оконной решетки и элементами черного цвета.

Спальня

Кровать скрывают блэкаут шторы, для хорошего отдыха в любое время суток. Готовый гардеробный шкаф Енссон от divan.ru вписался в имеющийся простенок, будто был спроектирован именно для него. Дополнительные места хранения находятся под спальным местом.

Чтобы стена над кроватью не пачкалась, с двух сторон закрепили листы ЛДСП Egger под шпон дерева. Изголовье «продлили» и за дверью — так объем стал завершенным, и композиция уравновесилась. Бонус — под листом ЛДСП спрятали ненужные электровыводы и провод от бра.

В кадре шкаф Енссон с рифлеными фасадами, divan.ru >>

Застройщик уже спланировал электрику и вывел розетки, поэтому переносы локального света пришлось маскировать. По потолку идет видимая проводка от центра в сторону гостиной и спальни. Провода в спальне и на кухне прятать не стали — во-первых, такое решение интересно смотрится, во-вторых, хотели обойтись без ремонтных работ.

Кухня

Гарнитур на кухне установил застройщик, дизайнеры добавили только актуальные акцентные ручки и полку-бра. Природные мотивы из леса за окном плавно перетекли и в саму квартиру в виде обеденной группы c деревянными стульями Виш от divan.ru. Локальный вечерний свет над столом усиливает этот эффект. Из кухни можно выйти на балкон,там обустроили зону отдыха с комфортными креслами Акапулько.

Санузел

В санузле повесили плотную портьеру. Она подчеркнула выразительную отделку помещения, и цветовые вкрапления в плитке терраццо стали перекликаться с мебельными акцентами всей квартиры.

Прихожая

В прихожей была достаточно глубокая ниша для гардеробного шкафа. Чтобы максимально задействовать ее глубину, системы хранения спроектировали в форме буквы «П». Вместо дверей — текстильные шторы в изумрудном оттенке. Для удобства во входной зоне предусмотрели зеркало высотой в потолок, пуф Куб от divan.ru и подвесную тумбу для мелочей, закрепленную прямо на зеркале.

=========

Оцените материал в комментариях, а если статья понравилась — не забудьте поставить лайк.

🖤divan.ru — не только блог про интерьеры, но и производитель доступной дизайнерской мебели. Ищите новые идеи и переходите на сайт, чтобы воплотить их в жизнь.

*Цены актуальны на момент публикации статьи