Найти в Дзене

ПРОЕКТ ЧАСТНОГО ДОМА ДЛЯ МОЛОДОГО ЧЕЛОВЕКА

Площадь: 176 м2
Дом в современном шале, новый легкий взгляд
на тяжелые фактуры в стилистике шале. Гармоничное сочетание фактуры натурального камня и нового дерева, теплое окутывающее освещение Тип обьекта:
Жилая недвижимость Заказчик:
Молодой человек Количество
комнат: 9 Стиль дизайна:
Современный шале Площадь:
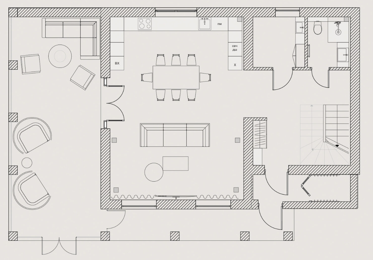
176 м² ПЛАН: ДО \ ПОСЛЕ
1 - ый этаж дома ПЛАН : ДО \ ПОСЛЕ
2 - ый этаж дома Каждый раз разрабатывая концепцию дизайна мы собираем доски вдохновения, чтобы продемонстрировать клиенту общий стиль, цветовую палитру, текстуры и атмосферу будущего интерьера. Мудборд служит ориентиром, позволяя дизайнеру и клиенту лучше понять и согласовать визуальные и эмоциональные аспекты на старте работ. Мы разрабатываем коллажи интерьера для того, чтобы наглядно показать, как различные элементы — мебель, декор, материалы и цветовые решения — будут сочетаться в одном пространстве. Это помогает визуализировать концепцию проекта, убедиться в гармоничности всех деталей и лучше передать клиенту ид
Оглавление

Площадь: 176 м2
Дом в современном шале, новый легкий взгляд
на тяжелые фактуры в стилистике шале.

Гармоничное сочетание фактуры натурального камня и нового дерева, теплое окутывающее освещение

Детали проекта

Тип обьекта:
Жилая недвижимость

Заказчик:
Молодой человек

Количество
комнат: 9

Стиль дизайна:
Современный шале

Площадь:
176 м²

ПЛАН: ДО \ ПОСЛЕ
1 - ый этаж дома

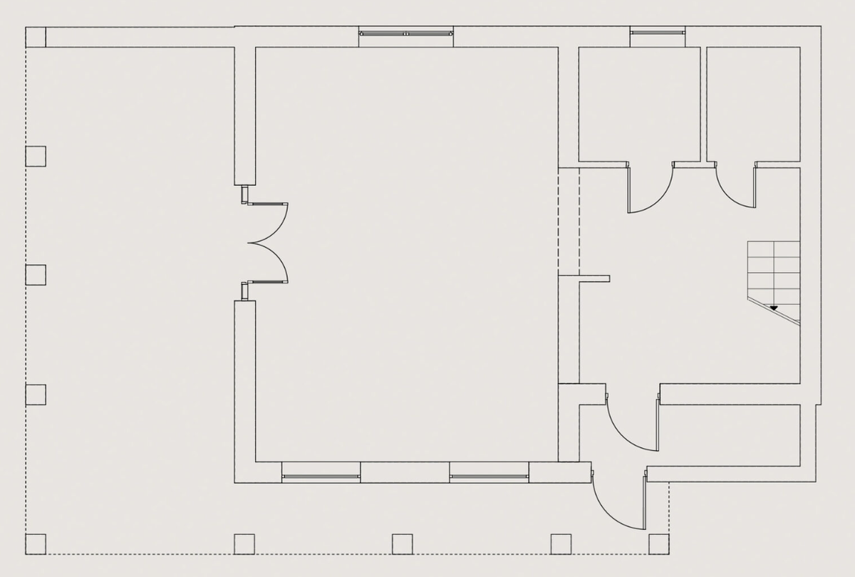
ПЛАН : ДО \ ПОСЛЕ
2 - ый этаж дома

MOOD - Настроение

Каждый раз разрабатывая концепцию дизайна мы собираем доски вдохновения, чтобы продемонстрировать клиенту общий стиль, цветовую палитру, текстуры и атмосферу будущего интерьера.

Мудборд служит ориентиром, позволяя дизайнеру и клиенту лучше понять и согласовать визуальные и эмоциональные аспекты на старте работ.

CONCEPT

Мы разрабатываем коллажи интерьера для того, чтобы наглядно показать, как различные элементы — мебель, декор, материалы и цветовые решения — будут сочетаться в одном пространстве.

Это помогает визуализировать концепцию проекта, убедиться в гармоничности всех деталей и лучше передать клиенту идею будущего интерьера, упрощая процесс принятия решений.

Дизайн-проект в стиле современного шале создает уютное и гармоничное пространство, где основным элементом является дерево.

Натуральные материалы, такие как массив дерева и камень, придают интерьеру теплоту и естественность. Пространство оформлено в спокойных, теплых тонах, с минималистичными, но функциональными элементами мебели.

Большие окна обеспечивают естественное освещение и связь с природой, а уютная атмосфера поддерживается мягким текстилем, камином и акцентами из меха или шерсти.

Современные элементы добавляют функциональности, не нарушая общей гармонии традиционного шале.

Результат проекта

Подготовим дизайн проект под Ваш бюджет.
Напишите нам в телеграм:
https://t.me/ustinova_design
Или Вконтакте:
https://vk.com/im?sel=-130546129