Добавить в корзинуПозвонить
Найти в Дзене
SAPAROVA STUDIO design interior

5 шагов к созданию интерьера кофейни, в которую хочется вернуться

Рецепт идеального кофе — зерно правильной обжарки, отличная кофемашина и руки профессионального бариста. Рецепт кофейни, куда хочется вернуться, — сочетание стильного интерьера, эстетики деталей и комфорта. Дизайн-проект именно такого места создала наша команда SAPAROVA STUDIO. Новая кофейня «Muffle» вскоре появится в ЖК «Огни» (г. Москва), в самом сердце шумного мегаполиса. Нам раз за разом удается учесть все пожелания заказчика и воплощать проекты. Мы создали и отточили систему, чтобы каждый проект был уникален, отражая личные вкусы и особенности бизнеса клиента. Процесс создания стильного и функционального интерьера начинается с тщательной подготовки. Наши эксперты выезжают на объект для проведения замеров и фотофиксации. Это позволяет дизайнерам точно оценить параметры и особенности пространства, с которым предстоит работать. Одновременно с этим мы заполнили техническое задание — детализированную анкету, где фиксируются все предпочтения заказчика по мебели, освещению и другим ключе
Оглавление

Рецепт идеального кофе — зерно правильной обжарки, отличная кофемашина и руки профессионального бариста. Рецепт кофейни, куда хочется вернуться, — сочетание стильного интерьера, эстетики деталей и комфорта.

Кофейня "Muffle" в ЖК "Огни" г. Москва
Кофейня "Muffle" в ЖК "Огни" г. Москва

Дизайн-проект именно такого места создала наша команда SAPAROVA STUDIO. Новая кофейня «Muffle» вскоре появится в ЖК «Огни» (г. Москва), в самом сердце шумного мегаполиса.

Нам раз за разом удается учесть все пожелания заказчика и воплощать проекты. Мы создали и отточили систему, чтобы каждый проект был уникален, отражая личные вкусы и особенности бизнеса клиента.

От идеи к вдохновению

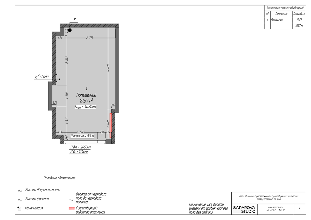
Процесс создания стильного и функционального интерьера начинается с тщательной подготовки. Наши эксперты выезжают на объект для проведения замеров и фотофиксации. Это позволяет дизайнерам точно оценить параметры и особенности пространства, с которым предстоит работать.

Обмерный план с расположением существующих инженерных коммуникаций
Обмерный план с расположением существующих инженерных коммуникаций

Одновременно с этим мы заполнили техническое задание — детализированную анкету, где фиксируются все предпочтения заказчика по мебели, освещению и другим ключевым элементам дизайна будущей кофейни. Собранные референсы от заказчика служат источником вдохновения и помогают сформировать общий стиль будущего интерьера. После согласования всех деталей мы заключили договор, который определяет этапы работ и гарантирует их выполнение в срок.

Основные пожелания заказчика

Жители большого города, какие же они разные! Со своими мыслями, делами, задачами и мечтами… Но всех объединяет желание хотя бы на несколько минут укрыться от суеты и остаться наедине с собой настоящим. Одно из желаний заказчика — создать атмосферу тепла и гостеприимства, понятную и близкую широкой аудитории от 16 до 45 лет.

От заказчика мы получили бренд бук, который был заказан у графического дизайнера Аниты , графическому дизайнеру получилось воплотить эти идеи в интерьере новой кофейни. «Muffle Coffee» — оазис тишины и уюта, где каждый элемент дизайна отражает суть названия. Muffle в переводе с английского — приглушить звук. Пространство кофейни как будто укутывает теплом и спокойствием. Здесь можно сделать паузу и насладиться моментами истинного умиротворения.

Для нас было бы отлично, как в этом проекте, если Вы уже имеете свой фирменный стиль, собственный брендбук или логотип перед началом создания дизайн-проекта интерьера, чтобы процесс развивался более динамично.

С помощью готового концепта и логотипа кофейни, наши дизайнеры интерьера в будущем с легкостью составили коллажи для проекта.

Формируем пространство

На этом этапе мы тщательно проработали планировочное решение и сформировали пространство будущей кофейни, чтобы сделать его не только функциональным, но комфортным и эстетичным. Мы создали несколько вариантов и вместе выбрали идеальное.

В итоге, обговорив с заказчиком, мы остановились на первом варианте, но внесли некоторые правки в планировку.

Итоговый вариант планировки кофейни "Muffle"
Итоговый вариант планировки кофейни "Muffle"

Концепция и стиль

Теперь пришло время вдохновения и творчества. На этом этапе мы создали коллажи интерьера кофейни, отражающие уникальные предпочтения заказчика, с акцентом на стиль, цвет и основные проектные решения. Наш дизайнер предложил несколько концептуальных вариантов интерьера, на основе которых мы окончательно согласовали стилистику.

Воплощение видения

3D-визуализация — самый зрелищный элемент проекта. Мы создали визуальную модель будущей кофейни, чтобы увидеть интерьер в реальном воплощении. Этот инструмент живо передает объем и световые нюансы, подчеркивает текстуры и материалы, а также демонстрирует идеальное расположение мебели. Заказчик может буквально погрузиться в будущее пространство перед реализацией проекта.

Концепция заведения гармонично сочетает спокойствие и современный стиль. В визуальном коде прослеживаются мотивы минимализма и стиля джапанди. Тандем этих направлений позволяет создать интерьер, вдохновленный самой природой, который так ценят обитатели мегаполиса: смягченную геометрию форм, натуральные материалы, утонченную цветовую гамму и текстуры.

Каждая деталь несет свой смысл: красота необработанных фактур дерева и камня, необычная керамика и текстиль. Особенное внимание дизайнеры уделили освещению. Свет падает через большие панорамные окна и создает игру теней на отделке и декоре. Подвесные светильники, макраме и акцентные подвесы из текстиля придают индивидуальность и воздушность пространству «Muffle».

Ваш идеальный интерьер готов

В финале работы над проектом мы подготавливаем детализированную документацию, охватывающую все аспекты вашего будущего интерьера — от расстановки мебели до сложных инженерных решений.

Доверьтесь нашему опыту, чтобы превратить ваши идеи в реальность с точностью и вниманием к деталям, сделав пространство функциональным и стильным. Пусть интерьер для вашего бизнеса станет отражением вашего вкуса и ценностей, а наша команда SAPAROVA STUDIO обеспечит точность и качество на каждом шаге.

Еда
6,93 млн интересуются