Добавить в корзинуПозвонить
Найти в Дзене
Дом Мечты

Планировка дома до 70кв.м. как использовать максимум площади

В проектировании небольших домов площадью 50-70 кв.м. есть свои важные нюансы, которые помогут избежать серьёзных проблем в дальнейшем. В центре дома лучше располагать технические помещения, которые не требуют окон. А уже от ядра следует располагать остальные комнаты в доме. Это поможет избежать неудобных вариантов с проходными комнатами. Для такой площади второй этаж — непрактичное решение. В таком пространстве сложно разместить полноценную лестницу. Прямоугольная форма дома не оставит затемнённых помещений ближе к центру. В такой форме проще спланировать комнаты и обстановку. Тонкие и лёгкие стены — это экономия пространства и денег, в том числе и на фундамент. Для небольшого дома это адекватное решение. Можно использовать газобетон, например. В загородном доме второй выход необходим. Иначе придётся постоянно бегать вокруг дома на участок. Однако в маленьком доме дополнительный выход съест пару квадратных метров. Выход — компенсировать потери террасой у этого входа. Если площадь дома
Оглавление

В проектировании небольших домов площадью 50-70 кв.м. есть свои важные нюансы, которые помогут избежать серьёзных проблем в дальнейшем.

1. Ядро дома

В центре дома лучше располагать технические помещения, которые не требуют окон. А уже от ядра следует располагать остальные комнаты в доме. Это поможет избежать неудобных вариантов с проходными комнатами.

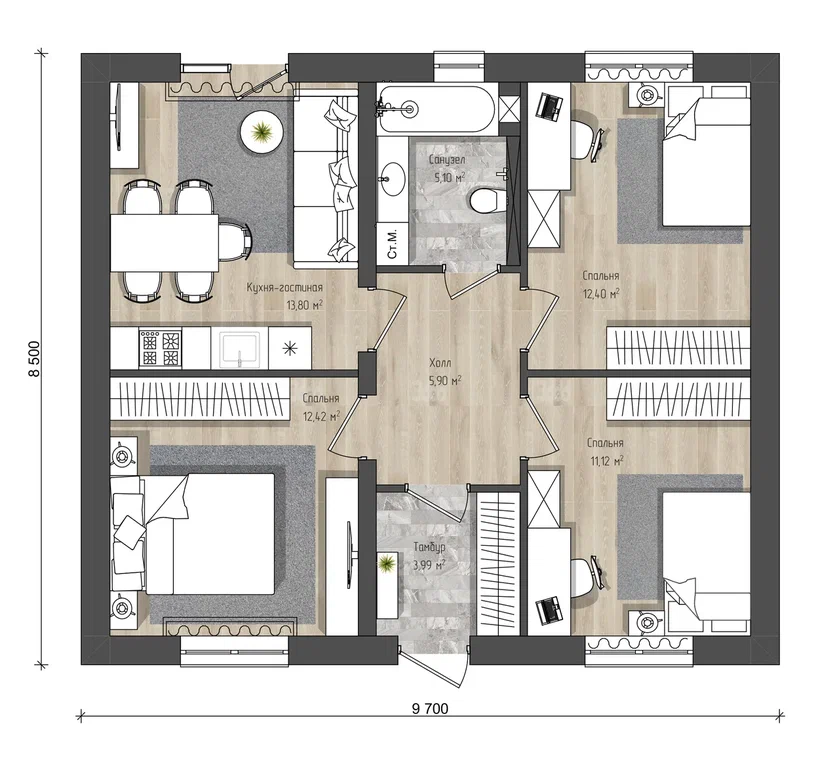
Проект Вена, ссылка ниже
Проект Вена, ссылка ниже
Проект "Вена" 70м.кв, от 5,15млн руб, ежемесячный платёж от 25750руб.

2. Один этаж

Для такой площади второй этаж — непрактичное решение. В таком пространстве сложно разместить полноценную лестницу.

3. Прямоугольник, а не квадрат

Прямоугольная форма дома не оставит затемнённых помещений ближе к центру. В такой форме проще спланировать комнаты и обстановку.

4. Тонкие стены

Тонкие и лёгкие стены — это экономия пространства и денег, в том числе и на фундамент. Для небольшого дома это адекватное решение. Можно использовать газобетон, например.

5. Второй выход

В загородном доме второй выход необходим. Иначе придётся постоянно бегать вокруг дома на участок. Однако в маленьком доме дополнительный выход съест пару квадратных метров. Выход — компенсировать потери террасой у этого входа.

6. Меньше комнат

Если площадь дома ограничена, не стоит плодить клетушки ненужных комнат. Лучше сделать меньше просторных комнат, чтобы стены “не давили”. Ту же мастерскую можно организовать в отдельной постройке, например. Гостиную лучше объединить с кухней. Так дом будет ощущаться более просторным и уютным.

Проект Вена, ссылка ниже
Проект Вена, ссылка ниже
Проект "Вена" 70м.кв, от 5,15млн руб, ежемесячный платёж от 25750руб.

7. 2 в 1

Или даже 3 в 1. Не только кухню можно совместить с гостиной. Технические помещения можно соединить с кладовыми, спрятать туда стиральную машину, сушилку и гладильную доску. В спальне можно организовать рабочую зону и т.д.

8. Небольшие спальни

В небольшом доме нецелесообразно делать огромные спальни. 12-14 кв.м. вполне достаточно. А места для хранения лучше организовать отдельно в гардеробной.

Проект Вена, ссылка ниже
Проект Вена, ссылка ниже
Проект "Вена" 70м.кв, от 5,15млн руб, ежемесячный платёж от 25750руб.

9. Кухня попроще

Обеденный стол вместо острова, кухня в линию или буквой Г позволит сэкономить пространство без потери функциональности.

10. Не экономим на мебели

Стандартная мебель крадёт пространство маленьких помещений. Остаются неиспользуемые промежутки и уголки. Лучше раз потратиться на качественную мебель под свой дом и сэкономить такое ценное пространство.

11. Раздвижные двери

Много пространства крадут двери, требующие места для открытия-закрытия. Можно установить раздвижные двери, которые задвигаются в специальный пенал, а не в простенок. Однако придётся потратиться.

12. Терраса

Весной, летом, осенью, терраса это полноценное домашнее пространство, которое может выполнять функции гостиной, столовой, летней кухни, зоной отдыха и работы.

Итог

Продумать планировку маленького дома гораздо сложнее, чтобы все уместить, но при этом получить хоть немного простора.

-4

Обращайтесь к тем, кто построит вам дом под ключ в новых перспективных микрорайонах с коммуникациями, гаражом, дорогами и инфраструктурой, оформит вам ипотеку и избавит ото всех головных болей. Полную стоимость дома, вместе с ремонтом "под ключ" можно включить в стоимость ипотеки. Нажимайте ссылку ниже, чтобы узнать подробности 👇

Строительство и продажа домов из газобетона в Калуге