Добавить в корзинуПозвонить
Найти в Дзене
Дачные опыты

Как из двушки сделать трешку для семьи из 4 человек?

Добрый день, уважаемые друзья, подписчики и читатели! В настоящее время я работаю над четвертым учебным дизайн проектом. На этот раз мне предстоит создать проект двухкомнатной квартиры для семейной пары, воспитывающей двоих дочек. Родители Сергей и Екатерина работают в торговле, старшая дочь Кристина 12 лет учится в школе, младшая Анюта 4 лет ходит в детский сад, обе девочки занимаются художественной гимнастикой. Семья дружная, свободное время проводят вместе, часто выезжают на природу и любят путешествовать. Недавно супруги приобрели новую двухкомнатную квартиру площадью 63,14 м2. Заказчики высказали желание сделать в квартире перепланировку, чтобы у родителей и детей были отдельные комнаты и общее пространство для отдыха. Они хотели поделить гостиную на 2 части, на одной разместить детскую, а вторую соединить с кухней, а также увеличить гардероб за счет коридора. Я пояснила заказчикам, что объединить кухню с частью гостиной не получится, такую перепланировку не согласуют, так как ку

Добрый день, уважаемые друзья, подписчики и читатели!

В настоящее время я работаю над четвертым учебным дизайн проектом. На этот раз мне предстоит создать проект двухкомнатной квартиры для семейной пары, воспитывающей двоих дочек. Родители Сергей и Екатерина работают в торговле, старшая дочь Кристина 12 лет учится в школе, младшая Анюта 4 лет ходит в детский сад, обе девочки занимаются художественной гимнастикой.

Семья дружная, свободное время проводят вместе, часто выезжают на природу и любят путешествовать.

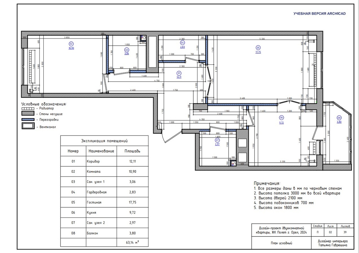
Недавно супруги приобрели новую двухкомнатную квартиру площадью 63,14 м2.

Двухкомнатная квартира_Исходный план. Чертеж автора.
Двухкомнатная квартира_Исходный план. Чертеж автора.

Заказчики высказали желание сделать в квартире перепланировку, чтобы у родителей и детей были отдельные комнаты и общее пространство для отдыха. Они хотели поделить гостиную на 2 части, на одной разместить детскую, а вторую соединить с кухней, а также увеличить гардероб за счет коридора.

Я пояснила заказчикам, что объединить кухню с частью гостиной не получится, такую перепланировку не согласуют, так как кухня с газом должна быть отделена от жилых помещений дверями, при этом площадь гостиной позволяет поделить ее на 2 комнаты.

В техническом задании к проекту заказчики указали следующие пожелания:

1. В коридоре организовать входную зону и зону хранения, разместить зеркало, шкаф для одежды, крючки для одежды, консоль и/или обувницу.

2. В одном из санузлов разместить душевую, унитаз, раковину и стиральную машину, по возможности зону хранения, в другом установить ванну, унитаз, раковину и шкаф для хранения.

3. В комнате площадью 10,9 м2 разместить спальню родителей с двухспальной кроватью и шкафом.

4. В детской разместить 2 спальных места шириной 900 мм, рабочий стол для старшей дочери и игровую зону для младшей, шкаф для одежды.

5. В гостиной разместить диван, телевизор, журнальный столик, шкаф и/или консоль, по возможности, кресло.

6. На кухне организовать зону готовки и зону приема пищи. Разместить овальный стол и 4 стула, холодильник шириной 600 мм, духовой шкаф, микроволновку, варочную газовую панель на 4 конфорки, посудомоечную машину 450мм, кондиционер и дополнительную морозильную камеру.

7. На балконе организовать зону хранения и зону отдыха.

При обсуждении стилистических и цветовых предпочтений заказчики отметили, что им нравятся светлые интерьеры с использованием фактуры дерева в скандинавском стиле, также супругам нравится синий цвет. Из предложенных вариантов они выбрали две цветовые палитры.

Дизайн детской обсуждали совместно с девочками, они также выбрали 2 варианта цветовых палитр для своей комнаты.

Выслушав и зафиксировав все пожелания заказчиков, я приступила к разработке планировочных решений.

С целью обеспечения потребностей клиентов мною было предложено 3 варианта планировочных решений. Два варианта предусматривали размещение детской на территории действующей гостиной и один вариант с размещением детской в комнате площадью 10,9 м2, так как с точки зрения жизненных ритмов семьи такой вариант мне кажется более верным.

Двухкомнатная квартира_Планировочное решение_Вариант 1. Чертеж автора.
Двухкомнатная квартира_Планировочное решение_Вариант 1. Чертеж автора.
Двухкомнатная квартира_Планировочное решение_Вариант 2. Чертеж автора.
Двухкомнатная квартира_Планировочное решение_Вариант 2. Чертеж автора.
Двухкомнатная квартира_Планировочное решение_Вариант 3. Чертеж автора.
Двухкомнатная квартира_Планировочное решение_Вариант 3. Чертеж автора.

В процессе обсуждения предложенных вариантов планировочных решений заказчики согласились с моим вариантом размещения детской и в целом вариант номер 2 им понравился, но они попросили доработать спальню, чтобы подход к кровати был с 3-х сторон.

В итоге был согласован такой вариант.

Двухкомнатная квартира_Планировочное решение_согласованный вариант. Чертеж автора.
Двухкомнатная квартира_Планировочное решение_согласованный вариант. Чертеж автора.

С целью реализации согласованного планировочного решения необходимо произвести перепланировку, для чего часть перегородок удаляются, на плане демонтажа они отмечены красным цветом.

Двухкомнатная квартира_План демонтажа. Чертеж автора.
Двухкомнатная квартира_План демонтажа. Чертеж автора.

Затем возводятся новые, на плане монтажа они отмечены зеленым цветом.

Двухкомнатная квартира_План монтажа. Чертеж автора.
Двухкомнатная квартира_План монтажа. Чертеж автора.

После перепланировки квартира заказчиков приобрела следующий вид.

Двухкомнатная квартира_План после перепланировки. Чертеж автора.
Двухкомнатная квартира_План после перепланировки. Чертеж автора.

В первую очередь я приступила к детальной проработке детской комнаты.

В качестве спального места для девочек была выбрана двух ярусная кровать, рядом с ней расположился вместительный шкаф для одежды. Рабочее место для Кристины я разместила напротив шкафа, рядом с рабочим местом на фоне сказочного города находится стеллаж для игрушек Анюты.

Двухкомнатная квартира_Детская комната. Визуализация автора.
Двухкомнатная квартира_Детская комната. Визуализация автора.

Нашлось место и для мольберта, на одной из сторон которого установлена грифельная доска, а на второй можно рисовать маркерами, при желании, на него можно прикрепить бумажные листы.

Двухкомнатная квартира_Детская комната. Визуализация автора.
Двухкомнатная квартира_Детская комната. Визуализация автора.

Для отделки стен использованы 3 вида материалов. Игровая зона выделена бесшовными обоями, выбор изображения навеян любовью семьи к путешествиям.

Двухкомнатная квартира_Детская комната. Визуализация автора.
Двухкомнатная квартира_Детская комната. Визуализация автора.

Зона кровати оформлена обоями с цветочным рисунком, очень похожим на цветы из выбранной девочками палитры.

Двухкомнатная квартира_Детская комната. Визуализация автора.
Двухкомнатная квартира_Детская комната. Визуализация автора.

Для остальных поверхностей используется краска в тон с фоном бесшовных обоев.

Освещение в комнате обеспечивается точечными светильниками и люстрой в форме воздушного шара, на рабочем месте предусмотрена настольная лампа, в качестве ночников – настенные светильники так же в форме воздушных шаров.

В качестве напольного покрытия я выбрала паркетную доску, поверх которой постелен ковер.

Несмотря на скромные размеры комнаты, мне удалось разместить полноценные спальные места для девочек, рабочее место для Кристины, стеллаж для игрушек для Анюты, который в последствии может быть заменен на рабочее место и вместительный шкаф для одежды.

Работа над дизайном других помещений квартиры продолжается, в следующей статье я расскажу вам о разработке дизайна коридора и санузлов.

Буду признательна за ваши отзывы о моем проекте, а если вам нужна консультация по расстановке мебели или дизайн проект для ремонта пишите мне на электронный адрес: theana@yandex.ru и мы обсудим вашу задачу.

До новых проектов!