Добавить в корзинуПозвонить
Найти в Дзене

Создаём атмосферу сада

Ландшафтное освещение создаёт атмосферу сада. Правильный подбор осветительных приборов позволяет выделить декоративные элементы и обеспечить безопасность передвижения по территории в тёмное время суток. Как выбрать освещение для вашего участка:   ✲ определить зону, которую хотите осветить  ✲ выбрать температуру цвета: тёплый или холодный  ✲ подобрать источников света: наземные, настенные, солнечные, LED - ленты.  В зависимости от объектов выделяют несколько типов ландшафтного освещения:  - общий свет: применяется для подсветки того или иного объекта - заливающее освещение: создает мощный поток света, по периметру забора вдоль границ земельного участка - маркировочное освещение: обозначает контуры объектов Правильный подход к осветительным решением поможет вам наслаждаться красотой вашего сада даже в тёмное время суток.  Если вы хотите оформить свой участок с нашей помощью, то мы всегда рядом:
tel. +7 (910) 595-98-97
e-mail: 2plants_design@mail.ru
#2plantsklg #gardendesign #landscape

Ландшафтное освещение создаёт атмосферу сада. Правильный подбор осветительных приборов позволяет выделить декоративные элементы и обеспечить безопасность передвижения по территории в тёмное время суток.

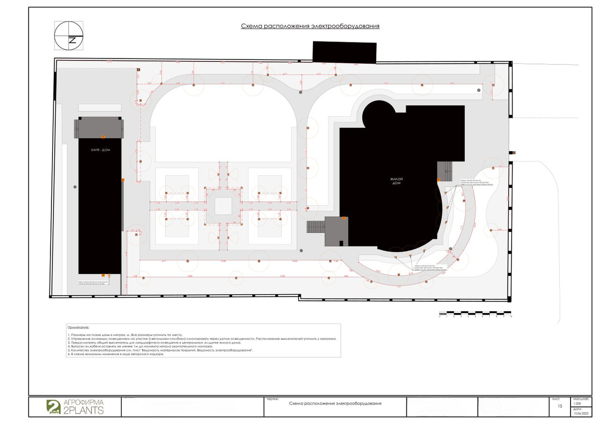
Схема расположения электрооборудования
Схема расположения электрооборудования

Как выбрать освещение для вашего участка:  

✲ определить зону, которую хотите осветить 

✲ выбрать температуру цвета: тёплый или холодный 

✲ подобрать источников света: наземные, настенные, солнечные, LED - ленты. 

В зависимости от объектов выделяют несколько типов ландшафтного освещения: 

- общий свет: применяется для подсветки того или иного объекта

-2

- заливающее освещение: создает мощный поток света, по периметру забора вдоль границ земельного участка

Подсветка по периметру забора
Подсветка по периметру забора

- маркировочное освещение: обозначает контуры объектов

Подсветка дорожки
Подсветка дорожки

Правильный подход к осветительным решением поможет вам наслаждаться красотой вашего сада даже в тёмное время суток. 

Если вы хотите оформить свой участок с нашей помощью, то мы всегда рядом:

tel. +7 (910) 595-98-97
e-mail:
2plants_design@mail.ru

#2plantsklg #gardendesign #landscapedesign #garden #ландшафтныйдизайн #ландшафтныйдизайнвкалуге #дизайнвкалуге #дизайнсада