Добавить в корзинуПозвонить
Найти в Дзене

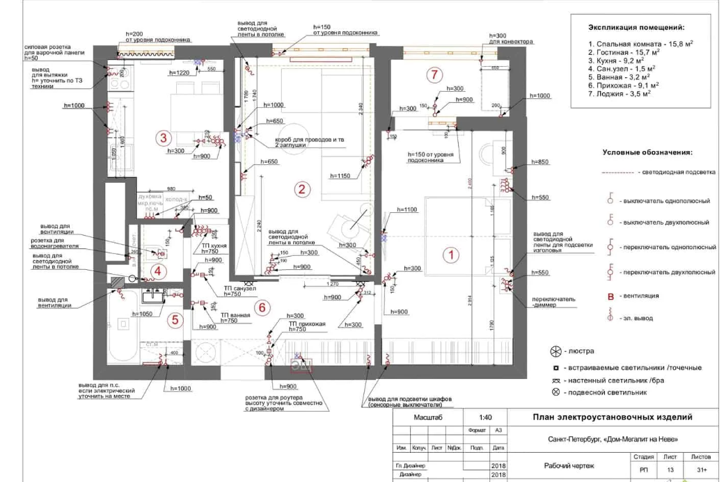
Почему же так важно сделать дизайн-проект до начала электромонтажных работ

Электричество — штука полезная, но и опасная тоже. Правильно спланированная и качественно смонтированная электросистема обеспечит безопасность жильцов и защиту от коротких замыканий или перегрузок. Ведь каждый прибор в доме требует определенной мощности и напряжения. Если проводка не рассчитана на нужные нагрузки, могут возникнуть неприятности в виде перегоревших розеток и даже пожара. Согласитесь, неприятно, когда после ремонта выясняется, что розеток мало, они расположены неудобно или выключатель света находится в неожиданном месте. Дизайн-проект учитывает, где и как мы будем использовать электроприборы, от расстановки мебели до места для зарядки телефона. Тщательный проект позволяет рассчитать оптимальное количество материалов, избежать лишних покупок или доработок в процессе. Также продуманный дизайн-проект позволяет оптимизировать потребление электроэнергии, что в итоге сказывается на счетах за электричество. Невидимые изначально работы скрывают в себе потенциал для красоты вашего
Оглавление

Первое и главное: безопасность.

Электричество — штука полезная, но и опасная тоже. Правильно спланированная и качественно смонтированная электросистема обеспечит безопасность жильцов и защиту от коротких замыканий или перегрузок. Ведь каждый прибор в доме требует определенной мощности и напряжения. Если проводка не рассчитана на нужные нагрузки, могут возникнуть неприятности в виде перегоревших розеток и даже пожара.

Дизайн проект для квартиры. Источник фото electrikman.ru
Дизайн проект для квартиры. Источник фото electrikman.ru

Второй момент — функциональность.

Согласитесь, неприятно, когда после ремонта выясняется, что розеток мало, они расположены неудобно или выключатель света находится в неожиданном месте. Дизайн-проект учитывает, где и как мы будем использовать электроприборы, от расстановки мебели до места для зарядки телефона.

Третий аспект — экономия денег.

Тщательный проект позволяет рассчитать оптимальное количество материалов, избежать лишних покупок или доработок в процессе. Также продуманный дизайн-проект позволяет оптимизировать потребление электроэнергии, что в итоге сказывается на счетах за электричество.

Четвертый пункт — эстетика.

Невидимые изначально работы скрывают в себе потенциал для красоты вашего жилища. Правильно спланированная подсветка, скрытая проводка и локация выключателей влияют на внешний вид интерьера и его удобство.

Квартира сделанная по дизайн проекту. Источник фото svetlo24.ru
Квартира сделанная по дизайн проекту. Источник фото svetlo24.ru

И наконец, правильно выполненный дизайн-проект избавит от головной боли в будущем при замене или ремонте электрической системы, потому что у вас будет полная схема всего, что спрятано за стенами.

Вот так, друзья, не стоит экономить на проектировании электропроводки, ведь это важная часть комфортной, безопасной и красивой жизни в вашей квартире. И лучше доверить это дело профессионалам, которые учтут все нюансы и создадут проект, идеально подходящий для вашего дома