Найти в Дзене
Все о ремонте квартир

"НЕ КАК У ВСЕХ" - Дизайн 2-комн. квартиры 70 м2 , цена

Это действительно необычный проект, а работа над ним была интересная, но не простая. Заказчики - семейная пара среднего возраста с дочкой подростком. Супруги - оба военные, поэтому большую часть жизни прожили в государственном жилье и - это их первая собственная квартира. Они очень трепетно относились к оформлению интерьера, если честно - даже немного боялись... К тому же нужно было вложиться в небольшой бюджет. Исходный план А самое для меня важное, что заказчики остались очень довольны результатом и, согласовали интерьер каждого помещения с первого раза - без сомнений и каких-либо изменений. И это не смотря на то, что изначально не было особого понимания, что вообще хотят видеть в интерьере. В процессе общения - картинка начала понемногу складываться, заказчикам нравится: эко-стиль, белые стены и мебель, зеленый цвет, много дерева и яркие краски - разные! Квартира была куплена в новом доме без отделки, практически все стены внутри помещения несущие, поэтому особой перепланировки не б
Оглавление

Это действительно необычный проект, а работа над ним была интересная, но не простая.

Заказчики - семейная пара среднего возраста с дочкой подростком. Супруги - оба военные, поэтому большую часть жизни прожили в государственном жилье и - это их первая собственная квартира.

Они очень трепетно относились к оформлению интерьера, если честно - даже немного боялись... К тому же нужно было вложиться в небольшой бюджет.

Исходный план

А самое для меня важное, что заказчики остались очень довольны результатом и, согласовали интерьер каждого помещения с первого раза - без сомнений и каких-либо изменений.

И это не смотря на то, что изначально не было особого понимания, что вообще хотят видеть в интерьере. В процессе общения - картинка начала понемногу складываться, заказчикам нравится: эко-стиль, белые стены и мебель, зеленый цвет, много дерева и яркие краски - разные!

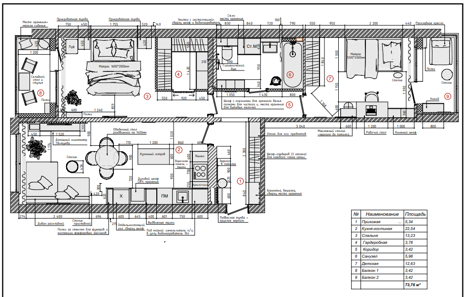
Квартира была куплена в новом доме без отделки, практически все стены внутри помещения несущие, поэтому особой перепланировки не было, лишь объединили санузел, при этом его немного расширили за счет площади коридора и сделали отдельную гардеробную в спальне родителей.

План после перепланировки и установки мебели

-2

Кухня-гостиная

Площадь 22,5 м2 - вроде и немаленькая, но здесь, по желанию заказчицы, нужно было разместить массу всего: и большую кухню, и кухонный остров, и обеденную зону и зону ТВ, и обязательно круглую вытяжку - это прям мечта хозяйки квартиры. В процессе создания плана с расстановкой мебели, рассмотрели несколько вариантов - остановились на том, что вы видите. Эргономика учтена на 100% и, надеюсь в дальнейшем (после реализации проекта) заказчики не разочаруются - я все на несколько раз "примерила на себе".

Фото делала при замерах

У окна мы оформили зону отдыха с довольно удобным раскладным диваном (2400 мм) с диван.ру, цена 94 тыс. руб. и телевизором напротив. Заказчице нравятся плетеные элементы, поэтому я нашла интересное зеркало в плетеной раме, милый кофейный столик (22 тыс. руб.) , светильник над обеденной группой (4 тыс. руб.) и корзину-кашпо.

Стены во всей квартире будут оклеены однотонными обоями + черный алюминиевый профиль, панели МДФ и немного молдингов в поддержку световых линий на потолке.
-4

Белая кухня в сочетании с деревом будет выполнена на заказ, предварительная стоимость 360 тыс. руб. вместе с кухонным островом (корпус ЛДСП, фасад МДФ в эмали), холодильник решили поставить отдельно стоящий - более вместительный.

-5

На полу во всей квартире будет кварцевый ламинат Фарго "Дуб Марракеш), кроме зоны прихожей. Так как комната неширокая и вытянутая, то одну стену оставили практически свободной, а всю мебель расположили у противоположной стены и центральной части помещения.

-6

У заказчице есть коллекция фарфоровых зайчиков и, она просила выделить ей достойное место. Таким образом появился отдельный боковой отсек со стеклом во встроенной мебели.

-7

Так как места для большого журнального столика особо нет, то думаю, плетеного кофейного и небольшого приставного столика будет вполне достаточно, для комфортного времяпровождения в этой зоне.

-8

Дверь в эту комнату тоже решили установить, так как к владельцам нового жилья часто в гости приезжает старший сын и родители супругов. Которые остаются на несколько дней.

-9

Как я уже озвучивала, все перегородки внутри квартиры несущие, а у заказчиков будет домашний кинотеатр + ТВ и, для того чтобы спрятать все провода, решила частично зашить стену ГКЛ + несколько полочек для декора, розетки будут расположены в тумбе.

-10

Обеденная группа с круглым раздвижным столом расположилась в центре комнаты.

-11

Прихожая

Прихожая изначально всего 1660 мм шириной - и здесь уже ничего не изменить🤷‍♀️, поэтому вдоль одной стены поставили встроенный шкаф глубиной 460 мм, а у другой большое зеркало с подсветкой до потока под заказ(18 500 руб.), небольшую подвесную консоль и круглое зеркало - удобно поправить прическу или макияж.

-12

Сразу у входа выделили место для открытой вешалки и мягкого сиденья, куда можно присесть обуть обувь или, например, поставить сумочку. Дальше три отсека для каждого члена семьи с полками для обуви и вешалками для верхней одежды. В последнем отделении будет хранится вертикальный пылесос, стремянка, швейная машина и бытовые мелочи на полках.

Мебель будет изготовлена на заказ из того же материала, что и в кухне, предварительная стоимость 218 тыс. руб. вместе с консолью.
-13

Зону прихожей решила отделить керамогранитом - "психологический" способ, чтобы не было соблазна проходить в уличной обуви дальше "границы"

-14
Картина маслом "Тукан-альбинос" символизирует уникальность, редкость и красоту нетипичных вещей. Напоминая о красоте и хрупкости природы.

Картина, которую мы видим при входе в квартиру не только отлично подходит к нашему эко-стилю, но и сочетает в себе все краски, которые появляются в интерьере всех комнат.

-15

Дверь в детскую из коридора

-16

Детская

Комната для юной "принцессы" небольшая 12,6 м. кв. Здесь нужно было разместить все самое необходимое и в тоже время оставить "воздуха".

Девочка учится в школе, поэтому обязательно хорошее рабочее место, шкаф для книг - она любит читать, кровать с матрасом 1200х2000 мм и шкаф для хранения одежды.

-17

Стена за кроватью будет декорирована фотообоями "Art-Fresco" Маки - их уже купили на Озоне - очень красивые, словно акварельный рисунок на белом фоне. Кровать в детскую и спальню закажем на мебельной фабрике "Красный диван" их стоимость 110 тыс. руб. за две без матрасов. Обе с подъемным механизмом.

-18

Рядом с рабочим столом, конечно, большое зеркало с подвесной консолью - как девочка без зеркала?!

-19

У входа вместительный шкаф для одежды. Мебель в этой комнате так же будет выполнена на заказ - цена ориентировочно 242 тыс. руб. (шкафы столы)

-20

Балкон при детской планируем утеплить и обустроить, как зону релакса: можно посидеть с книгой у большого окна на мягком уютном кресле. Или даже прилечь, так как оно раскладывается - получается полноценная односпальная кровать. (цена 32 тыс. руб. с диван.ру).

На противоположной стороне будет стоять комод для хранения мелочей. Здесь на стенах, потолке и полу будет все тот же кварцевый ламинат - на сегодня, на мой взгляд, лучший вариант для отделки балкона.

Дверь в спальню родителей
Дверь в спальню родителей

Спальня

В спальне родителей, как и во всей квартире "звучат" природные мотивы. Обои "Тропики" прекрасно вписались в светлый интерьер комнаты и, отлично смотрятся в сочетании с деревом.

Льняные шторы, ковер из хлопка и легкие уютные абажуры из дерева - все эти элементы идеально вписываются в эко-стиль и хорошо дополняют общую атмосферу комнаты.

-23

Вид от окна

-24

На противоположной стене: ТВ, большое зеркало с подсветкой (17500 р.) расположили таким образом, чтоб выйдя из гардеробной, можно было комфортно отойти назад и оценить свой образ. Но в тоже время оно находится не прям напротив кровати, что в принципе и не желательно!

-25

Предусмотрели наличие небольшого пуфа: можно присесть или класть, например, покрывало, декоративную подушку.

Сразу у входа в комнату за жалюзийной складной дверью организовали гардеробную с полками, штангами и ящиками для хранения.

Балкон при спальне так же будет оформлен кварцевым ламинатом, его утеплять не планируем, так как на потолке и полу расположены люки "к соседям" к ним подходит металлическая лестница, ее покрасим в черный цвет.

Здесь ничего особенного: место для хранения и складная мебель для использования в теплый период времени.

Вход в санузел из коридора

-29

Санузел

Здесь оттенок зеленого в мебели, я решила увести немного в синий, к нему подобрали мелкую плитку "Аккорд", которой оформили зону умывания и ванной.

Первый год заказчики жить в этой квартире не планируют (лишь иногда приезжать в выходные), поэтому изначально будет установлена стиральная машина с сушкой. Но на всякий случай, запланировала место и выводы для отдельной сушильной машины, которую можно будет поставить сверху. А если нет, то это место можно использовать для хранения.

-30

В этом шкафу расположены две корзины для грязного белья и место для чистого, так же полки для бытовых мелочей и отделение для: швабры, ведра.

-31

Вся мебель под заказ, предварительная цена за всю встроенную мебель, в том числе и шкафчик с зеркалом над раковиной - 191 250 руб.

Заказчики, пока думают либо сделать теплую стену с крючками, либо оставить полотенцесушитель - в рабочих чертежах, я предусмотрела тот и иной варианты. Так что возможно на месте картины будет полотенцесушитель, а картина немного выше.

Ванну здесь удалось поставить большую 80х180 см. и это радует хозяев нового жилья.

К сожалению, заказчики отказались от сопровождения проекта при реализации - дорого, но я всегда на связи и, надеюсь, увидеть результат и обязательно его опубликовать.

Для полной реализации проекта сумма бюджета составит 4,8-5 мил. руб.: встроенная мебель - около 1 мил., работа строителей 1,2 мил., черновые материалы примерно 400 тыс. руб., финишные материалы + вся мебель, сантехника, бытовая техника, светильники, текстиль. зеркала и т.д. - 2 мил. руб.

Спасибо, что заглянули в мою студию! Понравилось ставьте лайки, пишите комментарии! И не забывайте подписываться!