Найти в Дзене

Башни, микрорайоны и «золотой» ТРЦ: 10 новых амбициозных проектов в Екатеринбурге

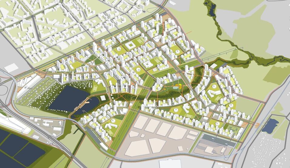
Некоторые ожидаемые объекты, такие как новый зал филармонии или зоопарк, мы оставили за скобками из-за высокой неопределенности, связанной с их реализацией. Локация: юго-восток Екатеринбурга. Площадь территории: 680 га. Объем жилого фонда: 2,6 млн кв. м. Район рассчитан на проживание 86 тыс. человек. Титульный застройщик: «Синара-Девелопмент» (планирует возвести в районе 1 млн кв. м жилья). Сроки реализация проекта: 2009–2035 гг. «Новокольцовский» — проект комплексного освоения территории. До 2035 г. на юго-востоке уральской столицы должен быть построен полноценный район с производственными и деловыми площадками, жилой и коммерческой недвижимостью, объектами транспортно-логистической и социальной инфраструктуры. В частности, в районе построят два детских образовательных центра на 1500 школьных и 350 дошкольных мест каждый, пять детских садов на 1650 мест и школу на 1500 учеников. Пилотным проектом локации стал международный выставочный центр «Екатеринбург-ЭКСПО», включающий конгресс-це
Оглавление

Некоторые ожидаемые объекты, такие как новый зал филармонии или зоопарк, мы оставили за скобками из-за высокой неопределенности, связанной с их реализацией.

«Новокольцовский»

Локация: юго-восток Екатеринбурга.

Площадь территории: 680 га.

Объем жилого фонда: 2,6 млн кв. м. Район рассчитан на проживание 86 тыс. человек.

Титульный застройщик: «Синара-Девелопмент» (планирует возвести в районе 1 млн кв. м жилья).

Сроки реализация проекта: 2009–2035 гг.

«Новокольцовский» — проект комплексного освоения территории. До 2035 г. на юго-востоке уральской столицы должен быть построен полноценный район с производственными и деловыми площадками, жилой и коммерческой недвижимостью, объектами транспортно-логистической и социальной инфраструктуры. В частности, в районе построят два детских образовательных центра на 1500 школьных и 350 дошкольных мест каждый, пять детских садов на 1650 мест и школу на 1500 учеников.

Пилотным проектом локации стал международный выставочный центр «Екатеринбург-ЭКСПО», включающий конгресс-центр. В настоящий момент завершено строительство самого современного в России Дворца водных видов спорта, первой очереди кампуса УрФУ: пяти общежитий на 8,5 тыс. мест, общественного и медицинского центров, тренировочного поля. На втором этапе — до конца 2025 г. — будут возведены учебные корпуса Института радиоэлектроники и информационных технологий, Института экономики и управления и Специализированного учебно-научного центра (СУНЦ).

В основе проектирования жилой части лежит идея квартальной застройки. «Синара-Девелопмент» обещает сделать «Новокольцовский» ярким примером ультрасовременного формата городской среды. Первый дом уже введен в эксплуатацию, сейчас одновременно возводятся пять домов.

Городские власти планируют запустить сюда городскую электричку: «Новокольцовский маршрут» наземного метро должен пойти от Компрессорного завода до аэропорта Кольцово через Новокольцовский район.

Горнощитский (Академический-2)

Локация: юг Екатеринбурга, рядом с микрорайоном Солнечным.

Площадь территории: 804 га.

Объем жилой застройки: 3,7 млн кв. м, коммерческой — около 700 тыс. кв. м. Район рассчитан на проживание 123 тыс. человек.

Девелоперы: ГК «КОРТРОС» (основной застройщик) и другие компании.

Срок реализации проекта: 2024–2035 гг.

-2

Девелопер планирует осваивать территорию комплексно — по образцу Академического: с собственными школами, объектами детской инфраструктуры, торговыми центрами и деловой зоной. В Горнощитском планируют построить зрелищный и спортивный центры, многопрофильную городскую больницу, университетский кампус с образовательным центром и технопарк.

-3

Жилая часть будет представлять собой кварталы среднеэтажной, многоэтажной, смешанной и блокированной застройки. Главной рекреационно-туристической достопримечательностью Горнощитского станет парк вдоль реки Шиловки. Он пройдет через весь район и обеспечит связь между двумя крупными лесопарковыми зонами.

По планам застройщика, Горнощитский станет основой для девятого района Екатеринбурга.

ВИЗ-Правобережный

Локация: территории в границах набережной Верх-Исетского пруда и улиц Каменщиков — Фролова — Плотников — Татищева — Викулова — Металлургов и Московского тракта.

Площадь территории: 765,9 га.

Объем жилого строительства: 2,4 млн кв. м. Площадь коммерческой застройки: 149,7 тыс. кв. м. Район рассчитан на проживание 106 тыс. человек.

Район будут застраивать несколько девелоперов.

Сроки реализации: 2024–2035 гг.

Мэр Алексей Орлов называл ВИЗ-Правобережный новым вектором развития города. Район будет состоять из девяти планировочных кварталов, восемь из них — жилые. Его застройка пройдет в три этапа: первая очередь — 504 тыс. кв. м жилья для 16,8 тыс. чел. (до 2025 г.), вторая — 1,28 млн кв. м для 42,5 тыс. чел. (до 2030 г.), третья — 688 тыс. кв. м для 22,7 тыс. чел. (до 2035 г.). Помимо жилья, в микрорайоне построят комплекс правительственных зданий, в них разместятся областные министерства.

В районе появятся сквер, парк и благоустроенная набережная, а также 15 детсадов и пять пристроенных помещений дошкольных организаций более чем на 5 тыс. мест, семь школ, детская и взрослая поликлиники, три физкультурно-оздоровительных комплекса, четыре школы искусств, хоккейный корт и школа единоборств.

Согласно планам властей, через ВИЗ-Правобережный пройдет вторая ветка метро — должно быть построено три станции: «Янтарная», «Верх-Исетская» и «Металлургическая». В район должны проложить новую дорогу и трамвайную линию по ул. Татищева, построить транспортную развязку на пересечении Срединного кольца и ул. Татищева.

Сима-таун

Локация: рядом с поселком Патруши Сысертского городского округа.

Площадь территории: 276 га.

Инвестор: «Сима-Ленд».

Срок реализации: 2023–2028 гг.

-5

«Сима-Ленд» собирается построить на собственные средства микрорайон под Екатеринбургом. По сути, он станет городом в городе. В Сима-таун переедут производства компании, которые в настоящее время находятся в разных частях Екатеринбурга и Свердловской области. Под них будет отведено 113 тыс. кв. м. На площади в 320 тыс. кв. м будут размещены распределительный узел и бизнес-центр (90 тыс. кв. м).

Предполагается, что в Сима-тауне люди будут не только работать, но и жить. В микрорайоне планируется построить дома высотой от одного до 12 этажей, в которых сможет проживать до 17,5 тыс. человек. Объем жилого строительства составит 527 тыс. кв. м.

Через весь микрорайон пройдет большой парк. По периметру домов разместятся парковки, рядом построят больницы, кафе, торгово-развлекательные центры. В центральной части будут расположены детский сад и школа.

Жилые небоскребы Re:volution Towers

Локация: квадрат улиц Маршала Жукова — Боевых Дружин — Октябрьской Революции — Челюскинцев.

Общая площадь комплекса: около 100 тыс. кв. м, из них около 40 тыс. — жилые апартаменты, расположенные в двух видовых башнях (высота — 99,5 м).

Инвестор и застройщик: «НКС-Девелопмент», соинвестор и генподрядчик по проектированию и строительству — «Атомстройкомплекс».

Срок реализации: 2024–2027 гг.

Re:volution Towers представляет собой две башни, вырастающие из четырехэтажной стилобатной части (в ней запроектированы коммерческие помещения и паркинг). Проект примечателен не только своей высотностью, но и садом с зонами отдыха на кровле стилобатной части. Его общая площадь составит более 8,5 тыс. кв. м.

Сейчас «Атомстройкомплекс» возводит первую высотку, ее планируют сдать к декабрю 2025 г. Годом позже завершат строительные работы по второй башне, а целиком комплекс будет готов ко второму кварталу 2027 г.

Даблхаус 1:1

Локация: перекресток улиц Репина и Посадской.

Количество этажей: 32.

Общая жилая площадь: 21 915 тыс. кв. м (376 квартир)

Девелопер: «Астра».

Срок реализации: IV квартал 2025 г.

-7

В 2023 г. Даблхаус 1:1 вошел в шорт-лист федеральной премии Urban Awards в номинации «Лучший строящийся региональный жилой комплекс УрФО». Его архитектурное решение действительно небанально — в нем соединены реминисценции стиля ар-деко и русского деревянного зодчества. Подобных высотных зданий в Екатеринбурге точно нет.

Комплекс представляет собой две башни, соединенные галереей. В ней девелопер планирует разместить общественную гостиную с библиотекой для встреч и отдыха жителей. Кроме того, в жилом комплексе предусмотрен коворкинг.

Башни «Татищев» и «Де Геннин» в «Екатеринбург-Сити»

Локация: квадрат улиц Челюскинцев — Бориса Ельцина — Боевых Дружин — Октябрьской Революции.

Высота башен: 175 м.

Девелопер: «УГМК-Застройщик».

Срок реализации всего проекта «Екатеринбург-Сити»: 2024–2031 гг.

-8

Башни «Татищев» и «Де Геннин» были заложены в проект комплекса «Екатеринбург-Сити» еще в 2006 г. Их собирались завершить в 2012-м и в 2014 г. соответственно. Однако лишь в начале 2024 г. застройщик сообщил, что планирует приступить к активной фазе строительства. Два небоскреба будут соединены пятиэтажным стилобатом, где разместятся магазины, рестораны, образовательный центр, кафе и спортивная зона со SPA.

-9

В настоящий момент в «Екатеринбург-Сити» возводится офисный центр. Впервые в России здесь будет применена трубобетонная опорно-стержневая система каркаса высотных зданий, разработанная Нижнетагильским заводом металлических конструкций. В здании будет всего 23 этажа, площадь башни составит более 60 тыс. кв. м. На последнем этаже разместится конференц-зал.

-10

В перспективе в «Екатеринбург-Сити» должен появиться апарт-отель с термальным комплексом с двумя большими бассейнами, один из них — под открытым небом.

В 2024 г. в «Сити» откроется гастромолл «Главный» (площадь — 25 тыс. кв. м), который сможет принять 5 тыс. посетителей в сутки. В нем будет восемь ресторанов и около 30 корнеров.

Небоскреб «Парус» («Высоцкий-2»)

Локация: участок в границах улиц Малышева — Карла Либкнехта — проспекта Ленина — Красноармейской.

Высота небоскреба: 288 м (на 100 м выше «Высоцкого»).

Девелопер: Андрей Гавриловский.

Срок реализации: 2024–2028 (2029) гг.

-11

О том, что в Екатеринбурге обязательно появится «Высоцкий-2», говорили еще в те годы, когда мэром был Аркадий Чернецкий. Однако проект был на паузе в течение многих лет. И вот в 2022 г. на форуме 100+ TechnoBuild показали сразу 10 вариантов будущего небоскреба. В апреле 2023-го стало известно, что здание будут строить по проекту архитектурного бюро «Старт» экс-главного архитектора города Андрея Молокова и что его высота составит 237 м. В начале 2024 г. Андрей Гавриловский сообщил, что увеличит высоту небоскреба до 288 м. В этом случае «Парус» станет вторым по высоте зданием в стране за пределами Садового кольца.

В небоскребе будут офисная часть, гостиница, развлекательный центр и рестораны. На крыше «Паруса» разместится трехуровневый бассейн из шести чаш — трех закрытых и трех открытых. С БЦ «Высоцкий» «Парус» будет соединен стеклянным мостом.

Ледовая арена

Локация: на улице Степана Разина за зданием Цирка.

Площадь территории: 5 га. Площадь объекта: 98 тыс. кв. м.

Вместимость арены: 12 тыс. зрителей в режиме спортивных мероприятий и 15 тыс. зрителей в режиме концерта.

Инвестор проекта: Правительство Свердловской области.

Застройщик: АО «Ледовая арена».

Срок реализации: 2018–2024 гг.

-12

Спортивный комплекс строится на месте снесенной телебашни. Ледовая арена станет домашней для хоккейного клуба «Автомобилист». Впрочем, она будет трансформируемой (на это потребуется от 6 до 18 часов) и сможет принимать соревнования по 11 видам спорта — фигурному катанию, баскетболу, гандболу, мини-футболу, волейболу, боксу, восточным единоборствам, керлингу, спортивной гимнастике, а также конгрессные мероприятия и концерты. Основной разработчик концепта арены — немецкая компания HPP Architekten.

В проект будут интегрированы передовые решения в области акустики, света, мультимедиа, инженерных систем, а также система мониторинга конструкций, которая позволит в режиме реального времени отслеживать состояние всех несущих элементов здания.

-13

Снаружи спорткомплекс будет оформлен металлической сеткой медного оттенка, в структуру которой будут интегрированы медиафасад площадью более 16 тыс. кв. м и медиаэкран площадью более 1,5 тыс. кв. м.

Ледовую арену планировали завершить к Летней Универсиаде и 300-летию Екатеринбурга, но срок сдачи объекта перенесли на 31 декабря 2024 г.

ТРЦ «Золотой»

Локация: участок в границах улиц Белинского — Шварца — Крестинского — Объездной дороги в Чкаловском районе.

Общая площадь (с автовокзалом): 307,8 тыс. кв. м. Площадь торговой галереи: 146,5 тыс. кв. м.

Инвестор проекта: Общество «Малышева 73».

Срок реализации: в открытых источниках ранее говорилось о декабре 2025 г.

-14

Инвестор позиционирует ТРЦ «Золотой» как «крупнейший в России, за пределами Москвы, суперрегиональный торгово-развлекательный центр, интегрированный в транспортную систему города». Частью комплекса станет автовокзал (Южный автовокзал переедет на новую площадку с ул. 8 Марта), через который будут проходить 463 маршрута городского, пригородного, междугородного и международного сообщения. Кроме того, ТРЦ будет соединен выходом со станцией метро «Ботаническая».

В «Золотом» все спроектировано с размахом: перехватывающая парковка на 5,6 тыс. мест, самый большой продовольственный магазин в области (порядка 20 тыс. кв. м), фитнес-центр площадью 3,3 тыс. кв. м. В проект заложены большой развлекательный кластер и тематические пространства для интеллектуального и активного досуга.

Эффект расплавленного, текущего по фасаду золота (решение, из-за которого Игоря Заводовского и Константина Погребинского не критиковал только ленивый), будет создан при помощи сложногнутого стекла. Значительная часть фасада (10 тыс. кв. м) будет мультимедийной.

Источники изображений в тексте: материалы пресс-служб.

Читайте также на DK.RU:

Как сохранить аутентичную историческую среду? Опыт Ирбита, Омска и Екатеринбурга

Чем советские квартиры отличаются от современных и что у них общего — Михаил Хорьков