Добавить в корзинуПозвонить
Найти в Дзене
РемТяжМаш

Зачем нужна КМД, и почему без неё возникают трудности при производстве и монтаже металлоконструкций?

Производство и монтаж металлоконструкций — это сложный и ответственный процесс, который требует точности на каждом этапе. Одним из ключевых элементов успешного выполнения проекта является наличие чертежей КМД (конструкции металлические детализированные). Многие недооценивают их важность, что приводит к ряду проблем на стадии производства и монтажа. В этой статье мы расскажем, зачем нужны чертежи КМД и какие трудности могут возникнуть без них. КМД (конструкции металлические детализированные) — это комплект детализированных чертежей, которые содержат точную информацию о каждом элементе металлоконструкций. Эти чертежи служат основой для производства металлоконструкций на заводе и их дальнейшего монтажа на строительной площадке. КМД включают в себя: КМД создаются на основе проектной документации стадии КМ (конструкции металлические), которая определяет общие характеристики будущего объекта. Однако чертежи КМД содержат намного больше деталей, необходимых для точного изготовления и сборки м
Оглавление
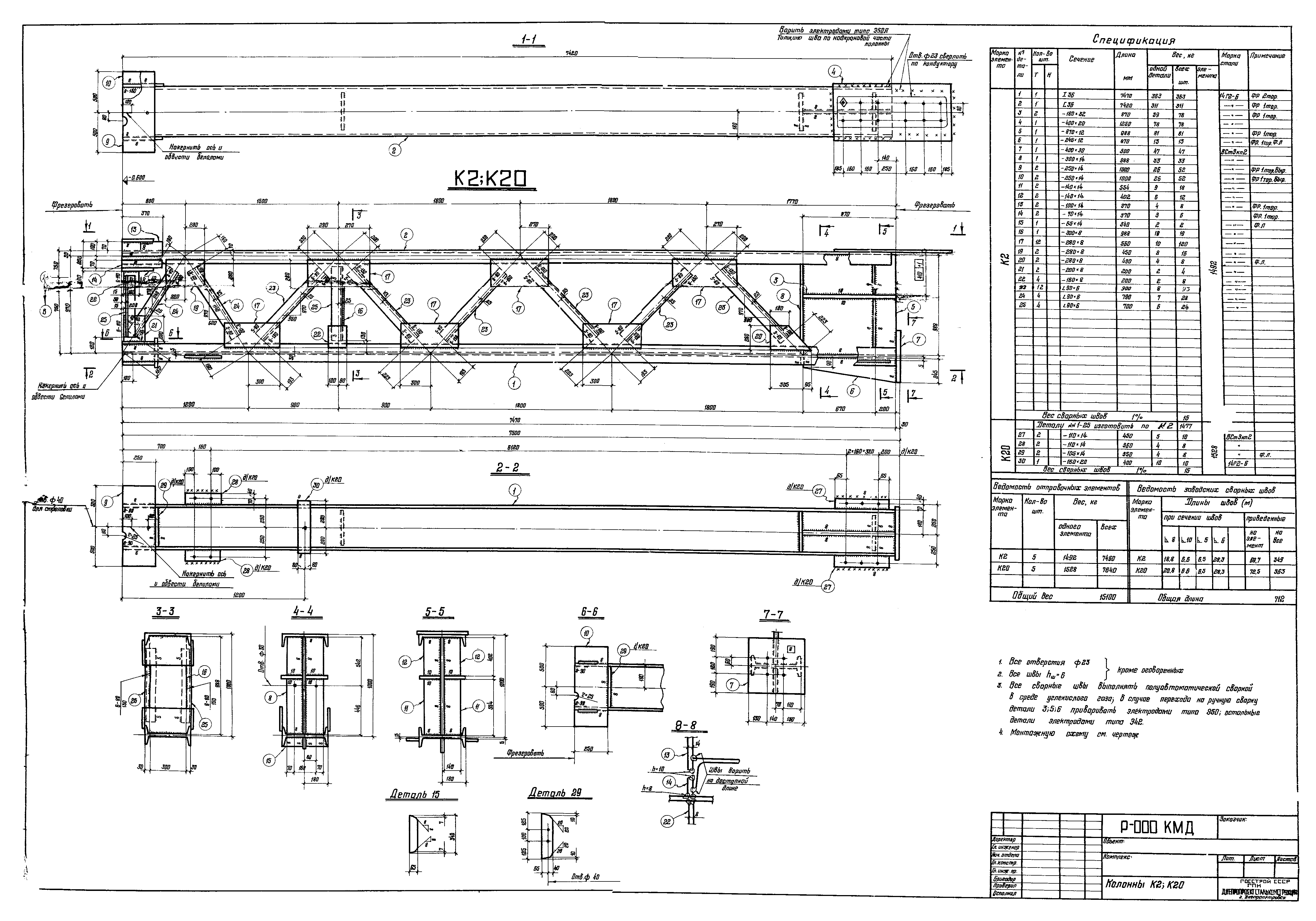
Пример КМД
Пример КМД

Производство и монтаж металлоконструкций — это сложный и ответственный процесс, который требует точности на каждом этапе. Одним из ключевых элементов успешного выполнения проекта является наличие чертежей КМД (конструкции металлические детализированные). Многие недооценивают их важность, что приводит к ряду проблем на стадии производства и монтажа. В этой статье мы расскажем, зачем нужны чертежи КМД и какие трудности могут возникнуть без них.

Что такое КМД?

КМД (конструкции металлические детализированные) — это комплект детализированных чертежей, которые содержат точную информацию о каждом элементе металлоконструкций. Эти чертежи служат основой для производства металлоконструкций на заводе и их дальнейшего монтажа на строительной площадке.

КМД включают в себя:

  • Схемы и чертежи всех отдельных деталей конструкции.
  • Точные размеры и параметры всех элементов.
  • Места стыков, крепежей и соединений.
  • Инструкции по сборке и монтажу.

КМД создаются на основе проектной документации стадии КМ (конструкции металлические), которая определяет общие характеристики будущего объекта. Однако чертежи КМД содержат намного больше деталей, необходимых для точного изготовления и сборки металлоконструкций.

Зачем нужны чертежи КМД?

  1. Точность производства

Без детализированных чертежей КМД производственный процесс может превратиться в хаос. На заводах, занимающихся изготовлением металлоконструкций, важны точные размеры, углы и стыковочные узлы. КМД дает производственным рабочим всю необходимую информацию для того, чтобы каждая деталь была изготовлена правильно, без отклонений от проекта.

Часто ошибки в производстве металлоконструкций возникают из-за недоработок или неясностей в чертежах КМ. Например, если в проектной документации не указаны детали крепежных узлов, рабочие могут сделать их по стандарту, который не подойдет для конкретного объекта. Это приведет к проблемам на этапе монтажа.

  1. Снижение рисков при монтаже

Монтаж металлоконструкций — это этап, на котором каждая неточность и ошибка могут стать критическими. Без КМД рабочие на стройплощадке могут столкнуться с рядом трудностей: детали могут не подходить по размерам, стыковочные узлы могут оказаться несовместимыми, а монтажные работы могут затянуться из-за необходимости доработок прямо на месте.

Пример проблемы:
Если конструкция не была заранее детализирована, то рабочие могут столкнуться с ситуацией, когда элементы не могут быть правильно соединены. Например, не совпадают болтовые отверстия или не предусмотрены необходимые соединительные детали.

Что дает КМД:
Чертежи КМД обеспечивают полное представление о том, как элементы металлоконструкций должны быть собраны на месте. Это помогает монтажникам работать быстрее, точнее и без необходимости в переделках, что снижает риск срыва сроков и увеличения затрат.

  1. Экономия времени и денег

Проекты без КМД часто сталкиваются с задержками на стадии монтажа, что приводит к увеличению сроков и стоимости. Поскольку монтаж металлоконструкций зависит от точности изготовления деталей, любая ошибка может потребовать доработки на месте, что замедляет процесс и требует дополнительных затрат.

Пример:
Если на стройплощадке выявляется несовпадение размеров или узлов, может потребоваться заказ дополнительных деталей, их переделка или доработка на месте. Это приводит к значительным задержкам и удорожанию проекта.

  1. Качество и долговечность конструкций

Металлоконструкции, собранные по чертежам КМД, обеспечивают высокое качество и надежность всей конструкции. Точные расчеты, правильные соединения и отсутствие необходимости в "ручной доработке" на месте обеспечивают долговечность и устойчивость объекта к нагрузкам.

Трудности без чертежей КМД

  1. Ошибки в размерах и узлах Без КМД детали могут быть изготовлены с отклонениями от проекта, что приведет к невозможности их точного соединения на стройплощадке.
  2. Неправильные или слабые соединения Если стыковочные узлы и крепежи не проработаны в КМД, рабочие могут использовать неподходящие методы соединения, что приведет к снижению прочности и надежности конструкции.
  3. Задержки на этапе монтажа Работы по монтажу без КМД часто затягиваются, так как требуется доработка деталей или даже их повторное производство.
  4. Увеличение стоимости проекта Ошибки и недоработки на стадии производства и монтажа требуют дополнительных затрат на переделку, а также могут привести к увеличению расходов на материалы и рабочую силу.

Заключение

Чертежи КМД — это не просто бумага с цифрами и схемами, это основа успешного производства и монтажа металлоконструкций. Отсутствие детализированных чертежей приводит к ошибкам, задержкам и удорожанию проекта, что недопустимо в современных условиях. Чтобы гарантировать качество и точность выполнения работ, важно вовремя подготовить КМД и следовать им на каждом этапе.

Если вы планируете проект с использованием металлоконструкций, завод "РемТяжМаш" готов предложить полный цикл услуг: от разработки КМД до монтажа готовых конструкций на объекте. Мы гарантируем качество и точность на каждом этапе работы!

Подписывайтесь на наш канал и следите за новыми публикациями о металлоконструкциях и строительстве!

#РемТяжМаш #Металлоконструкции #КМД #Проектирование #Монтаж