Добавить в корзинуПозвонить
Найти в Дзене
ДОМ с умом

Проект "Юлиана" - вместительный дом для большой семьи I 3 спальни, кабинет и кухня-гостиная

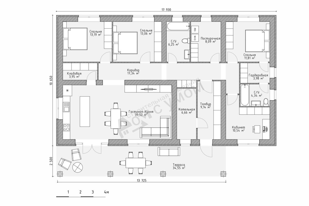
Коттедж отличается простым, но в то же время, элегантным оформлением фасадов. Площадь дома без учета террасы 147 кв.м, планировка подходит для комфортной жизни семьи из трех-четырех человек. Общая площадь: 182,4 кв.м
Жилая площадь: 147,8 кв.м
Габариты: 17,9 х 13,2 м
Фундамент: монолитная железобетонная плита
Стены: газобетонный блок 400 мм
Отделка фасада: кирпич
Перекрытия чердака - по деревянным балкам с утеплением
Крыша - из металлочерепицы по деревянной стропильной системе На площади 147 квадратов мы разместили просторную кухню-гостиную, три спальни, кабинет, 2 санузла, а также блок хозяйственных помещений. Коридоры занимают минимум пространства, поэтому площадь используется максимально эффективно. Терраса выходит на главный фасад дома, она же выполняет функцию крыльца. ▪️▪️▪️▪️▪️▪️▪️▪️▪️▪️▪️▪️▪️▪️▪️▪️▪️▪️▪️▪️▪️▪️▪️▪️▪️▪️▪️▪️▪️▪️▪️▪️▪️
📌Общая площадь – 147,8 кв.м
📌Кухня-гостиная – 39,5 кв.м
📌Спальни – 3 шт.
📌Терраса - 34,5 кв.м
▪️▪️▪️▪️▪️▪️▪️▪️▪️▪️▪️▪️▪️▪️▪️▪️▪️▪️
Оглавление

Коттедж отличается простым, но в то же время, элегантным оформлением фасадов. Площадь дома без учета террасы 147 кв.м, планировка подходит для комфортной жизни семьи из трех-четырех человек.

Характеристики:

Общая площадь: 182,4 кв.м
Жилая площадь: 147,8 кв.м
Габариты: 17,9 х 13,2 м
Фундамент: монолитная железобетонная плита
Стены: газобетонный блок 400 мм
Отделка фасада: кирпич
Перекрытия чердака - по деревянным балкам с утеплением
Крыша - из металлочерепицы по деревянной стропильной системе

Планировка:

На площади 147 квадратов мы разместили просторную кухню-гостиную, три спальни, кабинет, 2 санузла, а также блок хозяйственных помещений. Коридоры занимают минимум пространства, поэтому площадь используется максимально эффективно. Терраса выходит на главный фасад дома, она же выполняет функцию крыльца.

-2

▪️▪️▪️▪️▪️▪️▪️▪️▪️▪️▪️▪️▪️▪️▪️▪️▪️▪️▪️▪️▪️▪️▪️▪️▪️▪️▪️▪️▪️▪️▪️▪️▪️
📌Общая площадь – 147,8 кв.м
📌Кухня-гостиная – 39,5 кв.м
📌Спальни – 3 шт.
📌Терраса - 34,5 кв.м
▪️▪️▪️▪️▪️▪️▪️▪️▪️▪️▪️▪️▪️▪️▪️▪️▪️▪️▪️▪️▪️▪️▪️▪️▪️▪️▪️▪️▪️▪️▪️▪️▪️
Стоимость проектной документации (серии АР, КР) - 26 000 руб.