Найти в Дзене
ДОМОСБОР

Устал жить в квартире? Рассказали куда можно переехать за 2 миллиона рублей. Проект каменного дома GB 19

Если вы устали от жизни в квартире и мечтаете о собственном уютном доме, проект GB 19 — идеальный вариант для вас! Это компактный и функциональный дом, станет отличным решением для тех, кто хочет жить на природе и наслаждаться комфортом своего собственного пространства. Дом выполнен в современном стиле и идеально подходит тем, кто мечтает о своем уголке вдали от городской суеты. Дом по проекту GB 19 — это уютный и функциональный выбор для тех, кто ценит удобство и стиль. Прекрасный вариант для переезда из квартиры и начала новой жизни в своем доме.
Оглавление

Если вы устали от жизни в квартире и мечтаете о собственном уютном доме, проект GB 19 — идеальный вариант для вас!

Это компактный и функциональный дом, станет отличным решением для тех, кто хочет жить на природе и наслаждаться комфортом своего собственного пространства. Дом выполнен в современном стиле и идеально подходит тем, кто мечтает о своем уголке вдали от городской суеты.

  • Стоимость: от 2 380 000 ₽
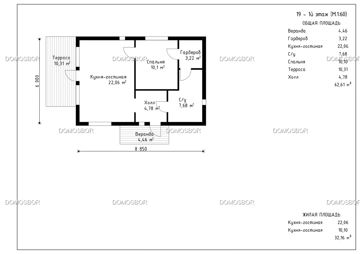
  • Площадь: 68 м2 общей площади, из которых 63 м2 — полезная.
  • Жилая площадь: 32 м2, кухня-гостиная — 22 м2.
-2

Базовые характеристики:

  • Технология строительства: газобетон
  • Габариты: 6x9 метров, площадь застройки — 63 м².
  • Этажность: 1 этаж
  • Форма здания: прямоугольная
  • Форма крыши: двускатная

Комфорт:

  • Количество спален: 1 спальня
  • Количество санузлов: 1 санузел
  • Особенности: терраса, панорамные окна, гардеробная и веранда.

Дом по проекту GB 19 — это уютный и функциональный выбор для тех, кто ценит удобство и стиль. Прекрасный вариант для переезда из квартиры и начала новой жизни в своем доме.