Найти в Дзене

Проект двухэтажного дома «Андерсон»

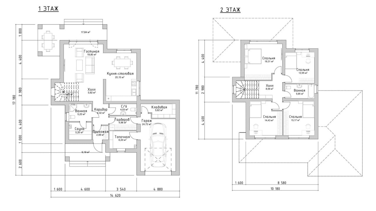
Проект дома «Андерсон» общей площадью 159,66 м² включает в себя:

- 3 комнаты
- 3 санузла
- Просторную кухню-гостиную-столовую площадью 39,95 м²
- Гараж 24,72 м²
- Террасу 17,64 м²
- Сауну

На первом этаже расположена функциональная зона, где гостиная плавно переходит в кухню-столовую. Одной из главных особенностей является открытая терраса, которая наполняет дом светом и воздухом. Большие панорамные окна открывают потрясающие виды и создают ощущение простора и воздушности в интерьере.

Также на первом этаже находятся два санузла, один из которых соседствует с сауной, а также гараж с дополнительной кладовой. Удобный выход из гаража ведет в котельную и просторную гардеробную.

Второй этаж представляет собой зону отдыха. Здесь расположены три уютные спальни и еще один санузел, что обеспечивает максимальный комфорт и приватность для всех жильцов.

Проект дома «Андерсон» сочетает в себе функциональность, продуманные планировочные решения и отличные видовые характеристики.

-2

Понравился проект? Заказать проект или выбрать подобный можно по телефону: +79323212510. Звоните или пишите. Заявки принимаются по вотцап, телеграмм. Готовы рассчитать для вас смету!

Как построить дом в Тюмени?

Как построить дом в Москве?

Готовые дома в Тюмени

Готовые дома в Москве

Земельные участки в Тюмени

Задать вопрос в ТГ

И подписывайтесь на наш канал, чтобы не пропустить новые интересные проекты.

#проектдома #проектдвухэтажногодома #построитьдом #купитьдом

#двухэтажныйдом #лучшиедвухэтажныедома #дом #новыедома