Добавить в корзинуПозвонить
Найти в Дзене

Кейс 5: Покупка квартиры с учётом особенностей национального колорита

Клиент хотел купить квартиру в новостройке, которая бы учитывала его предпочтения в интерьере и планировке, соответствующие национальному колориту и традициям. Стандартные варианты планировок и отделки, предлагаемые застройщиками, не удовлетворяли его потребности, и он искал возможность индивидуализировать своё жилье. Мы начали с поиска новостроек, где были варианты квартир с гибкими планировками, которые можно было бы адаптировать под запросы клиента. В итоге нашли жилой комплекс, в котором застройщик предлагал индивидуальные планировки на стадии строительства.
Мы организовали встречи с архитекторами и дизайнерами, которые разработали несколько вариантов интерьера и планировки с учётом пожеланий клиента. В проект были включены элементы, соответствующие национальным традициям, такие как просторная кухня для семейных встреч и гостеприимная зона для приёма гостей. Клиент заключил договор на покупку квартиры, которая была спроектирована с учётом его индивидуальных пожеланий. После заверше
Оглавление

С какой проблемой пришёл клиент:

Клиент хотел купить квартиру в новостройке, которая бы учитывала его предпочтения в интерьере и планировке, соответствующие национальному колориту и традициям. Стандартные варианты планировок и отделки, предлагаемые застройщиками, не удовлетворяли его потребности, и он искал возможность индивидуализировать своё жилье.

Как решили проблему:

Мы начали с поиска новостроек, где были варианты квартир с гибкими планировками, которые можно было бы адаптировать под запросы клиента.

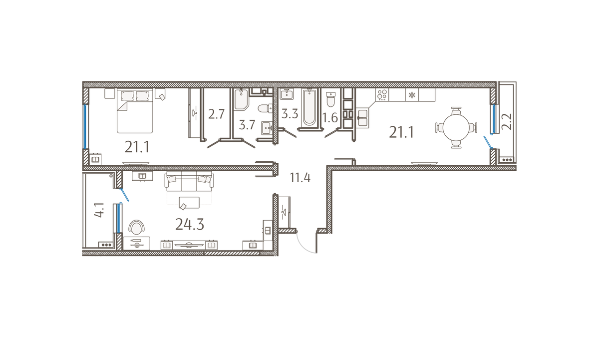
Планировка в ЖК Авангард
Планировка в ЖК Авангард

В итоге нашли жилой комплекс, в котором застройщик предлагал индивидуальные планировки на стадии строительства.
Мы организовали встречи с архитекторами и дизайнерами, которые разработали несколько вариантов интерьера и планировки с учётом пожеланий клиента. В проект были включены элементы, соответствующие национальным традициям, такие как просторная кухня для семейных встреч и гостеприимная зона для приёма гостей.

Итог:

Клиент заключил договор на покупку квартиры, которая была спроектирована с учётом его индивидуальных пожеланий. После завершения строительства он получит жилье, которое полностью отражает его предпочтения.

Главный офис продаж новостроек в ЧР