Добавить в корзинуПозвонить
Найти в Дзене
Ваш дом и технологии

Мини-дом со всем необходимым на 30 кв.м

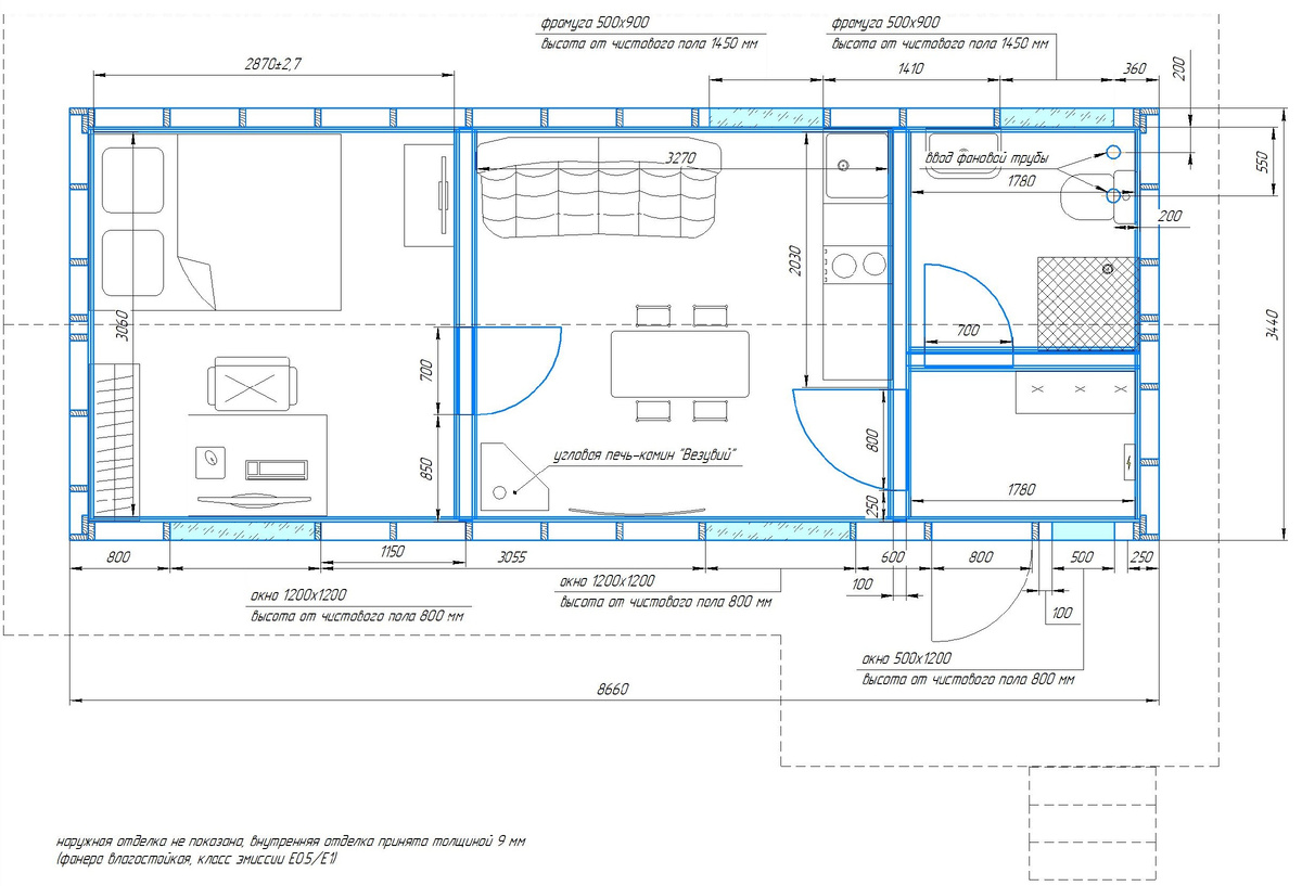
Домик строительной площадью менее 30 квадратных метров был построен летом 2024 года за 1,5 месяца. Тема изучалась мной давно и подход был достаточно скрупулезный: подбор материалов, проклейка мембран, подшивка сеткой и внимание к конструктивным мелочам. Строительство велось по каркасной технологии. Планировка позволяет отапливать печью два помещения, а разводка водоснабжения локализована максимально компактно. В каждом помещении есть окна. Самой дорогой позицией в составе стоимости дома являются пиломатериалы, особенно фасадные, так как от толщины отделки сильно зависит внешний вид дома.
Подшивка сеткой от мышей желательна не только на нижнем перекрытии и вентзазорах, но и изнутри помещения. Покраску дома производить с предварительной подготовкой древесины и грунтовкой. Окрашивать лучше в 2 слоя. Но еще лучше заказать крашеную древесину, хоть это и дороже. Так не возникнет вопросов с непрокрасами в соединениях внешней отделки и изменений размеров дерева из-за влажности. Наличники,

Домик строительной площадью менее 30 квадратных метров был построен летом 2024 года за 1,5 месяца. Тема изучалась мной давно и подход был достаточно скрупулезный: подбор материалов, проклейка мембран, подшивка сеткой и внимание к конструктивным мелочам.

Строительство велось по каркасной технологии. Планировка позволяет отапливать печью два помещения, а разводка водоснабжения локализована максимально компактно. В каждом помещении есть окна.

-2

Самой дорогой позицией в составе стоимости дома являются пиломатериалы, особенно фасадные, так как от толщины отделки сильно зависит внешний вид дома.

Подшивка сеткой от мышей желательна не только на нижнем перекрытии и вентзазорах, но и изнутри помещения.

-3

Покраску дома производить с предварительной подготовкой древесины и грунтовкой. Окрашивать лучше в 2 слоя. Но еще лучше заказать крашеную древесину, хоть это и дороже. Так не возникнет вопросов с непрокрасами в соединениях внешней отделки и изменений размеров дерева из-за влажности.

Наличники, угловые планки и свесы кровли очень хорошо смотрятся в белом цвете, хотя на их покраску и уходит достаточно большое количество времени.

-4

Если будете применять малярный скотч, то не оставляйте его надолго. Снимайте сразу после покраски, иначе он оставит следы клея на поверхности, а где-то может даже отрываться с древесиной.

Хочется, чтобы дом был аналогом квартиры, поэтому подвод воды и септик станут дополнительными расходами, а если по осени и весной есть проблемы с электричеством, то вам не обойтись без печи.

-5

Небольшая печь-камин способна обогреть дом в холодные дни и создать настроение уюта.

Утепление дома по перекрытиям 200 мм, по стенам -150 мм. На холодном чердаке, при желании, толщину утепления по необходимости можно увеличить.

Ставьте лайки, задавайте вопросы и ждем вас снова!