Добавить в корзинуПозвонить
Найти в Дзене
Проект И.Т.П

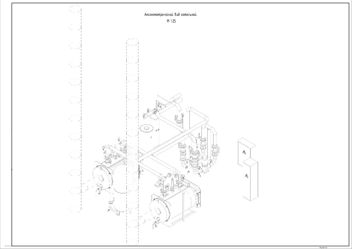
Модель котельной на 1000 кВт

Давно не проектировал котельные, года с 2018. Но, раз есть запрос, почему бы и не сделать. Полноценным проектом это назвать нельзя, так как задача была подобрать оборудование, выдать примерную спецификацию. Так как считать руками оборудование и материалы в наши дни это странно, я решил выполнить модель максимально приближенную к действительности. Если цена Заказчика утроит, буду допиливать до нормальной рабочки. Полистать то, что есть на текущий момент:
Модель котельной на 1000 кВт
Модель котельной на 1000 кВт

Давно не проектировал котельные, года с 2018.

Но, раз есть запрос, почему бы и не сделать.

Полноценным проектом это назвать нельзя, так как задача была подобрать оборудование, выдать примерную спецификацию.

Так как считать руками оборудование и материалы в наши дни это странно, я решил выполнить модель максимально приближенную к действительности.

Если цена Заказчика утроит, буду допиливать до нормальной рабочки.

Полистать то, что есть на текущий момент: