Добавить в корзинуПозвонить
Найти в Дзене

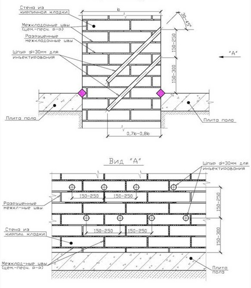
Инъектирование кирпичной кладки

1. Пробуривание инъекционных шпуров, в шахматном порядке, по обе стороны от рабочего (холодного) шваD10-D30 мм Пробурить инъекционные шпуры диаметром D10-30 мм. Шпуры располагают равномерно по инъецируемому участку, под углом в 45° от лицевой поверхности конструкции. Шпуры пробуриваются таким образом, чтобы они пересекали трещину или шов по середине её глубины. Длина шпуров составляет 2/3 толщины конструкции, но не более 450 мм. Расстояние между шпурами и их отступ от трещины составляет 150-200 мм. 2. Установка инъекторов Инъекционные каналы очистить от осыпавшегося материала и пыли промышленным пылесосом или продуть с использованием пневматического оборудования. При продувке важно прочистить каналы на всю их глубину и использовать оборудование, исключающее возможность загрязнения воздуха машинным маслом. Металлические инъекторы забиваются поочередно в уже пробуренные отверстия. Устанавливают в отверстия диаметром 10-30 мм. 3. Инъецирование кирпичной кладки. Смешать и произвести и

1. Пробуривание инъекционных шпуров, в шахматном порядке, по обе стороны от рабочего (холодного) шваD10-D30 мм

Пробурить инъекционные шпуры диаметром D10-30 мм. Шпуры располагают равномерно по инъецируемому участку, под углом в 45° от лицевой поверхности конструкции. Шпуры пробуриваются таким образом, чтобы они пересекали трещину или шов по середине её глубины. Длина шпуров составляет 2/3 толщины конструкции, но не более 450 мм. Расстояние между шпурами и их отступ от трещины составляет 150-200 мм.

2. Установка инъекторов

Инъекционные каналы очистить от осыпавшегося материала и пыли промышленным пылесосом или продуть с использованием пневматического оборудования. При продувке важно прочистить каналы на всю их глубину и использовать оборудование, исключающее возможность загрязнения воздуха машинным маслом. Металлические инъекторы забиваются поочередно в уже пробуренные отверстия. Устанавливают в отверстия диаметром 10-30 мм.

3. Инъецирование кирпичной кладки.

Смешать и произвести инъецирование материалом ARENA RepairMaster R60INJECT. Инъецирование производится с использованием однокомпонентного насоса высокого давления, интервал давления инъекции 0,4-0,5 МПа. Инъецирование осуществляется через заранее установленные пакеры (инъекторы). В процессе инъецирование не допускается резко повышать давление в насосе на выходе материала. Инъецирование происходит снизу-вверх или слева-направо, переходя от одного инъектора к другому.

Расход материала ARENA RepairMaster R60INJECT составляет 1,5-1,7 кг/1дм3.

4. "Запечатывание" трещин раствором быстрого схватыванием (при необходимости)

1. Заделка ("запечатывание") рабочих швов

Для нанесения состава, "запечатывающего" трещину, необходимо иметь основание с хорошей прочностью на отрыв. Для этого поверхность обрабатывают фрезой, зачищают от слабо держащихся, ухудшающих сцепление материала с основанием фракций. Затем поверхность обеспыливают с помощью пылесоса и увлажняют. "Запечатыванию" подлежит участок вдоль всей длины трещины или шва бетонирования и шириной около 5 см.

Трещины "запечатываются" по всей длине и на ширину около 5 см безусадочным раствором быстрого схватывания ARENA RepairMaster R500 .

Схемы инъектирования

-2

-3