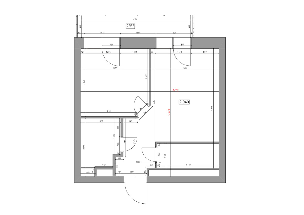
Это особый вид чертежной документации, визуально представляющий собой вид сверху на помещение в уменьшенном масштабе, в котором с максимальной точностью фиксируются реальные размеры всех помещений.
Это особый вид чертежной документации, визуально представляющий собой вид сверху на помещение в уменьшенном масштабе, в котором с максимальной точностью фиксируются реальные размеры всех помещений.
...Читать далее
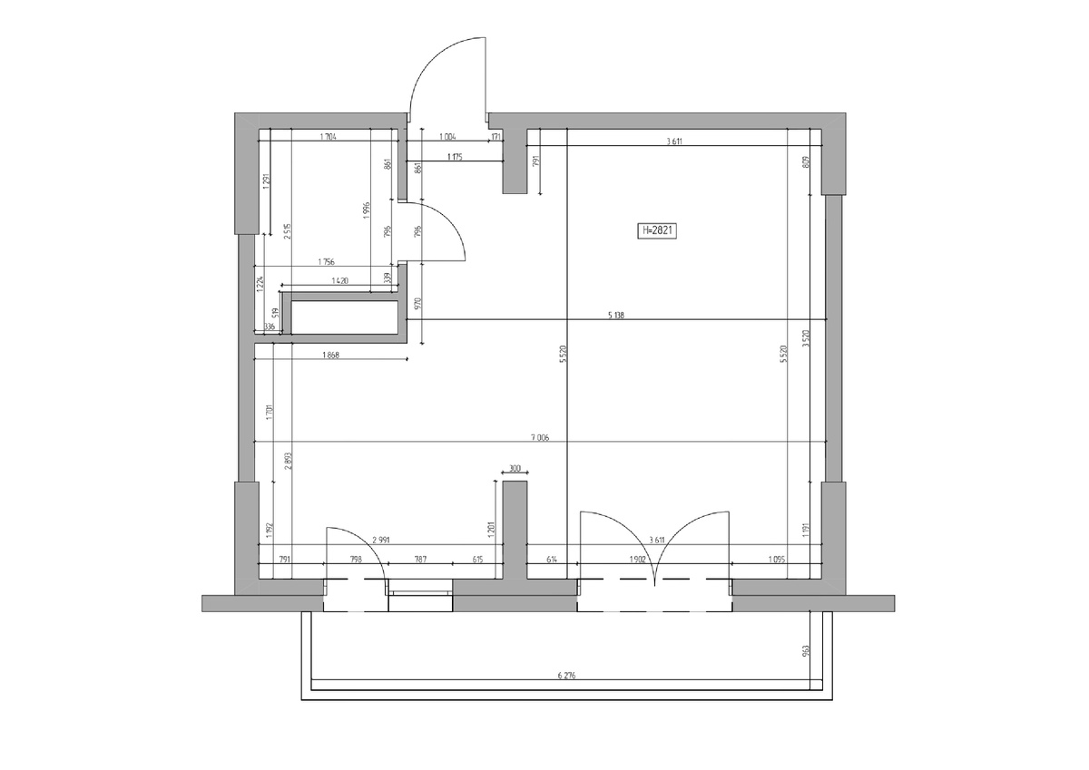
Это особый вид чертежной документации, визуально представляющий собой вид сверху на помещение в уменьшенном масштабе, в котором с максимальной точностью фиксируются реальные размеры всех помещений.