Найти в Дзене
Маркова Анна

Нежность и спокойствие на 62 кв.м

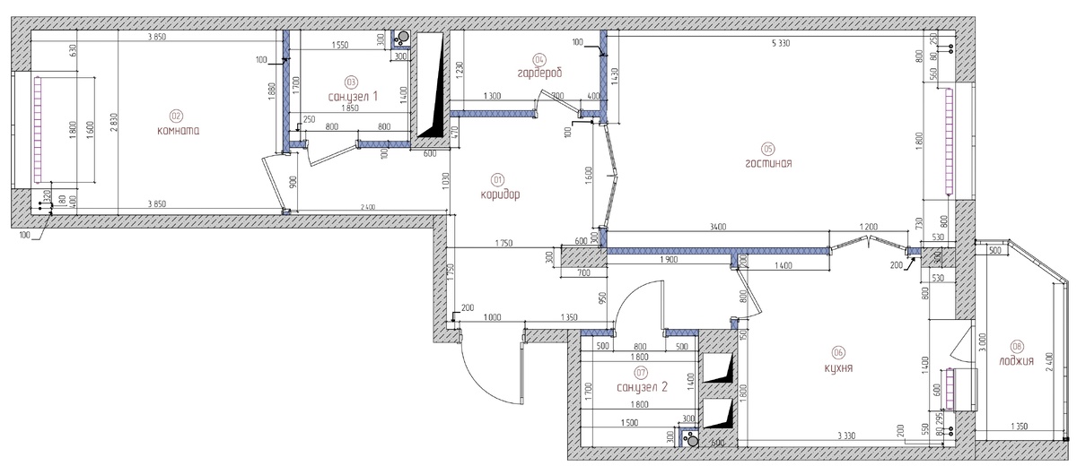
Всем привет! Представляю вашему вниманию проект двухкомнатной квартиры в городе Новосибирск. Квартира предназначена для постоянного проживания двух человек: Яны и её 13-летней дочери Марины. Основным пожеланием владельцев было сделать спокойное пространство в современном стиле но с капелькой природных мотивов и оттенков. В начале работы мы определились с количеством комнат, их наполнением и цветовой гаммой. Затем я приступила к разработке планировочных решений. В просторной квартире 62 квадратных метра было важно учесть желание оставить оба сан.узла, в одном сделать душ а в другом поставить ванную, организовать место для совместного отдыха и вынести отдельную постирочную зону. Было принято решение убрать гардеробную от застройщика и перенести туда кухонный гарнитур чтобы сделать просторную кухню-гостиную. И вот я предложила хозяевам три варианта расстановки мебели: После небольших исправлений изучив все нюансы хозяева остановились на первом варианте планировочного решения, на нем и с

Всем привет! Представляю вашему вниманию проект двухкомнатной квартиры в городе Новосибирск. Квартира предназначена для постоянного проживания двух человек: Яны и её 13-летней дочери Марины.

Основным пожеланием владельцев было сделать спокойное пространство в современном стиле но с капелькой природных мотивов и оттенков. В начале работы мы определились с количеством комнат, их наполнением и цветовой гаммой. Затем я приступила к разработке планировочных решений.

Исходный план
Исходный план

В просторной квартире 62 квадратных метра было важно учесть желание оставить оба сан.узла, в одном сделать душ а в другом поставить ванную, организовать место для совместного отдыха и вынести отдельную постирочную зону. Было принято решение убрать гардеробную от застройщика и перенести туда кухонный гарнитур чтобы сделать просторную кухню-гостиную. И вот я предложила хозяевам три варианта расстановки мебели:

После небольших исправлений изучив все нюансы хозяева остановились на первом варианте планировочного решения, на нем и строилась вся моя дальнейшая работа.

Готовое планировочное решение
Готовое планировочное решение

Для кухни - гостиной я подобрала мягкий бежевый оттенок стен, насыщенный оливковый цвет в сочетании с деревом для встраиваемой кухни, так же предложила выделить зону кухни потолочной панелью .

Главным местом для отдыха стал большой и уютный диван, так же рядом есть торшер для чтения любимых книг. Свет во всей комнате можно выключить не вставая с дивана, так как я продумала всю схему освещения так, чтобы было комфортно управлять им в любой комнате .

В спальне Марины по её пожеланию преобладают светлые и холодные оттенки, есть место для хранения книг и рабочий стол. Получилось создать спокойное и функциональное пространство.

Комнату Яны, не смотря на достаточно стандартное наполнение: кровать, дамский столик, тв и шкаф, у меня получилось сделать довольно интересной. В системе хранения спряталась гладильная доска, стеновая панель выделяет пространство для красоты, а на лоджии можно расслабиться вечером любуясь видом на озеро.

По желанию хозяев в одном сан. узле сделали ванну, а во втором душ.

Постирочная зона располагается рядом со вторым сан узлом, стиральная машина спрятана в шкаф, под ней находится корзина для белья и очень много места для хранения хозяйственных принадлежностей. В прихожей подвесной шкаф, под ним место для обуви, чтобы визуально не засорять пространство, но было легко достать нужную обувь.

После согласования всех визуализаций я приступила к созданию набора чертежей для строителей. Планы сантехники, электрики, освещения, покрытий стен, пола и потолков. В общем получился очень объёмный проект, и главное интересный!