Найти в Дзене
Всем дизайн!

Разбор планировки квартиры. Делаем гаредробную.

Привет! Меня зовут Евгения Потапова -я дизайнер интерьера, руководитель дизайн-студии ARTTUNDRA Рассказываю в своем блоге, как сделать классный интерьер за разумные и безумные деньги! Даю бесплатные консультации и делюсь своим опытом.
Подпишись на канал и читай дальше!
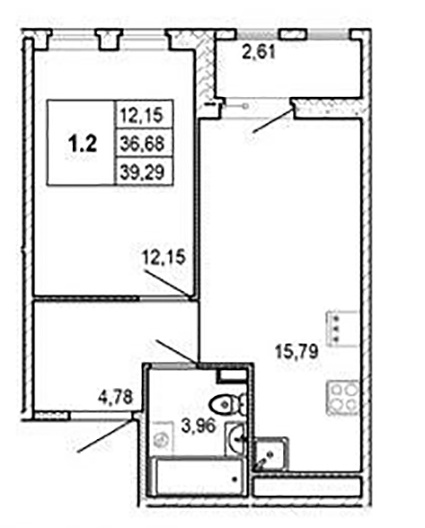
Исходные данные: однокомнатная квартира с кухней-гостиной, как, видимо, предполагает застройщик, хотя площадь этого помещения небольшая. Из плюсов — достаточно большая прихожая, а вот из минусов — расположение ванной комнаты. Здесь нет возможности перенести вход в ванную, и мы, во-первых, теряем полезную площадь стены, а во-вторых, видим дверь в ванную с санузлом из гостиной.
Задача: увеличить место для хранения вещей, в идеале — разместить гардеробную комнату, где можно хранить спортивный инвентарь. Проживать в квартире будет взрослая семейная пара, к которой по выходным приезжают дети с ночевкой.
В этом варианте можно сделать большой шкаф в спальне, сохранив её площадь, перенеся вход в комнату. Дверь в спальню из
Оглавление

Подписчица прислала мне планировку своей квартиры с вопросом: возможно ли здесь разместить гардеробную комнату?

Привет! Меня зовут Евгения Потапова -я дизайнер интерьера, руководитель дизайн-студии ARTTUNDRA
Рассказываю в своем блоге, как сделать классный интерьер за разумные и безумные деньги! Даю бесплатные консультации и делюсь своим опытом.
Подпишись на канал и читай дальше!



Исходные данные: однокомнатная квартира с кухней-гостиной, как, видимо, предполагает застройщик, хотя площадь этого помещения небольшая. Из плюсов — достаточно большая прихожая, а вот из минусов — расположение ванной комнаты. Здесь нет возможности перенести вход в ванную, и мы, во-первых, теряем полезную площадь стены, а во-вторых, видим дверь в ванную с санузлом из гостиной.

Задача: увеличить место для хранения вещей, в идеале — разместить гардеробную комнату, где можно хранить спортивный инвентарь. Проживать в квартире будет взрослая семейная пара, к которой по выходным приезжают дети с ночевкой.

План квартиры от подписчицы
План квартиры от подписчицы

1 Вариант



В этом варианте можно сделать большой шкаф в спальне, сохранив её площадь, перенеся вход в комнату. Дверь в спальню из гостиной уменьшает возможную площадь стены для ТВ, но всё же диван можно поставить прямо напротив телевизора, удачно расположив его в углу у окна.

Кухня здесь возможна только угловая, переходящая в стол-остров, который и будет обеденным столом — это решение здесь максимально эргономично. Холодильник мы ставим в самый угол, чтобы визуально облегчить саму конструкцию кухни.
При этом мы учли правило рабочего треугольника для рабочей поверхности кухни — холодильник, мойка, плита.

-2

2. Вариант


Гардеробную можно организовать за счет уменьшения спальни — здесь это единственный вариант, а также за счет переноса входа в спальню. Вход будет из гостиной, а вход в гардеробную из прихожей, что очень удобно. В этом варианте визуально можно отделить спальню от гостиной либо шторой, либо раздвижной перегородкой, так как обычная стена с дверью сократит пространство, а мы его и так уменьшили. Обеденная зона переносится к окну, а ТВ-зона с диваном занимает центральное место — это обусловлено единственно возможным расположением телевизора на стенке гардеробной.

вариант планировки
вариант планировки

Пишите в комментариях какой вариант вам больше понравился?
Присылайте свои планировки на мой разбор!