Добавить в корзинуПозвонить
Найти в Дзене
DIVAN.RU

Ремонт от застройщика: реальный пример, как подготовить однушку к жизни

Что сделать, прежде чем въехать в ремонт от застройщика: на чем сэкономить, а что лучше сразу поменять. Возьмем за основу однушку с ремонтом от застройщика. Площадь: 33 кв.м
Бюджет: 960 тысяч рублей (с учетом страховки квартиры, подключения интернета, оплаты коммунальных платежей в период ремонта)
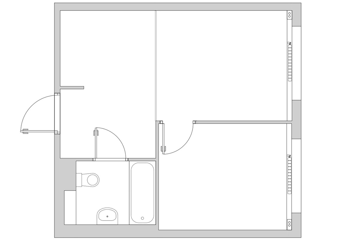
Реализация: весна 2024 года Компактная квартира не дает права на ошибку — на счету каждый сантиметр. Продуманная эргономика — залог комфортного проживания. Важно: обмер квартиры необходим для правильной расстановки мебели. Шкаф должен идеально вписаться в отведенный простенок, а дверцы не должны упираться в кровать. Диван не должен закрывать доступ к розетке, а другая мебель не должна загромождать проход. Особое внимание придется уделить кухне — это помещение самое сложное с точки зрения эргономики, а потому и дорогое. Вероятно, придется не раз менять конфигурацию гарнитура, чтобы прийти к самому удобному и приемлемому по цене варианту. Не стоит гнаться за экономией — разумнее действовать на
Оглавление

Что сделать, прежде чем въехать в ремонт от застройщика: на чем сэкономить, а что лучше сразу поменять.

На фото: интерьер квартиры 33 кв.м в г. Москве. Дизайнер и стилист: Ольга Митник; фотограф: Константин Пырьев
На фото: интерьер квартиры 33 кв.м в г. Москве. Дизайнер и стилист: Ольга Митник; фотограф: Константин Пырьев

Возьмем за основу однушку с ремонтом от застройщика.

Площадь: 33 кв.м
Бюджет: 960 тысяч рублей (с учетом страховки квартиры, подключения интернета, оплаты коммунальных платежей в период ремонта)
Реализация: весна 2024 года

Берем рулетку и считаем

Компактная квартира не дает права на ошибку — на счету каждый сантиметр. Продуманная эргономика — залог комфортного проживания.

Важно: обмер квартиры необходим для правильной расстановки мебели. Шкаф должен идеально вписаться в отведенный простенок, а дверцы не должны упираться в кровать. Диван не должен закрывать доступ к розетке, а другая мебель не должна загромождать проход.

Особое внимание придется уделить кухне — это помещение самое сложное с точки зрения эргономики, а потому и дорогое. Вероятно, придется не раз менять конфигурацию гарнитура, чтобы прийти к самому удобному и приемлемому по цене варианту.

Меняем детали

Не стоит гнаться за экономией — разумнее действовать на перспективу. Ремонт от застройщика имеет свои недочеты, которые лучше исправить.

Двери от застройщика

Чаще всего в новостройках ставят не самые качественные двери, которые быстро теряют вид. Лучшим вариантом будет установка износоустойчивых дверей с влагостойким покрытием — практично и надежно.

В этой квартире заменили глухие полотна на стильные двери со стеклянными матовыми вставками. Фурнитуру переставили от старых дверей. Цена вопроса: 26 тысяч рублей с учетом монтажа. 👇

Электроточки

Планировать электрику нужно даже в квартире с готовой отделкой. Продумайте количество и расположение розеток в зависимости от меблировки — в этом заключается суть эргономики. Особенно важно предусмотреть электровыводы во всех рабочих зонах. Рассмотрите идею переноса и добавления розеток с сохранением обоев — это самый безопасный вариант перепланировки электрики.

Подоконники

Все чаще новостройки предлагают заниженные подоконники, высотой 50-60 см от пола — это отличный повод устроить у окна дополнительную зону отдыха. Здесь можно усесться с книгой или ноутбуком, устроить чаепитие и любоваться городским пейзажем.

В этом проекте так и поступили: заменили два подоконника, укрепив нависающую часть металлическими уголками. Цена вопроса: 15 тысяч рублей👇

Подбираем мебель

В целях экономии времени лучше искать мебель онлайн: на маркетплейсе гораздо удобнее сравнивать модели и рассчитывать их размеры. Чтобы остаться в рамках выделенного бюджета, не забывайте суммировать стоимости доставки, подъема на этаж и сборки мебели.

Для кухни — выгодную

Какую бы конфигурацию кухонного гарнитура вы не спланировали, его цена будет зависеть от выбора материалов и отделки. Важно найти вариант, который отвечает вашим задачам и бюджету. Вероятно, искать выгодную комбинацию придется долго, но оно того стоит: экономия может быть значительной.

Для этого проекта быстро спроектировали конфигурацию гарнитура, однако отделку фасадов и столешницы перебирали долго — стоимость варьировалась от 102 до 138 тысяч рублей (без учета техники).

Цена вопроса кухонного гарнитура — 113 тысяч рублей (с учетом доставки и сборки). Набор бытовой техники — 117 тысяч рублей (в эту стоимость входят ПММ, духовка, СВЧ-печь, вытяжка и встроенный холодильник)👇

Для гостиной — компактную

В этой квартире кухня объединена с гостиной, а значит, нужно было уместить на скромной площади зону отдыха, столовую и рабочую. В качестве рабочего места можно выбрать настенный секретер с откидным столом — весьма удобно для работы за ноутбуком.

Подходящую мебель нашли на divan.ru: для зоны отдыха выбрали компактный и раскладной диван, а для обеденной — кухонный стол со стульями, которые идеально вписались в концепцию👇

В кадре диван Види от бренда divan.ru, 23 990₽* >>

▶️Этот диван сейчас можно приобрести со скидкой до 16 000₽*. Успейте купить мебель и товары для дома выгодно на последней летней распродаже>

-7

Для спальни — вместительную

Важно даже в маленькой спальне найти место для вместительного шкафа, а еще лучше — установить кровать с бельевым ящиком.

Если бюджет позволяет, можно спроектировать шкаф на заказ. Более экономичным вариантом станет готовая или модульная мебель. Не забывайте учитывать радиус открывание створок шкафа — они не должны упираться в другие предметы мебели.

Для этого проекта не сразу удалось найти подходящую прикроватную тумбочку — искали по трем критериям: стильно, компактно, бюджетно. Снова помог divan.ru: форма модели Тони оставила свободнфм доступ к розетке.
-9

В кадре прикроватный стол Тони от divan.ru, 3 490₽* >>

Для прихожей — функциональную

Это помещение особенно нуждается в продуманной эргономике — одних настенных крючков будет недостаточно. Рациональнее всего установить полноценный гардеробный модуль для верхней одежды и грязной обуви. Также не забудьте про хозяйственный инвентарь: для бытовых нужд необходимо выделить отдельную секцию.

Обратите внимание: визуально зонировать кухню от входной зоны удалось с помощью тонких перегородок — это основательно зафиксированные двери от шкафа-купе. Цена вопроса: 20 тысяч рублей с учетом монтажа👇

В кадре обеденный стол Эймс и стул для кухни Касто от бренда divan.ru >>

▶️Успейте купить мебель и товары для дома со скидками до -40% на последней летней распродаже>

-12

Для санузла — узкую

В санузле также важно задействовать всю полезную площадь. Подумайте, где разместить корзину для белья: вероятно, узкий контейнер отлично впишется в свободное место между ванной и тумбой. Рассмотрите вариант установки вертикального полотенцесушителя — он не занимает много места и не препятствует открыванию створок шкафчика.

В этом санузле в роли навесного шкафа над инсталляцией неожиданно выступает кухонный модуль — хитрый и бюджетный лайфхак👇

Подводим итоги

Продумывая эргономику квартиры, вы заботитесь о собственном комфорте. Какие моменты важно предусмотреть:

  • электрика — необходимо учесть оптимальное количество розеток и их расположение;
  • системы хранения — чем больше, тем лучше;
  • дополнительное спальное место;
  • мини-кабинет для работы.

==========

Оцените интерьер в комментариях, а если материал понравился — не забудьте поставить лайк👍

🖤divan.ru — не только блог про интерьеры, но и производитель доступной дизайнерской мебели. Ищите новые идеи и переходите на сайт, чтобы воплотить их в жизнь.

*Цены актуальны на момент публикации статьи