Добавить в корзинуПозвонить
Найти в Дзене
Vova-rafstroi

Освещение в квартире и коттедже

Как сделать освещение безопасным и как на этом сэкономить и не прогадать. Разберемся что не стоит делать и что надо делать. Как бы не сделать лишнего. Вводные. На рынке отделки и электрики огромное количество лампочек и видов освещения. И это одно из самых основных пунктов на которое стоит обратить внимание при проекте своего жилья. Освещение может быть как красивое но так оно может и вредить здоровью глаз. Так его может быть очень много в одном помещении. У нас и такое было что в одной только кухне-гостиной было 8 сценариев освещения. Сценарий-это когда у вас на потолке, например площадью 20 квадратных метров установлено 30 лампочек (любое освещение: люстра, встроенный светильник и т.п.), и они разделены на группы которые управляются разными выключателями и переключателями.
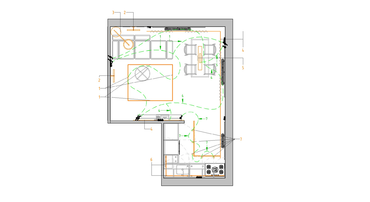
Разберем кухню-гостиную с 7-ми сценариями освещения:
Оранжевым светом обозначены осветительные приборы.
Красным цветом обозначены выключатели и розетки.
Зеленым цветом обозначены привязки и номер сценария. 1.Квадр

Как сделать освещение безопасным и как на этом сэкономить и не прогадать. Разберемся что не стоит делать и что надо делать. Как бы не сделать лишнего.

Вводные.

На рынке отделки и электрики огромное количество лампочек и видов освещения. И это одно из самых основных пунктов на которое стоит обратить внимание при проекте своего жилья. Освещение может быть как красивое но так оно может и вредить здоровью глаз. Так его может быть очень много в одном помещении.

У нас и такое было что в одной только кухне-гостиной было 8 сценариев освещения.

Сценарий-это когда у вас на потолке, например площадью 20 квадратных метров установлено 30 лампочек (любое освещение: люстра, встроенный светильник и т.п.), и они разделены на группы которые управляются разными выключателями и переключателями.
Разберем кухню-гостиную с 7-ми сценариями освещения:
Оранжевым светом обозначены осветительные приборы.
Красным цветом обозначены выключатели и розетки.
Зеленым цветом обозначены привязки и номер сценария.

  1. Квадрат встроенный в потолок. Управляется переключателями с 3-ех точек.
  2. Подсветка картин. Управляется встроенным выключателем.
  3. Торшер возле дивана. Управляется встроенным выключателем.
  4. Подсветка светодиодная для штор (закарнизная подсветка) и интимная подсветка над ТВ зоной. Управляется переключателями с 3-ех точек.
  5. Люстра над обеденным столом. Управляется выключателем возле окна.
  6. Подсветка столешницы на кухне. Управляется датчиком движения под верхними ящиками кухонного гарнитура.
  7. Основное освещение на кухне. Управляется выключателем при входе на кухонную зону.

1.Квадрат встроенный в потолок
Состоит из четырех светодиодных лент встроенных в профиль с рассеивателем.
Общая длина всех лент 6360 мм.
Мощность 60 Вт.
Исходный свет 6000 К

2.Подсветка картин
Состоит из одной светодиодной ленты с матовым светофильтром белого цвета.
Мощность 20 Вт.
Исходный свет 3200 К

3.Торшер около дивана
Встроенная одна лампочка светодиодная.
Мощность 40 Вт.
Исходный свет 6500 К

4.Подсветка штор и над ТВ зоной
Встроенная светодиодная лента в профиль. Закарнизная подсветка направлена вниз, а над ТВ-зоной направлена в стену. Все ленты светят через светофильтр матового белого цвета.
Закарнизная подсветка имеет длину 7890 мм
Мощность 20 Вт.
Исходный свет 6500 К
Подсветка над ТВ-зоной имеет длину 2000 мм
Мощность 20 Вт.
Исходный свет 6500 К

5.Люстра над обеденным столом
Имеет встроенную светодиодную ленту.
Общая длина которой составляет 900 мм
Мощность 60 Вт.
Исходный свет люминесцентный светильник (естественный свет) 6430 К

6.Подсветка столешницы над кухней
Светодиодная лента в профиле с матовым светофильтром белого цвета.
Общая длина которой составляет 3100 мм
Мощность 30 Вт.
Исходный свет кварцевый 4000 К

7.Основное освещение на кухне
Светильники установленные в трековый профиль и имеют источник света в виде диода.
Мощность 20 Вт.
Исходный свет люминесцентный светильник(холодный оттенок белого цвета) 4230 К

Благодаря этому освещению и большого количества сценариев, у Вас есть способность использовать каждый сценарий по отдельности:
торшер для чтения книг и включить совместно интимной подсветкой и таким образом создать приятную обстановку для отдыха.
Основное освещение когда много друзей собралось у Вас в гостиной и Вы общаетесь или играете в настольные игры.
Над обеденным столом совместно с основным освещением будете проводить приятные семейные беседы в хорошо освещенной комнате.
Или просто включить подсветку штор и над ТВ пока Вы развлекаетесь за игрой в любимый футбол или гонки на игровой ТВ-приставке.
Подсветку столешницы удобно использовать когда Вы проснулись ночью и хотите выпить стакан воды.

Или давайте посмотрим как будет светло в помещении если мы включим все освещение которое у нас есть. Ведь бывают такие случаи когда людям надо много света и они любят когда все источники света горят.

Выключатель-понятным словом это пульт управления освещением с одной точки. Здесь же Вы и включили и выключили свет.
Принцип действия-разрыв цепи. В кабеле у нас есть два проводника: N-ноль (синий цвет проводника) L-фаза (красный или белый цвет проводника). Один проводник разрывается с помощью выключателя и лампочку (источник света) не поступает не на один из проводников.

Выключатель бывает 1-4 клавишным. Схемы подключения у выключателей одинаковая, только добавляется кнопка.

Переключатель- внешне ни чем не отличается от выключателя и в двух положениях как выключает так и включает освещение.
Например: установлено управление освещением с двух точек в одном или разных помещениях. Зашли, включили свет (клавиша вниз), на другом конце коридора или помещения выключили (клавиша вверх), другой член семьи тоже зашел и включил освещение с помощью первого переключателя (клавиша вверх) и вышел из комнаты через ту же дверь выключив свет тем же переключателем (клавиша опять вниз), но уже выключено освещение.
И таких точек управления может быть несколько в разных помещениях и коридорах. В основном используется в спальнях уже как стандартное решение. При входе устанавливается переключатель и возле кровати дублер устанавливается. Зашли, включили освещение и когда легли на кровать, выключили освещение другим переключателем который установлен возле кровати над прикроватной тумбочкой.
Переключатель может быть и перекрестный. Это если вам надо управлять одним освещением более чем с 2-ух точек. Перекрестных переключателей может быть установлено не ограниченное количество.

ИТОГ: если надо управлять освещением с двух мест, устанавливаем два переключателя, а если надо более чем с 2-ух мест управлять освещением, устанавливаем два переключателя между которыми должны быть перекрестные. Перекрестные переключатели говорят сами за себя своим названием, в начале и конце цепи должны быть переключатели, но можно между ними установить и перекрестные переключатели.

Переключатели так же как и выключатели есть на рынке 1-3 ех клавишными. Но имейте ввиду. Перекрестные переключатели 2-ух или 3-ех клавишные найти сложно и с этим могут быть проблемы. Сегодня конечно появляется много чего нового, но не факт что найдете с одной серии.

Если вы вдруг захотели такие переключатели у себя в квартире, вы должны понимать что кабеля для это схем понадобиться очень много. Хоть и кабель у нас не такой уж и дорогой, но и работа электрика будет дороже и сложнее.

Изучите внимательно все схемы и разберитесь сколько куда на до кабеля. Мы же так и продолжим разбирать на нашем объекте который приведен в пример. Начнем мы с первого, квадрат на потолке. Первое с чем нам надо разобраться, это какой он ток потребляет. В нашем случае это светодиодная лента которой надо ток 24V

Ленту лучше использовать на 24V, для ее подключения нужны трансформаторы меньшего размера чем на ленту на 12V, тем самым вы уже начинаете экономить место. ЩР(щит распределительный) у Вас уже будет меньше чем для лент на 12V

Первым у нас идет квадрат с светодиодной лентой. Общая длина ленты у нас составляет 6360 мм. Ленты продаются по 5000 мм, тогда получается нам надо 2 трансформатора. Прокладка кабеля осуществляется следующим образом:
Входит от ЩР(основного щита), 2-ух жильный кабель сечением 2*1.5. Ставим РК(распределительную коробку), в нее же тащим еще 2 таких же кабеля но уже от ЩР(от трансформатора). Это уже примерно по 15 м каждого кабеля итого 45 п.м. От 2-ух переключателей нам надо кабель привести в РК 3*1.5 2 шт. и 4*1.5 1 шт. и от самой ленты ведем ПВС кабель 2*0.75 по 15 п.м.

Итого получается:
2*0.75-30 м
2*1.5-45 м
3*1.5-10 м
4*1.5-5 м
Трансформаторы 2 шт.

Это только для того чтобы у вас одна точка управлялась с 3-ех мест. Видимо я начал с самого сложного. Давайте разберем проще вариант. Вариант №7 "Основное освещение на кухне. Имеем всего один выключатель и одно место источника света. Трековые светильники на данное время имеют мощность 220V, 24V. У нас же 220V, нам надо следующее:
от первой РК взять питание на РК в котором мы расключим наше освещение. Это 2ух жильный кабель сечения 2*1.5 примерно 3 п.м., от этой РК надо два кабеля такого же сечения как и ввод. И того мы получаем три куска кабели общая длина которых будет равна примерно 10 метрам.

ИТОГ
Надо Вам такое сложное освещение или нет? Ответ на этот вопрос Вы получите когда будете составлять дизайн проект помещения. Так же рекомендую Вам составить проект ЭОМ в котором будут все расчеты по электрике и спецификация на все оборудование и кабель вплоть до подрозетников. Вы получите безопасную электрику с которой вам будет и комфортно и удобно пользоваться. На данный момент кабель у нас в РФ стоит не дорого. Примерно на квартиру в 120 кв.м. с большим количеством переключателей и сценариев мы тратим около 1000 п.м. кабеля разных сечений.