Найти в Дзене

Как сделать телевизор вплотную к стене?

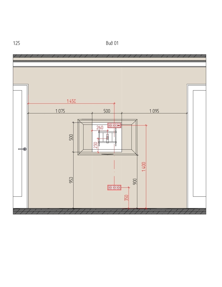
Решение не новое, но очень практичное - ниша за ТВ для розеток и крепления кронштейна! Здесь я описала пару таких решений для любителей прятать провода и розетки. В своём проекте я использовала полезное пространство в процессе выравнивания стены. Полностью проект хрущёвки можно посмотреть в моём тг-канале. Так как это панельный дом, то там, как правило, есть балки, которые значительно выступают за пределы стен на 50-70 мм, создавая ступеньку. Поэтому, я подумала, что если стены всё равно выравнивать, то можно сделать нишу для всех розеток и крепления за телевизором. Как раз, для всего этого и надо 50мм, что является, в моём случае глубиной наращивания, а сами розетки будут в стене, она не несущая и можно штробить, поэтому - это идеально! Дополнительно при необходимости, в нишу можно сделать закладную из фанеры для более надёжного крепления. Иии мы получаем ТВ плотно к стене, не видя всех проводочков, а наш внутренний эстет радуется красоте и порядку! Но также есть спобоб сделать такое

Решение не новое, но очень практичное - ниша за ТВ для розеток и крепления кронштейна! Здесь я описала пару таких решений для любителей прятать провода и розетки.

В своём проекте я использовала полезное пространство в процессе выравнивания стены. Полностью проект хрущёвки можно посмотреть в моём тг-канале.

Так как это панельный дом, то там, как правило, есть балки, которые значительно выступают за пределы стен на 50-70 мм, создавая ступеньку. Поэтому, я подумала, что если стены всё равно выравнивать, то можно сделать нишу для всех розеток и крепления за телевизором.

Как раз, для всего этого и надо 50мм, что является, в моём случае глубиной наращивания, а сами розетки будут в стене, она не несущая и можно штробить, поэтому - это идеально!

Дополнительно при необходимости, в нишу можно сделать закладную из фанеры для более надёжного крепления.

Иии мы получаем ТВ плотно к стене, не видя всех проводочков, а наш внутренний эстет радуется красоте и порядку!

Но также есть спобоб сделать такое решение из новой ГКЛ стены, и тогда она будет не 100мм, а 150мм, закладывая 50мм для самой ниши. Получается такой пирог: 25мм ГКЛ + 50мм профиль + 12,5мм ГКЛ + 50мм профиль + 25мм ГКЛ. Если стена смежная, то целесообразней сделать именно так. А если нет, то достаточно нарастить эти 50мм для ниши на старой стене. Главное убедиться, что материал существующей стены точно выдержит крепление и не придётся делать закладные!

-3

Такое решение позволяет скрыть всё, что не хотелось бы видеть сбоку ТВ, когда проходишь мимо. Также, в любой момент можно его отодвинуть от стены, если будет соответствующий кронштейн, и добраться до розеток!

Поделитесь своим мнением, как вам такое решение? И что бы ещё добавили?

Спасибо, что дочитали до конца, буду рада, если оставите комментарий и подпишетесь, чтобы увидеть ещё больше интересных решений в дизайне интерьеров!