Добавить в корзинуПозвонить
Найти в Дзене

Как создаётся детская комната: опыт работы над проектом

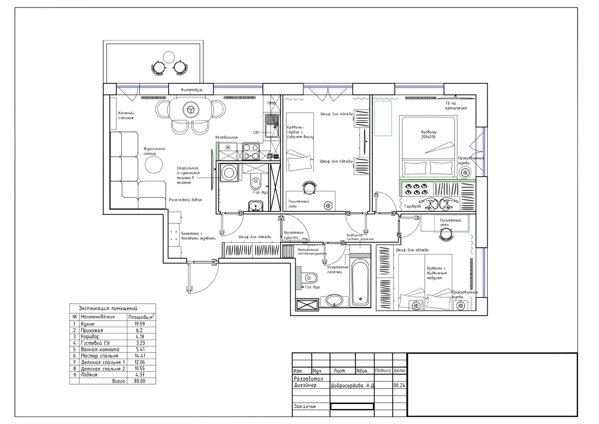
Сегодня я хочу рассказать о том, как мы вместе с клиентами работали над дизайном детской комнаты. Это отличный пример того, как планировочные решения могут меняться в процессе работы, подстраиваясь под реальные потребности семьи. Когда я начала работать с клиентами, они сразу обозначили, что определённые зоны в их новом доме, такие как кухня, спальня и санузлы, им вполне устраивают. Однако с детской комнатой возникли сложности. Планировка не выглядела гармоничной, и клиенты заметили это, почувствовав, что пространство напоминает "набор мебели", а не полноценное жилое помещение. Это действительно было так — я сама чувствовала, что что-то не складывается. Телевизор в детской: да или нет? Одной из причин, мешавших создать цельную картину, было наличие телевизора в детской комнате. Согласно техническому заданию, телевизор должен был находиться напротив дивана, но на ограниченном пространстве это просто не вписывалось. После обсуждения с клиентами мы решили убрать телевизор из детской, что
Оглавление


Сегодня я хочу рассказать о том, как мы вместе с клиентами работали над дизайном детской комнаты. Это отличный пример того, как планировочные решения могут меняться в процессе работы, подстраиваясь под реальные потребности семьи.

Начало работы: анализ исходных данных

Когда я начала работать с клиентами, они сразу обозначили, что определённые зоны в их новом доме, такие как кухня, спальня и санузлы, им вполне устраивают. Однако с детской комнатой возникли сложности. Планировка не выглядела гармоничной, и клиенты заметили это, почувствовав, что пространство напоминает "набор мебели", а не полноценное жилое помещение. Это действительно было так — я сама чувствовала, что что-то не складывается.

Телевизор в детской: да или нет?

Одной из причин, мешавших создать цельную картину, было наличие телевизора в детской комнате. Согласно техническому заданию, телевизор должен был находиться напротив дивана, но на ограниченном пространстве это просто не вписывалось. После обсуждения с клиентами мы решили убрать телевизор из детской, что сразу же позволило нам переосмыслить расположение мебели и сделать пространство более гармоничным.

Перестановка комнат: удобство и функциональность

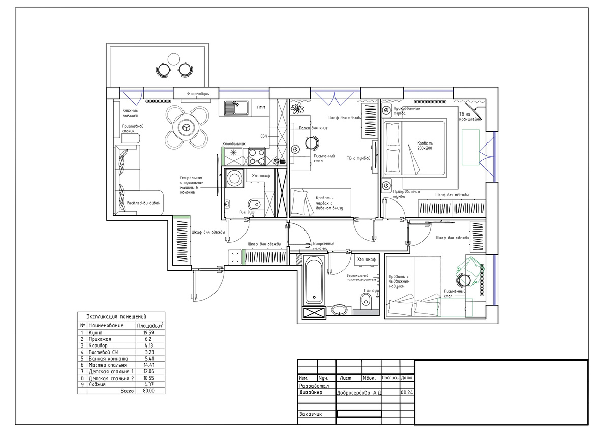
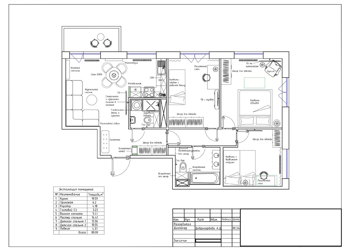
Мы также пришли к решению поменять комнаты старшей дочери и младшего сына местами. В новой планировке комната для дочери стала более просторной и функциональной. Теперь там расположены кровать-чердак с диваном внизу, письменный стол у окна и шкаф для хранения вещей напротив входной двери.

Комната девочки
Комната девочки

Комната младшего сына также получила свою проработку. Поскольку я понимала, что эта семья не планирует переезжать в ближайшие годы, я предложила проектировать электрику и мебель с учётом будущих потребностей ребёнка. Мы сделали планировку с выводом электрики для подросткового возраста, так чтобы в будущем, когда сыну исполнится 7 лет, не нужно было делать капитальный ремонт. В комнате появятся письменный стол и полноразмерная кровать, но пока в ней будет находиться пеленальный столик, шкаф и раскладной диванчик для бабушки, которая планирует иногда приезжать в гости.

Встречи и обсуждения: почему это важно?

В этом проекте я отправила клиентам четыре варианта планировки и встретилась с ними для обсуждения. Важно понимать, что некоторые пожелания, такие как остров на кухне или душевая кабина в санузле, на практике могут оказаться неприемлемыми. Мы обсудили все возможные варианты и пришли к компромиссам, например, отказались от душевой в пользу большего количества мест для хранения.

Итоговое планировочное решение
Итоговое планировочное решение

Одной из ключевых точек стало обсуждение гардеробной комнаты в мастер-спальне. Из-за ограниченного пространства было важно понять, как именно будет организовано хранение вещей. Мы детально обсудили каждый нюанс, и в итоге клиенты согласились с тем, что будут использовать комодную часть боком, чтобы сохранить пространство для подхода к кровати.

Этот проект показал, насколько важно взаимодействие с клиентами и гибкость в процессе работы над интерьером. Обсуждение, понимание потребностей семьи и способность адаптировать планировки под реальные условия помогают создать пространство, в котором будет комфортно жить не только сегодня, но и в будущем.