Найти в Дзене

Планировочное решение №74

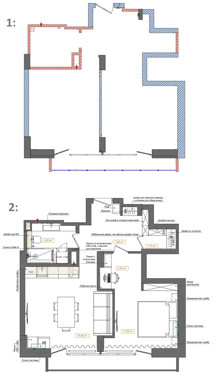
На мой взгляд, важно создавать не только красивый и стильный интерьер, но также функциональный и удобный. Любой интерьер начинается с планировки. Рассмотрим планировочные решения на примере одного из наших объектов. На первом чертеже показана планировка от застройщика, на втором – наше планировочное решение с расстановкой мебели. 1. Изменили конфигурацию стены между кухней и спальней. Это позволило разместить в нише диван, на котором уютно сидеть и любоваться прекрасным видом из панорамных окон. Увеличилось пространство в кухне-гостиной для встреч и общения с гостями. В спальне появилась обособленная зона для работы за компьютером, с отдельным шкафом для документов. 2. Возвели перегородку в с/у между душевой и постирочной зонами. Это позволило внедрить встроенный шкаф со стиральной, сушильной машинами, бойлером и дополнительным местом хранения в с/у. На противоположной стене разместили столешницу на всю длину (2,5м), на которой можно разместить все необходимое, что оценит будущая хозяй

На мой взгляд, важно создавать не только красивый и стильный интерьер, но также функциональный и удобный. Любой интерьер начинается с планировки.

Рассмотрим планировочные решения на примере одного из наших объектов.

На первом чертеже показана планировка от застройщика, на втором – наше планировочное решение с расстановкой мебели.

1. Изменили конфигурацию стены между кухней и спальней. Это позволило разместить в нише диван, на котором уютно сидеть и любоваться прекрасным видом из панорамных окон. Увеличилось пространство в кухне-гостиной для встреч и общения с гостями.

В спальне появилась обособленная зона для работы за компьютером, с отдельным шкафом для документов.

2. Возвели перегородку в с/у между душевой и постирочной зонами. Это позволило внедрить встроенный шкаф со стиральной, сушильной машинами, бойлером и дополнительным местом хранения в с/у.

На противоположной стене разместили столешницу на всю длину (2,5м), на которой можно разместить все необходимое, что оценит будущая хозяйка.

3. Во входной зоне путем возведения перегородки разместили встроенный шкаф быстрого доступа для верхней одежды.

В большой нише справа разместили скрытую гардеробную с мебельной дверью аналогичную фасадам шкафов в прихожей.

4. В спальне, за счет небольшой перегородки, расположили неглубокий распашной шкаф с полками для одежды и выдвижными ящиками.

Широкая кровать со спальным местом 180*200см позволит комфортно расположиться на ней.

С помощью таких планировочных решений мы создали действительно удобный и функциональный интерьер, удовлетворяющий запросам будущих жильцов.