Добавить в корзинуПозвонить
Найти в Дзене
DARIA ELNIKOVA INTERIORS

Квартира 130 м² в Москве

Наша заказчица – молодая утонченная женщина, которая четко знает, чего хочет и что ей нравится. Она обратилась к нам по рекомендации от постоянных заказчиков, побывав у них в гостях. На встрече мы вместе заполнили техническое задание, определились со стилевым решением и цветовой гаммой. По стилю мы остановились на современном с классическими элементами. По цветам заказчица предпочла светлую теплую гамму с нюансными оттенками в бежевых и коричневых тонах. Материалы для отделки стен: дерево, камень, латунь, керамогранит, краска, обои. Основной задачей планировочного решения было предусмотреть большую кухню-гостиную, несколько гардеробных определенного размера, мастер-спальню со своей ванной комнатой с определенными пожеланиями по размерам, гостевую спальню, еще один санузел и вместительную постирочную с необходимым количеством оборудования. Из технических деталей, которые мы учитывали и отражение они найдут в чертежах и проектах приглашенных подрядчиков – канальное кондиционирование и вс
Кухня в квартире 130 м² в ЖК Медный 3.14
Кухня в квартире 130 м² в ЖК Медный 3.14

Наша заказчица – молодая утонченная женщина, которая четко знает, чего хочет и что ей нравится.

Она обратилась к нам по рекомендации от постоянных заказчиков, побывав у них в гостях.

На встрече мы вместе заполнили техническое задание, определились со стилевым решением и цветовой гаммой.

По стилю мы остановились на современном с классическими элементами. По цветам заказчица предпочла светлую теплую гамму с нюансными оттенками в бежевых и коричневых тонах.

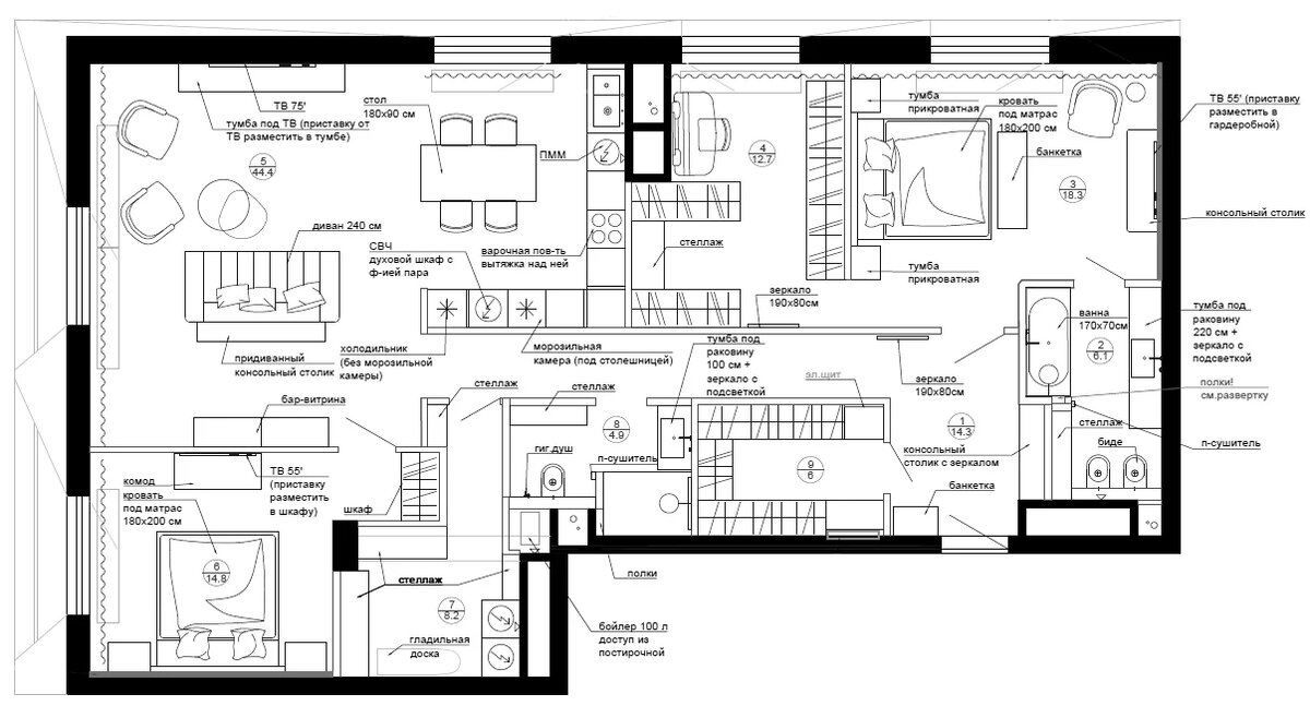
Согласованное планировочное решение от DARIA ELNIKOVA INTERIORS
Согласованное планировочное решение от DARIA ELNIKOVA INTERIORS

Материалы для отделки стен: дерево, камень, латунь, керамогранит, краска, обои.

Основной задачей планировочного решения было предусмотреть большую кухню-гостиную, несколько гардеробных определенного размера, мастер-спальню со своей ванной комнатой с определенными пожеланиями по размерам, гостевую спальню, еще один санузел и вместительную постирочную с необходимым количеством оборудования.

Из технических деталей, которые мы учитывали и отражение они найдут в чертежах и проектах приглашенных подрядчиков – канальное кондиционирование и встроенная система увлажнения воздуха.

Нам было очень приятно работать над этим совершенно шикарным проектом и мы были рады начать с него этот год.

Прихожая и коридор, S=14.3 м²

Интерьер прихожей получился лаконичный с минимумом мебели: консольный столик с зеркалом и банкетка с мягкими стеновыми панелями. Основное хранение здесь расположено в гардеробной S=6 м².

Вид на входную зону, слева столик с зеркалом, справа банкетка и дверь в гардеробную.
Вид на входную зону, слева столик с зеркалом, справа банкетка и дверь в гардеробную.

Для отделки стен выбраны английские обои Designers Guild, на полу матовый керамогранит под мрамор Calacatta. Декоративный плинтус в коридоре и прихожей отличается от остальных комнат, он выполнен из травертина.

Консольный столик CATTELAN ITALIA Console DIAPASON Зеркало в раме над столиком CATTELAN ITALIA TAXEDO.
Консольный столик CATTELAN ITALIA Console DIAPASON Зеркало в раме над столиком CATTELAN ITALIA TAXEDO.
Входная дверь с отделкой из шпон дерева Rovere Americano.
Входная дверь с отделкой из шпон дерева Rovere Americano.
Отделка стен коридора - декоративные стеновые панели из натурального шпона дуба и рейки из массива дуба. Зеркало 100х180см настенное ростовое CATTELAN ITALIA TAXEDO.
Отделка стен коридора - декоративные стеновые панели из натурального шпона дуба и рейки из массива дуба. Зеркало 100х180см настенное ростовое CATTELAN ITALIA TAXEDO.
Межкомнатные двери в скрытом коробе, шпон Rovere Americano, матовый лак.
Межкомнатные двери в скрытом коробе, шпон Rovere Americano, матовый лак.
Вид из прихожей и коридора на кухню-гостиную. Бра в коридоре CTOLIGHTING NIMBUS WALL.
Вид из прихожей и коридора на кухню-гостиную. Бра в коридоре CTOLIGHTING NIMBUS WALL.

Кухня-гостиная, S=44.4 м²

Основной задачей планировочного решения было предусмотреть большую кухню-гостиную. Для этого проекта было выбрано сочетание натурального дерева и бежевого цвета на фасадах кухни, акцентом служат стеклянные витрины. Все эти материалы встречаются и в других элементах интерьера, благодаря чему такое решение кухни идеально вписалось в общую картину. Из техники здесь: холодильник, духовой шкаф, мини морозильник, СВЧ, посудомоечная машина 60 см, варочная поверхность, вытяжка, измельчитель.

Элегантная кухня в квартире для девушки с утонченным вкусом  🤍
Элегантная кухня в квартире для девушки с утонченным вкусом 🤍

Кухонный гарнитур в стиле джапанди отлично вписывается в современный стиль этой роскошной квартиры. Нам хотелось сделать акцент на сочетание роскоши и практичности, формируя новую эстетику интерьера современного человека, который четко знает, чего хочет и умеет наслаждаться, казалось бы, обычными вещами.

Обеденная зона на четверых на фоне кухни.
Обеденная зона на четверых на фоне кухни.
Обеденный стол CATTELAN ITALIA BOULEVARD Keramik 180х90х75см, стулья CASSINA DUDET.
Обеденный стол CATTELAN ITALIA BOULEVARD Keramik 180х90х75см, стулья CASSINA DUDET.
Светильник над обеденным столом GIOPATO&COOMBES Milky Way Pendant Infinity Line.
Светильник над обеденным столом GIOPATO&COOMBES Milky Way Pendant Infinity Line.

Наши интерьеры продуманы до деталей, выверены и точно соответствуют запросам заказчиков. Перед вами элегантная зона отдыха с диваном, креслами и дизайнерскими столиками. Диван и кресла Minotti Тумба под TV, стеллажи и консольный столик за диваном Cattelanitalia Свет ctolighting и henge, Ковер jan kath

Отделка стен в гостиной краска бежевая матовая и молдинги под покраску. На полу паркетная доска.
Отделка стен в гостиной краска бежевая матовая и молдинги под покраску. На полу паркетная доска.
Зона ТВ выделена панелями из дуба и травертина, тумба AWARD TV Cabinet 210см от CATTELAN ITALIA.
Зона ТВ выделена панелями из дуба и травертина, тумба AWARD TV Cabinet 210см от CATTELAN ITALIA.
Консольный столик за диваном TERMINAL Keramik Premium 200см от CATTELAN ITALIA.
Консольный столик за диваном TERMINAL Keramik Premium 200см от CATTELAN ITALIA.
Место для отдыха в гостиной: элегантная мебель, правильный свет, уютный ковёр.
Место для отдыха в гостиной: элегантная мебель, правильный свет, уютный ковёр.
Мягкая группа из дивана и кресел со столиками и зона ТВ.
Мягкая группа из дивана и кресел со столиками и зона ТВ.
Вид на зону отдыха в гостиной. Отделка за ТВ - каменная и деревянная панели, травертин и дуб, как вам сочетание?
Вид на зону отдыха в гостиной. Отделка за ТВ - каменная и деревянная панели, травертин и дуб, как вам сочетание?
Вид на ТВ-зону и кухню. Рассмотрите поближе консоль Keramik Premium от CATTELAN ITALIA.
Вид на ТВ-зону и кухню. Рассмотрите поближе консоль Keramik Premium от CATTELAN ITALIA.
Стеллаж NAUTILUS от CATTELAN ITALIA. Изысканная металлическая отделка придает комнате яркий вид и украшает стены с изящной скромностью.
Стеллаж NAUTILUS от CATTELAN ITALIA. Изысканная металлическая отделка придает комнате яркий вид и украшает стены с изящной скромностью.
Вид на выход из кухни-гостиной.
Вид на выход из кухни-гостиной.

Мастер-спальня, S=18.3 м²

Мастер-спальня с собственным гардеробом и ванной комнатой объединены в общее пространство с интересными эстетичными и функциональными решениями. Тщательно подобранная мебель, уютные сценарии освещения и цветовое решение – всё это создаёт комфортное пространство для отдыха заказчицы.

Эстетичная и эргономичная мастер-спальня. MINOTTI, кровать Spencer Bed и банкетка Freeman; прикроватные тумбы PIANCA, коллекция Dedalo - отличный выбор.
Эстетичная и эргономичная мастер-спальня. MINOTTI, кровать Spencer Bed и банкетка Freeman; прикроватные тумбы PIANCA, коллекция Dedalo - отличный выбор.
Подвес у кровати GIOPATO&COOMBES, бра для чтения WEVER & DUCRÉ DOT 2.0 цвет Champagne. Романтика 🫶
Подвес у кровати GIOPATO&COOMBES, бра для чтения WEVER & DUCRÉ DOT 2.0 цвет Champagne. Романтика 🫶
Отделка за изголовьем кровати - мягкие панели с латунными вставками и выше деревянная панель из дуба. Справа вход в мастер-гардеробную.
Отделка за изголовьем кровати - мягкие панели с латунными вставками и выше деревянная панель из дуба. Справа вход в мастер-гардеробную.
Обратите внимание на изголовье кровати, оно максимально комфортно и поддерживает правильную позу для чтения.
Обратите внимание на изголовье кровати, оно максимально комфортно и поддерживает правильную позу для чтения.
Кресло MINOTTI Raphael, комод PIANCA Dedalo, светильник BOCCI FLOOR LONG.
Кресло MINOTTI Raphael, комод PIANCA Dedalo, светильник BOCCI FLOOR LONG.
Me-time – личное время и личное пространство – удобное кресло, уютный свет.
Me-time – личное время и личное пространство – удобное кресло, уютный свет.

Мастер-гардеробная, S=12.7 м²

Гардеробная - это удобное и функциональное решение, которое необходимо включить в проект для большинство наших заказчиков. Женская гардеробная, прилегающая к мастер-спальне, отвечает всем требованиям хозяйки.

В пространстве гардеробной выделено место для макияжной зоны. Консольный столик от CATTELAN ITALIA многофункционален и может использоваться как туалетный, или как рабочее место домашнего офиса, или как место для чтения.
В пространстве гардеробной выделено место для макияжной зоны. Консольный столик от CATTELAN ITALIA многофункционален и может использоваться как туалетный, или как рабочее место домашнего офиса, или как место для чтения.
Наполнение гардеробной полка, штанги, ящики для одежды и обуви, всё с подсветкой.
Наполнение гардеробной полка, штанги, ящики для одежды и обуви, всё с подсветкой.
CATTELAN ITALIA. Туалетный столик с зеркалом COCOON TROUSSE Keramik 130х65х72см топ Matt golden calacatta. Стул WILMA отделка кожа Soft 948 Lino.
CATTELAN ITALIA. Туалетный столик с зеркалом COCOON TROUSSE Keramik 130х65х72см топ Matt golden calacatta. Стул WILMA отделка кожа Soft 948 Lino.
Отделка стен обои Pierre Frey, Франция; на полу ковролин Floating Curl, хлопок, ручная работа.
Отделка стен обои Pierre Frey, Франция; на полу ковролин Floating Curl, хлопок, ручная работа.
Вид на выход из гардеробной в спальню.
Вид на выход из гардеробной в спальню.

Мастер-ванная S=6.1 м²

Дизайн мастер-ванной выдержан в светлых природных оттенках. Здесь мы разместили встраиваемую ванну 170 см, подвесные унитаз и биде, тумбу с раковиной и шкаф. Над инсталляцией унитаза и биде расположен шкафчик для хранения нужных мелочей. А двухметровая тумба под раковину служит весомым дополнением к шкафам для хранения. В этом интерьере все и всегда точно будет на своем месте.

Отделка стен крупноформатный керамогранит CESAR ANIMA WONDER Glacier и декоративная штукатурка под водостойким матовым лаком. На полу  матовый керамогранит Provenza UNIQUE TRAVERTINE 90х180см (matt)
Отделка стен крупноформатный керамогранит CESAR ANIMA WONDER Glacier и декоративная штукатурка под водостойким матовым лаком. На полу матовый керамогранит Provenza UNIQUE TRAVERTINE 90х180см (matt)
Отделка мебели выполнена в натуральном шпоне, фартук ванны керамогранит травертин.
Отделка мебели выполнена в натуральном шпоне, фартук ванны керамогранит травертин.
Тумба с раковиной от брэнда  Tailormade Stocco, зеркало с подсветкой по периметру выполнено под заказ.
Тумба с раковиной от брэнда Tailormade Stocco, зеркало с подсветкой по периметру выполнено под заказ.
Вид на мастер-ванную. Над ванной полки с подсветкой, выполненные из керамогранита.
Вид на мастер-ванную. Над ванной полки с подсветкой, выполненные из керамогранита.
Дополнительное хранение над инсталляцией, шкафчик и ниша с подсветкой в отделке из шпона дуба.
Дополнительное хранение над инсталляцией, шкафчик и ниша с подсветкой в отделке из шпона дуба.

Гостевая спальня, S=14.8 м²

Гостевая спальня лаконична и элегантна. Здесь располагается двуспальная кровать BEND от DITRE ITALIA, прикроватные тумбы и комод от CATTELAN ITALIA. Хранение организовано во встроенном распашном шкафу.

Элегантная спальня для эстета. Вид на спальное место, кровать с мягким изголовьем и тумбы прикроватные.
Элегантная спальня для эстета. Вид на спальное место, кровать с мягким изголовьем и тумбы прикроватные.
Отделка за изголовьем кровати мягкие стеновые панели со вставками из латуни.
Отделка за изголовьем кровати мягкие стеновые панели со вставками из латуни.
Тумбы прикроватные CIRO от CATTELAN ITALIA; подвесы для чтения HENGE.
Тумбы прикроватные CIRO от CATTELAN ITALIA; подвесы для чтения HENGE.
Вид от входа в спальню.
Вид от входа в спальню.
Вид на спальное место от окна. Отделка стен краска, молдинги, светильники-бра на стене CTOLIGHTING. На полу паркетная доска и шикарный ковер ручной работы из шерсти тибетской овцы.
Вид на спальное место от окна. Отделка стен краска, молдинги, светильники-бра на стене CTOLIGHTING. На полу паркетная доска и шикарный ковер ручной работы из шерсти тибетской овцы.
Встроенный шкаф в отделке из фрезерованной МДФ в матовой эмали.
Встроенный шкаф в отделке из фрезерованной МДФ в матовой эмали.
Вид на ТВ-зону с комодом KAYAK от CATTELAN ITALIA.
Вид на ТВ-зону с комодом KAYAK от CATTELAN ITALIA.

Гостевой санузел, S=4.9 м²

Санузел с душевой или гостевой санузел. Здесь мы разместили большую душевую, тумбу под раковину с двумя ящиками, вместительный шкаф напротив унитаза. На стенах использовали керамические плиты под разные виды мрамора, на некоторых стенах использовали краску, а в качестве декора мозаику на пол и стены в душевой.

Тумба Stocco цвет Legno Rovere naturale, раковина Ceramilux® белая матовая. Правее душевая с раздвижной дверью.
Тумба Stocco цвет Legno Rovere naturale, раковина Ceramilux® белая матовая. Правее душевая с раздвижной дверью.
Стены в душевой и полочки выполнены из керамогранита ANIMA EVERLUXURY ARABESQUE
Стены в душевой и полочки выполнены из керамогранита ANIMA EVERLUXURY ARABESQUE
Хранение в санузле - стеллаж  и открытые полочки с вертикальной подсветкой.
Хранение в санузле - стеллаж и открытые полочки с вертикальной подсветкой.
Унитаз подвесной с кнопкой смыва, гигиенический душ и полотенцесушитель в белом матовом цвете.
Унитаз подвесной с кнопкой смыва, гигиенический душ и полотенцесушитель в белом матовом цвете.

-49
Красивое сочетание отделки в душевой: керамогранит и мозаика. Линейка керамогранита Anima Futura от марки Caesar оригинально раскрывает всю красоту мрамора.
Красивое сочетание отделки в душевой: керамогранит и мозаика. Линейка керамогранита Anima Futura от марки Caesar оригинально раскрывает всю красоту мрамора.
Хранение в санузле - фасады шпон дуба, открытые полки шпон дуба с подсветкой.
Хранение в санузле - фасады шпон дуба, открытые полки шпон дуба с подсветкой.

Архитектор и автор проекта Дарья Ельникова

Когда наши заказчики переезжают в интерьеры, созданные нами, они становятся успешнее, состоятельнее и счастливее 💫

Мы стремимся улучшать жизнь людей с помощью архитектурных и интерьерных решений, основываясь на индивидуальных предпочтениях заказчика.

Обращайтесь, создадим для вас идеальное пространство, где каждая деталь продумана для комфорта вашей семьи.

DARIA ELNIKOVA INTERIORS

+7(995)115-23-20