Добавить в корзинуПозвонить
Найти в Дзене

Проект двухэтажного дома 232 м2 с террасой

Площадь: 232 м2
Материал стен: клееный брус Это двухэтажный дом представляет современное решение для комфортного проживания семьи из 4-6 человек.
Одной из его ключевых особенностей является двускатная крыша, которая не только придаёт строению привлекательный внешний вид, но и поспособствует эффективному стоку дождевой воды. Рассмотрим подробнее его основные зоны и функциональные элементы.
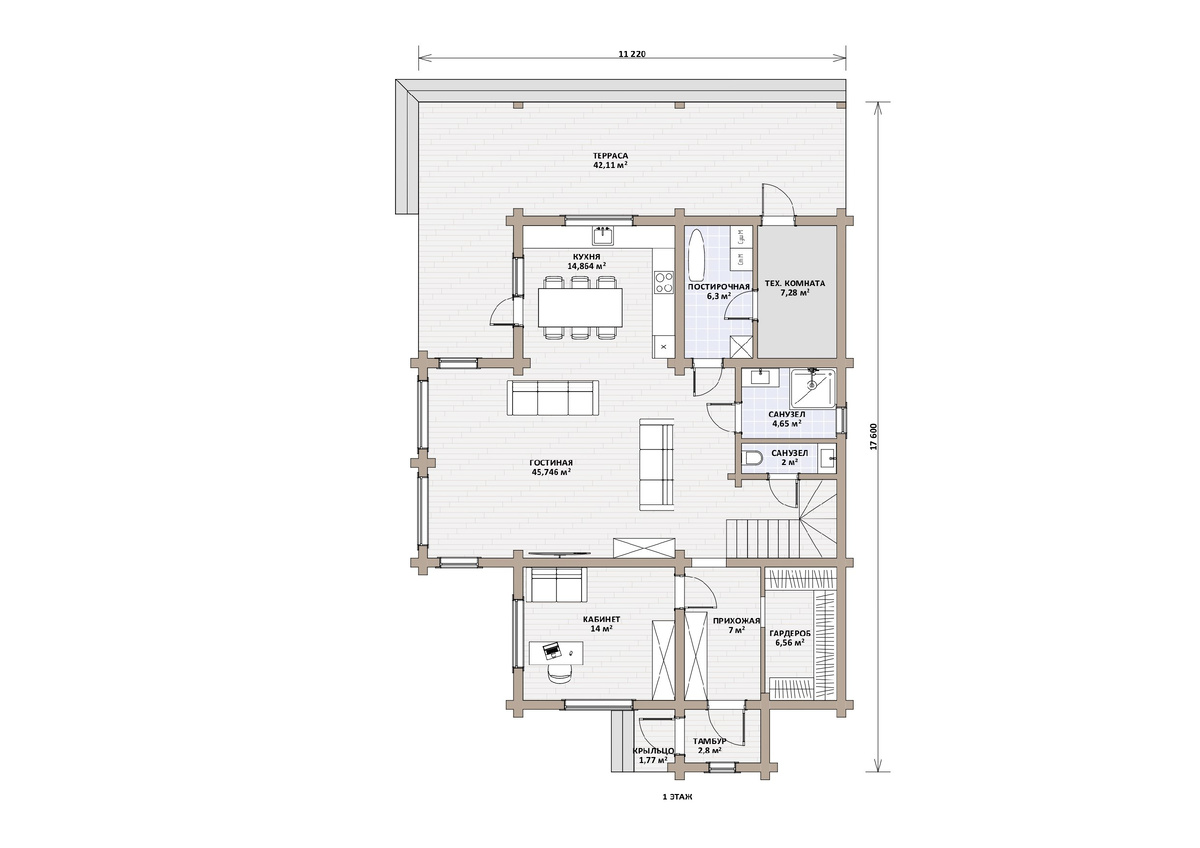
ВХОДНАЯ ЗОНА И ПЕРВЫЙ ЭТАЖ: Фасад дома выделяется стильной архитектурой, а вход в дом осуществляется через небольшое крыльцо, где создается уютное первое впечатление. Сначала попадаем в тамбур, который создаёт защиту от холодного воздуха. Далее, переходим в просторную прихожую, совмещенную с гардеробом, где предусмотрено удобное место для хранения верхней одежды и аксессуаров.
Центральное пространство первого этажа занимает кухня-гостиная, зона общения и отдыха всей семьи. Просторная планировка с вторым светом наполняет комнату естественным светом и создает атмосферу открытости и свободы. Из

Площадь: 232 м2
Материал стен: клееный брус

Это двухэтажный дом представляет современное решение для комфортного проживания семьи из 4-6 человек.
Одной из его ключевых особенностей является двускатная крыша, которая не только придаёт строению привлекательный внешний вид, но и поспособствует эффективному стоку дождевой воды.

Рассмотрим подробнее его основные зоны и функциональные элементы.

ВХОДНАЯ ЗОНА И ПЕРВЫЙ ЭТАЖ:

-2

Фасад дома выделяется стильной архитектурой, а вход в дом осуществляется через небольшое крыльцо, где создается уютное первое впечатление. Сначала попадаем в тамбур, который создаёт защиту от холодного воздуха. Далее, переходим в просторную прихожую, совмещенную с гардеробом, где предусмотрено удобное место для хранения верхней одежды и аксессуаров.

Центральное пространство первого этажа занимает
кухня-гостиная, зона общения и отдыха всей семьи. Просторная планировка с вторым светом наполняет комнату естественным светом и создает атмосферу открытости и свободы. Из этого общего пространства предусмотрен выход на террасу, что позволит наслаждаться отдыхом на свежем воздухе в теплую погоду.

Важным элементом первого этажа является
рабочий кабинет, где организовано продуктивное рабочее пространство.
Санузел, ванная комната и постирочная с доступом в техническое помещение создают функциональность и комфорт для жителей дома.

ВТОРОЙ ЭТАЖ:

-3

На втором этаже расположены четыре спальни и дополнительно предусмотрен санузел.

Большие панорамные окна в этом двухэтажном доме не только заполняют пространство естественным светом, но и создают ощущение единства с окружающей природой, создавая великолепные виды на сад или ландшафт.

Просторная открытая терраса станет идеальным местом для отдыха на свежем воздухе, где можно наслаждаться спокойствием и красотой окружающей обстановки.

Хотите подобный дом?

Заполните форму по ссылке и наш специалист с вами свяжется.