Найти в Дзене
DIVAN.RU

ДО/ПОСЛЕ: уютная евротрешка 70 кв.м в старом фонде

Оглавление

Эта квартира находится в доме 1959 года постройки. Капитальный ремонт и перепланировку здесь делали в условиях сжатых сроков в бюджета. Посмотрим, как соединили современную классику с экономичным подходом.

Проект дизайнера Юлии Гришиной; автор фото Егор Кодяков
Проект дизайнера Юлии Гришиной; автор фото Егор Кодяков

Об объекте: трехкомнатная квартира 70 кв.м, г. Москва
Автор проекта: дизайнер Юлия Гришина, автор фото Егор Кодяков
Бюджет: 3 млн рублей

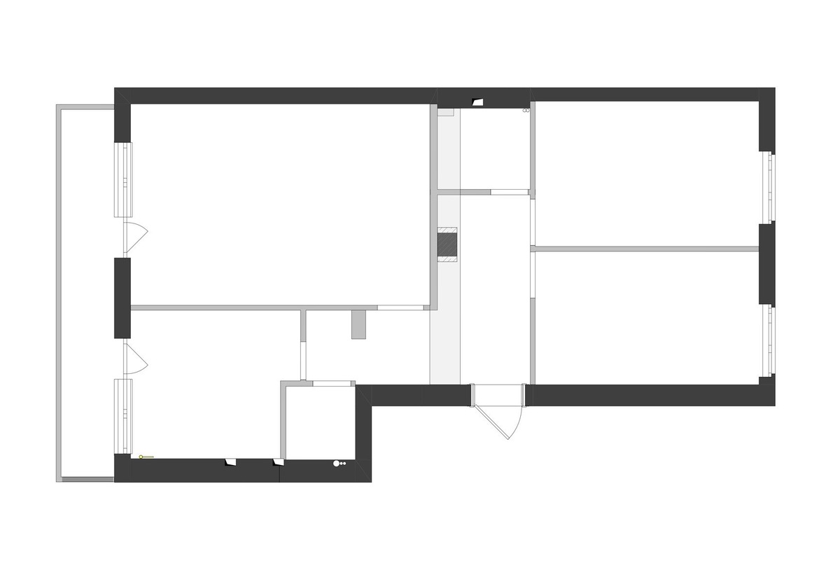
Логика перепланировки

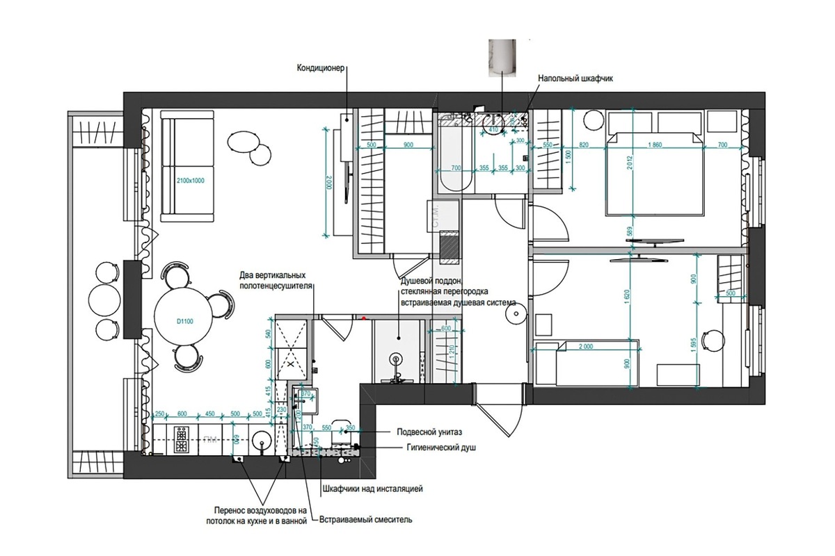
По просьбе владельцев кухню объединили с гостиной. Мокрые зоны не переносили. В доме газ, поэтому под натяжным потолком оставили закладные для установки раздвижной перегородки. За счет коридора расширили санузел и обустроили в нем душевую. Изменили конфигурацию спален, продумав ниши для встроенных шкафов.

Кухня-гостиная

Вход в кухню был со стороны прихожей. Прогнивший паркет, трещины на потолке, «больничные» стены в кухне и морально устаревшие фотообои в гостиной — эти помещения нуждались в капитальном ремонте.

После перепланировки кухня-гостиная представляет собой единое пространство с двумя окнами. Стены окрашены светлой краской, на полу постелен ламинат.

Гарнитур делали на заказ — это позволило максимально эффективно использовать площадь. Кухня оснащена всей необходимой техникой. Раковина, плита и духовка располагаются на одной стороне, холодильник и техника для готовки — на смежной. За глухими фасадами предусмотрено много мест для хранения. В центре кухни-гостиной поставили обеденную группу.

Стену напротив дивана окрасили в серый цвет и оформили молдингами. Таким же образом декорировали стену, ведущую в коридор, — так гостиная получила визуальное продолжение.

Мягкий диван и журнальный стол заказали у отечественного производителя divan.ru. Диван Мисл имеет увеличенную глубину сиденья — на нем удобно устроиться, забравшись с ногами. Рисунок столешницы журнального столика поддержал напольную «елочку», а черные графичные опоры — геометрию молдингов.

В кадре диван Мисл Barhat White, divan.ru >>

-7

▶️ Этот диван сейчас можно купить с выгодой до 19 000₽*. Еще больше товаров со скидками до -40% ждет вас на большой ярмарке в Скандивании!

Спальня

До ремонта это была обычная комната с сильно «уставшим» ремонтом. Необходимо было провести капитальную переделку, продумать дизайн и функционал.

Состояние спальни ДО ремонта
Состояние спальни ДО ремонта

Для отделки стен в спальне выбрали нейтральный светлый оттенок и молдинги. Наполнение комнаты стандартное: кровать в центре, по бокам — прикроватные тумбы. Для шкафа на этапе ремонта выстроили нишу.

Прием: чтобы сделать монохромный интерьер более динамичным, использовали асимметрию — тумбочки и светильники разного формата с двух сторон кровати, картина висит не по центру, а ближе к окну.

В квартире есть еще одна изолированная комната. В ней сделали ремонт, но мебелью наполнять не стали (владельцы пока не решили, что здесь будет — кабинет или, может быть, детская).

Проект дизайнера Юлии Гришиной; автор фото Егор Кодяков
Проект дизайнера Юлии Гришиной; автор фото Егор Кодяков

Прихожая

До переделки это было не функциональное пространство с большим количеством дверей и массивными антресолями. Плохое освещение акцентировало внимание на его недостатках.

После ремонта прихожая превратилась в светлое функциональное помещение. Благодаря межкомнатным дверям скрытого монтажа выдержали единый стиль и визуально сделали узкое пространство больше. Входную дверь, наоборот, сделали акцентным пятном-порталом, оформив ее ЛДСП.

В прихожей есть «парящий» шкаф с нишей для обуви, зеркало в полный рост и мягкий пуфик.

Ванная и туалет

Санузел в квартире раздельный. Владельцы квартиры просили дизайнера преобразить «уставший» интерьер, сохранить ванну и найти место для душа.

Площадь санузла увеличили за счет коридора, задействовав новые метры под душевую. Цветовая гамма стала продолжением «мягкой» палитры в жилых комнатах. Для отделки пола и стен выбрали одинаковый крупноформатный керамогранит. Хранение организовали в тумбе под раковиной и в распашных шкафах над инсталляцией.

В ванную заходил «кусок» несущей балки. Чтобы исправить геометрию комнаты, его зашили в гипсокартон и продлили до смежной стены. В нижнюю часть конструкции вмонтировали светодиодную подсветку. Черная рама зеркала перекликается с другими графичными акцентами. Добавление деревянных текстур сделало интерьер более объемным и интересным, компенсируя отсутствие ярких красок.

=========
Оцените интерьер в комментариях, а если материал понравился — не забудьте поставить лайк.

🖤divan.ru — не только блог про интерьеры, но и производитель доступной дизайнерской мебели. Ищите новые идеи и переходите на сайт, чтобы воплотить их в жизнь.

*Цены актуальны на момент публикации статьи