Добавить в корзинуПозвонить
Найти в Дзене

Обзор интерьера яркой квартиры для реальной жизни

Друзья приветствую! С вами Марина Измайлова, архитектор, руководитель бюро ARCHWOOD Мы уже 14 лет занимаемся дизайном интерьеров и их воплощением, и недавно закончили и отсняли новый реализованный проект,  сейчас вам его покажу. Если удобнее смотреть видео, то Полный видео-обзор проекта с планировкой, освещением, эскизами и интересными деталями по ссылке: https://dzen.ru/video/watch/665dcefc6e1da9074c9bc5fd Наши контакты и портфолио в шапке профиля или по ссылке: https://archwood.ru/?utm_source=dzen&utm_medium=profil Трешка - распашонка в Москве, чуть менее 100 м. На мой взгляд, это настоящая семейная квартира для реальной жизни,  живая, активная, интеллигентная, отражающая характер и увлечения членов семьи. И одной из задач было совместить несколько стилей и цветов, которые близки заказчикам и их реальные личные вещи, книги, пианино, то, чем семья из трех человек может пользоваться каждый день. Она не выглядит как однотипный, однородный интерьер, а это новая эклектика. Дом каркасно-
Оглавление

Друзья приветствую! С вами Марина Измайлова, архитектор, руководитель бюро ARCHWOOD

Мы уже 14 лет занимаемся дизайном интерьеров и их воплощением, и недавно закончили и отсняли новый реализованный проект,  сейчас вам его покажу.

Полное видео

Если удобнее смотреть видео, то Полный видео-обзор проекта с планировкой, освещением, эскизами и интересными деталями по ссылке: https://dzen.ru/video/watch/665dcefc6e1da9074c9bc5fd

Наши контакты и портфолио в шапке профиля или по ссылке: https://archwood.ru/?utm_source=dzen&utm_medium=profil

Задание для дизайн-проекта

Трешка - распашонка в Москве, чуть менее 100 м. На мой взгляд, это настоящая семейная квартира для реальной жизни,  живая, активная, интеллигентная, отражающая характер и увлечения членов семьи.

И одной из задач было совместить несколько стилей и цветов, которые близки заказчикам и их реальные личные вещи, книги, пианино, то, чем семья из трех человек может пользоваться каждый день. Она не выглядит как однотипный, однородный интерьер, а это новая эклектика.
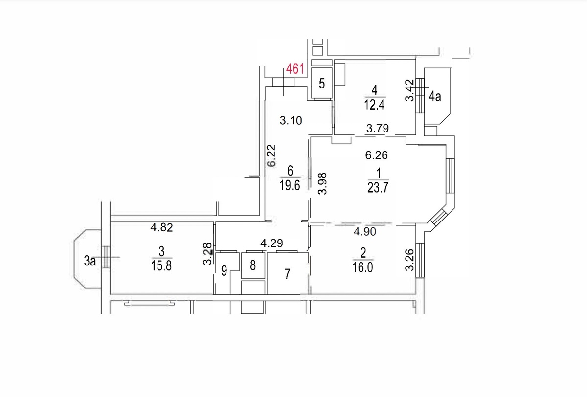
Исходная планировка от застройщика. Вход на кухню сразу из прихожей, поэтому входной зоны почти нет. Не годится.
Исходная планировка от застройщика. Вход на кухню сразу из прихожей, поэтому входной зоны почти нет. Не годится.

Начнем с перепланировки.

Дом каркасно-монолитный, с центральным несущим пилоном , поэтому у нас нет перпендикулярных фасаду несущих стен, в том числе между гостиной и кухней. Это дает возможность перестроить пространство, чтобы оставить проем между кухней и гостиной. Это допустимо сантарными нормами, и соответственно, меняется принцип передвижения по квартире.

Раньше мы должны были попадать на кухню  через отдельный коридор, но застройщик оставил нам альтернативу - проход через гостиную. И мы этим воспользовались. Перекрыли коридор, который вел из прихожей сразу на кухню, а вход на кухню сделали из гостиной. Что это дало?

Финальное планировочное решение выбрано из 3-х вариантов. Вход на кухю из гостиной, а на территории старого коридора у входа получилось разместить душ. Прихожая увеличилась. Бюро ARCHWOOD
Финальное планировочное решение выбрано из 3-х вариантов. Вход на кухю из гостиной, а на территории старого коридора у входа получилось разместить душ. Прихожая увеличилась. Бюро ARCHWOOD

Целых 3 ценных планировочных плюса.

  1. Мы  увеличиваем прихожую. Сюда могут спокойно войти сразу все члены семьи и даже их гости, раздеться, повесить вещи и на открытые крючки и сразу в шкаф.
  2. На месте коридора теперь получается сделать душ в санузле, потому что мы его увеличиваем за счет коридора, это тоже разрешено сделать на любом этаже. Санузел у входа выполняет роль гостевого, запасного. Если раньше в нем помещался только унитаз и, в лучшем случае, раковина, то теперь он стал больше: никто не будет стоять в очереди, чтобы принять душ.
  3. Мы можем увеличить весь фронт кухни на ширину коридора.

В итоге получаем не стандартную угловую кухню, а аж четырех-стороннюю.  4 секции, включая полуостров с полубарными стульями и витрину с подсветкой.Центр квартиры остается полностью свободным для движения в любом направлении.

Количество коридоров минимально, мы используем всю площадь.

Планировка кухни-гостиной позволяет комфортно перемещаться между техникой и разделочными поверхностями, потому что мы вынести стол, всю обеденную зону в гостиную, а саму гостиную сдвинули и увеличили за счет коридоров.

Из прихожей мы сразу попадаем в открытое свободное пространство с диванной зоной. Можно повернуть налево и попасть в зону кухни и столовой или пройти дальше в закрытую приватную часть, в которой расположены спальня, детская и семейный санузел.

Вид от телевизора на гостиную и столовую. Слева проход на кухню.
Вид от телевизора на гостиную и столовую. Слева проход на кухню.

На кухне мы заняли дальнюю стену под высокие шкафы и объемный холодильник, а все рабочие поверхности остаются в спрятанной левой части.

Рабочая зона кухни: плита и мойка спрятаны, и их из гостиной не видно, потому что кухня осталась на своем месте.

Всегда проблема, если у вас какая-то грязная посуда стоит на столешнице, вы не успели ее убрать. Но если все это находится в дальней нише, то не мешает.

Вид на кухню
Вид на кухню

Кухня дополнительно изолирована с помощью полуострова с барной зоной, в него встроен винный холодильник. Эта низкая полубарная зона, она такой же высоты как и вся столешница развернута не лицом к кухне как обычно, а для сидящего за ней человека лицом в гостиную.

Детали кухонной столешницы
Детали кухонной столешницы

Можно сесть с чашкой кофе утром или с ноутбуком, видно телевизор, видно камин, можно расположить большую компанию гостей, которые будут общаться вместе.

С внешней стороны есть секции невидимки с хранением, а со стороны кухни находится ниша под ноги, поэтому полубарная зона может просто превращаться в продолжение рабочей зоны кухни, она той же высоты 90 см из того же керамогранита.

Вид из кухни на проход между столовой (слева) и гостиной справа. Между ними расположено фортепьяно.
Вид из кухни на проход между столовой (слева) и гостиной справа. Между ними расположено фортепьяно.

Можно присесть, что-то нарезать и смотреть фильм с семьей. Но если мы смотрим на кухню из гостиной, то видим только кусок полуострова с интересным подвесным светильником и витрину с подсветкой, те некий парадный вход на кухню, а все остальное спрятано.

Обеденный стол
Обеденный стол

Большой семейный стол из спилов дерева залитых эпоксидкой  и отдельно зона гостиной, стол интересный, можно увидеть  кольца на спилах, при этом он хорошо вписывается в стиль нео-классика, который получился в зоне столовой.

Диван ориентирован на телевизор и паровой камин. Телевизор тоже находится и визуально растворяется на более темной стене.  Между диваном и столом остается комфортный проход, чтобы подойти к пианино.

Вид с дивана на телевизор. Справа проход в прихожую, слева - вход в приватную часть со спальнями.
Вид с дивана на телевизор. Справа проход в прихожую, слева - вход в приватную часть со спальнями.

Пианино встроено в стеллаж выполненный по нашему дизайну. В этом проекте, как и в других, все заказные позиции, их дизайн мы разрабатывали сами.

Вид при выходе из прихожей
Вид при выходе из прихожей

И еще один основной, открытый стеллаж из ЛДСП под орех находится напротив. У него есть 1 секрет.

В нижних открытых секциях расположена библиотека.При этом полки имеют сложную современную композицию, а весь стеллаж похож на яркое деревянное панно. Он становится центром всей композиции. 

Стеллаж, над которым скрыт кондиционер
Стеллаж, над которым скрыт кондиционер

В верхней секции можно увидеть закрытый фасад с прорезями, за ним спрятан кондиционер. Он не мешает визуально, при этом функционирует,  можно спокойно открыть дверцы для обслуживания.

Стеллаж, как и вся заказная мебель, спроектирован нашими архитекторами в рамках дизайн-проекта
Стеллаж, как и вся заказная мебель, спроектирован нашими архитекторами в рамках дизайн-проекта

Возвращаясь к дизайну и цветовой гамме.

Еще из прихожей  мы начинаем двигаться вдоль куба с встроенным стеллажом и санузлом внутри, и только потом видим кухню.

Этот куб с стеллажом является доминантой в интерьере, он интересного препыленного зеленого оттенка, и такого же оттенка наш архитектор сделал короб между двумя частями кухни, от него здесь не избавиться.

Поэтому известный прием в дизайне, если что-то не можешь скрыть, подчеркни. 

"Куб" - центр композиции, в интерьере он почти полностью зеленый.
"Куб" - центр композиции, в интерьере он почти полностью зеленый.

Стеллажи вокруг тв-зоны
Стеллажи вокруг тв-зоны

Стиль - живая новая эклектика

Здесь и элементы классики в виде отдельных стен с молдингами, сочетание современного и классического света, ультра-современной кухни и состаренного декора, плюс важные, памятные для заказчиков  вещи. Максимально живая квартира для реальной жизни, которая построена прежде всего на композиции, архитектурном подходе к пространству, работе с объемами. 

Что мне лично нравится в подобном подходе, это что дизайн легко меняется с помощью декора. Например, для съемки подобрали более яркие предметы, но можно вернуться и к спокойной гамме, к проекту.

За годы жизни в интерьере все же хочется иметь возможность изменить его без существенных затрат просто за счет мелкого текстиля или перекраски небольших акцентных фрагментов стены. Вопрос одного дня.

Вид от телевизора на основное помещение
Вид от телевизора на основное помещение

Детская озонирована на основную зону и мини-гостиную
Детская озонирована на основную зону и мини-гостиную

Детская разделена визуально на 2 части. Ближе к окну находится рабочее место и кровать, а ближе ко входу хранение и диванчик, те получается отдельная небольшая гостиная для ребенка, и гостевое спальное место на диване, которое отделено пропускающим свет стеллажом.

-17
Весь верхний ярус под потолком занят антресольным хранением, потому что в любой детской всегда есть книжки, игрушки, которыми уже не пользуются или временно не пользуются.

Спальня

По просьбе заказчика сделана максимально спокойная с возможностью изменять ее настроение за счет текстиля. Для съемки наши девушки архитекторы собрали довольно яркий вариант, но есть он надоест, то можно просто заменить чехлы на подушках, и она станет спокойнее с акцентом на темные шторы.

Спальня хозяев
Спальня хозяев

Спальня хозяев
Спальня хозяев

В квартире 2 санузла:

В принципе стандартного размера. Здесь куча разных функциональных полочек и шкафчиков и в том числе в мокрой зоне. Можно разместить всю косметику, но при этом ее не видно. Бойлер спрятан так же в шкафу.

Мы использовали то же сочетание цветов и акцентных материалов. Серая плитка под бетон и камень и акцент на плитке и лдсп цвета орех. Дерево всегда добавляет уюта, а серый служит просто фоном.

Санузел рядом с прихожей
Санузел рядом с прихожей

Семейный санузел
Семейный санузел

Полный видео-обзор проекта с освещением, эскизами и интересными деталями по ссылке: https://dzen.ru/video/watch/665dcefc6e1da9074c9bc5fd

Если интересно посмотреть, как проходит такая подготовка, расстановка декора, фото До и после, как меняется интерьер в процессе, то я выложу фото и еще пару полезных материалов в наш канал в Телеграм, переходите по ссылке под видео или сохраняйте код, чтобы присоединиться. Там же выложу цвета, которые использовались в проекте.

Если вам требуется разработка дизайн-проекта или моя личная консультация с разбором планировки и  доработкой  дизайна, то обращайтесь, все наши контакты в профиле.

До встречи!