Найти в Дзене
Лесстрой Портал

Дом из оцилиндрованного бревна № 150 стоимостью от 1 655 600 рублей

Дом общей площадью 121м2 , стоимостью 1 655 600 рублей, от нашего подрядчика ПСК ДревПроектСтрой Ссылка на проект: https://lesstroy.net/user/8559/project/81494/ Дом из ОЦБ ЕВ D-240мм: 121,40м². Размеры 10500 х 9000. Проекты деревянных бань и домов, производимые компанией ООО ПСК «Древпроектстрой» могут быть исполнены из следующих видов древесины: Проектируем в программах К3Коттедж. Производства ООО ПСК «ДревПроектСтрой». Фундамент: обсуждается на этапе проектирования. Стеновой комплект: 1. Проектные чертежи в стадиях Эскизный и Конструктивный разделы. 2. Изготовление оцилиндрованного бревна на высокоточном оборудовании на производственной площадке компании. 3. Заводское изготовление: - Нарезка чашек по проекту, доставляется полностью готовый стеновой комплект конструктор. - Транспортировочная обработка торцов. - Заводская упаковка в непрозрачную пленку (для клееного бруса), для ОЦБ стяжка пэт. -Сортировка и раскладка бруса по венцам для сборки комплекта. 4. Доставка сруба с помощью сп

Дом общей площадью 121м2 , стоимостью 1 655 600 рублей, от нашего подрядчика ПСК ДревПроектСтрой

Ссылка на проект: https://lesstroy.net/user/8559/project/81494/

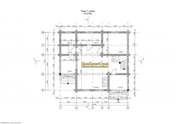
Дом из ОЦБ ЕВ D-240мм: 121,40м². Размеры 10500 х 9000.

  • 1 этаж 79,20м². Терраса 7,50м², Терраса 7,50м², Гостиная кухня 38,70м², Тамбур 2,80м², Котельная 3,90м², С/у 6,60м², Комната 12,20м².
  • 2 этаж 42,20м². Второй свет, Зал 17,80м², Спальня 12,20м², Комната 12,20м².

Проекты деревянных бань и домов, производимые компанией ООО ПСК «Древпроектстрой» могут быть исполнены из следующих видов древесины:

  • Оцилиндрованное бревно естественной и камерной сушки Ø 180-400 мм, длинна до 9000мм.
  • Эркер с косыми чашами (30,45,60 градусов)
  • Сверловка под шканты и электропроводку
  • Фрезеровка паза под обсаду
  • Фрезеровка (лыски) под наличник
  • Ручная рубка
  • Профилированный брус естественной и камерной сушки.
  • Клееный брус.
  • Ручная рубка.
  • Карельская сухостойная сосна «Кело».

Проектируем в программах К3Коттедж.

Производства ООО ПСК «ДревПроектСтрой».

Фундамент: обсуждается на этапе проектирования.

Стеновой комплект:

1. Проектные чертежи в стадиях Эскизный и Конструктивный разделы.

2. Изготовление оцилиндрованного бревна на высокоточном оборудовании на производственной площадке компании.

3. Заводское изготовление:

- Нарезка чашек по проекту, доставляется полностью готовый стеновой комплект конструктор.

- Транспортировочная обработка торцов.

- Заводская упаковка в непрозрачную пленку (для клееного бруса), для ОЦБ стяжка пэт.

-Сортировка и раскладка бруса по венцам для сборки комплекта.

4. Доставка сруба с помощью специальной спецтехники евро фура для участков со свободным проездом.

5. Разгрузка сруба на месте застройки. Раскатывание и подготовка бревен для сборки сруба.

6. Сборка сруба опытной и квалифицированной бригадой.

Фундамент, кровля с чистовым кровельным покрытием, внутренняя отделка, парная, и душевая, остекление, инженерная часть рассчитываются отдельно.

Стоимость изготовления стенового комплекта из оцилиндрованных бревен ЕВ D-240мм: 1 655 600,00 рубля.

Мы строим дома из экологически чистых материалов Вологодской и Архангельской областей, созданных самой природой по всей стране, и за ее пределами.

Возможны любые изменения в проекте.