Найти в Дзене

Проект одноэтажной бани 108 м2 с хаммамом

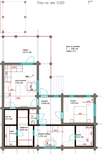
Одноэтажная баня из клееного бруса площадью 108 м2 — это не просто место для отдыха и оздоровления, но и настоящий архитектурный шедевр, который гармонично вписывается в ландшафт. С двускатной крышей, придающей зданию элегантность и стиль, баня становится домом, где уют и комфорт объединяются с природными материалами. Особое внимание стоит уделить фронтонам, выполненным под имитацию бруса — этот элемент не только подчеркивает природный облик здания, но и придает ему уникальность. Возможности колористики крыши и наружных стен открывают безграничные перспективы для воплощения индивидуальных идей. Яркие и насыщенные оттенки или более спокойные и натуральные — каждый выбирает именно тот вариант, который соответствует его вкусу и стилю. Банный комплекс необычный, в нём есть как стандартные для бани помещения, так и особенные: · Вход и терраса Проект начинается с продуманного входа, который осуществляется через просторную террасу. Эта зона, оформленная с учетом современных тенденций, создаё

Одноэтажная баня из клееного бруса площадью 108 м2 — это не просто место для отдыха и оздоровления, но и настоящий архитектурный шедевр, который гармонично вписывается в ландшафт. С двускатной крышей, придающей зданию элегантность и стиль, баня становится домом, где уют и комфорт объединяются с природными материалами. Особое внимание стоит уделить фронтонам, выполненным под имитацию бруса — этот элемент не только подчеркивает природный облик здания, но и придает ему уникальность. Возможности колористики крыши и наружных стен открывают безграничные перспективы для воплощения индивидуальных идей. Яркие и насыщенные оттенки или более спокойные и натуральные — каждый выбирает именно тот вариант, который соответствует его вкусу и стилю.

Банный комплекс необычный, в нём есть как стандартные для бани помещения, так и особенные:

-2

· Вход и терраса

Проект начинается с продуманного входа, который осуществляется через просторную террасу. Эта зона, оформленная с учетом современных тенденций, создаёт отличное место для отдыха на свежем воздухе. Она защищает от любых погодных условий и создает уютную атмосферу.

· Тамбур-прихожая и санузел

За террасой располагается тамбур-прихожая, которая создаёт комфортный переход из улицы в дом. Это помещение играет важную роль в поддержании температуры в бане и способствует сохранению чистоты в жилых зонах. Рядом с прихожей удобно расположен санузел, который создаёт условия для гигиенических процедур и создает дополнительный комфорт.

· Техническое помещение

Техническое помещение, предусмотренное в проекте, служит для размещения систем отопления и водоснабжения, а также хранения необходимых принадлежностей и оборудования. Это помогает поддерживать порядок в других помещениях и создавать бесперебойную работу всех коммуникаций.

· Кухня-гостиная и спальня

В центре бани находится кухня-гостиная, где гости собираются для общения, готовки и наслаждения трапезой. Просторная открытая планировка создаёт свободное перемещение между кухней и гостиной, создавая атмосферу домашнего уюта. Спальня, расположенная рядом, предлагает удобное место для отдыха и восстановления сил после насыщенного дня. Современные решения позволят создать комфортные условия для сна и даже добавить место для хранения. Из кухни-гостиной открывается выход на уютную открытую террасу.

· Банный комплекс

Немаловажной частью проекта является банный комплекс, который включает комнату отдыха, моечную, парную и хаммам. Комната отдыха спроектирована так, чтобы предоставить владельцам возможность расслабиться после парной, с комфортом выпить чай или почитать книгу. Моечная и парная позволяют насладиться всеми традициями русского банного ритуала, а хаммам предлагает уникальный опыт восточного отдыха. Такой комплекс не только способен удовлетворить потребности самых требовательных гостей, но и станет местом для релаксации и восстановления сил.

Одноэтажная баня из клееного бруса — это не просто здание для отдыха, а комплексное пространство, в котором продуманы все детали для комфортного пребывания. Наличие террасы, различных функциональных помещений и полноценного банного комплекса делает этот проект привлекательным для тех, кто ценит качество и комфорт. Современные технологии и материалы, такие как клееный брус, создают долговечность и энергоэффективность, что является важным аспектом в строительстве бань.

Понравилась баня? Заполните форму по ссылке, мы свяжемся с Вами и вышлем презентацию проекта.