Найти в Дзене
DIVAN.RU

Евродвушка 47 кв.м с красным санузлом и прихожей

Фишкой этой квартиры стал цвет — здесь его использовали щедро. Посмотрим, что получилось. Объект: евродвушка 47 кв.м, г. Москва, Бутырский вал
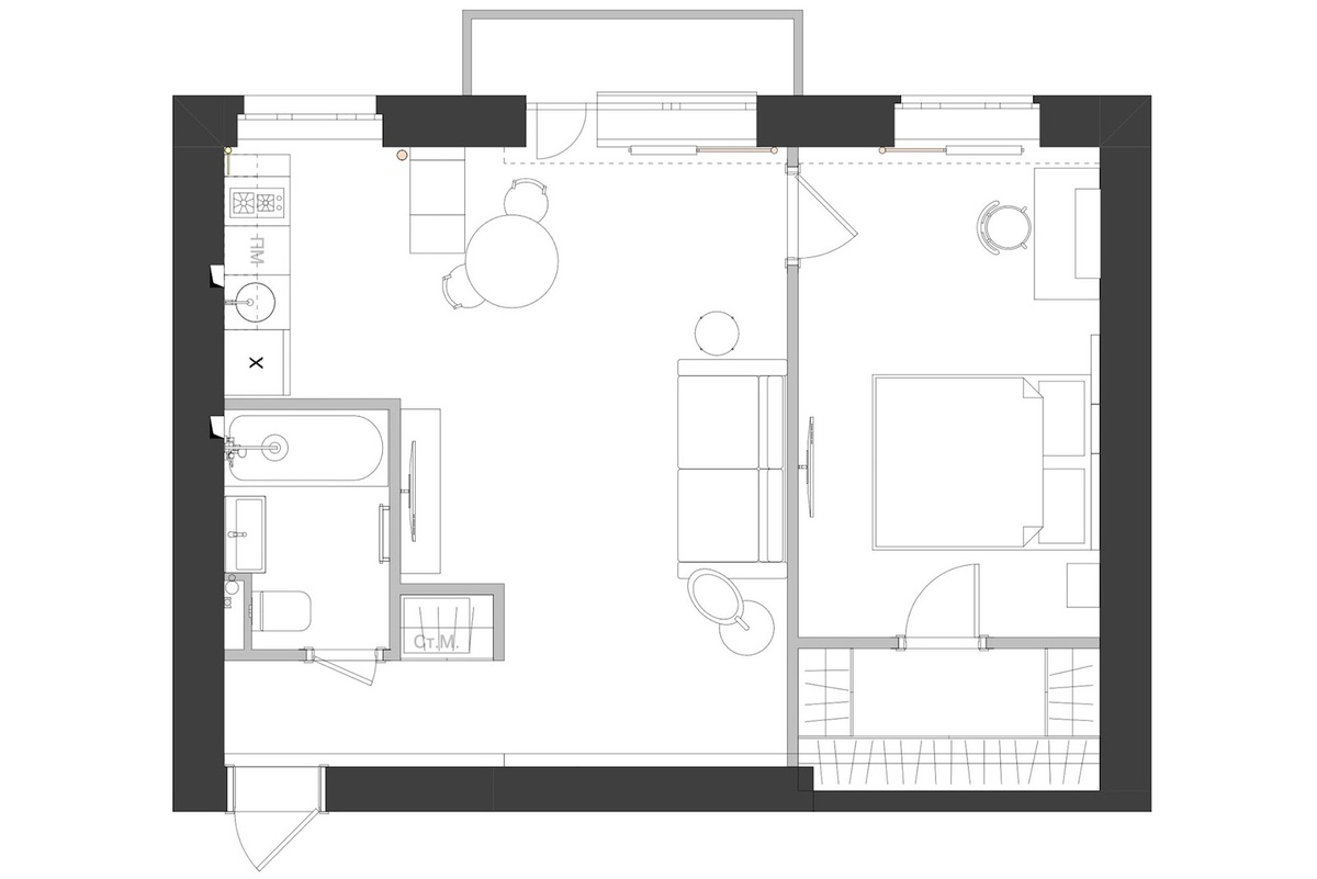
Автор проекта: дизайнер Юлия Гришина, автор фото: Егор Кодяков По задумке застройщика это была типовая двушка с отдельной кухней, гостиной и спальней. Владелец просил объединить кухню с гостиной, а в спальне обустроить гардеробную. В ходе перепланировки стену между кухней и гостиной демонтировали. В квартире газ, поэтому под натяжным потолком предусмотрели закладные для монтажа стеклянной перегородки в случае необходимости. Также убрали стену между гостиной и прихожей. Дверь в спальню перенесли ближе к окну. В прихожей сделали нишу для постирочного блока. По новому плану в квартире есть прихожая, просторная кухня-гостиная, спальня с гардеробной, совмещенный санузел. В квартире единым контуром уложен ламинат. Цельность пространства подчеркнута отсутствием двери между прихожей и гостиной и единым цветом стен в гостиной и спальне. Нитью через весь
Оглавление

Фишкой этой квартиры стал цвет — здесь его использовали щедро. Посмотрим, что получилось.

Дизайн-проект Юлии Гришиной, автор фото Егор Кодяков
Дизайн-проект Юлии Гришиной, автор фото Егор Кодяков

Объект: евродвушка 47 кв.м, г. Москва, Бутырский вал
Автор проекта: дизайнер Юлия Гришина, автор фото: Егор Кодяков

По задумке застройщика это была типовая двушка с отдельной кухней, гостиной и спальней. Владелец просил объединить кухню с гостиной, а в спальне обустроить гардеробную.

В ходе перепланировки стену между кухней и гостиной демонтировали. В квартире газ, поэтому под натяжным потолком предусмотрели закладные для монтажа стеклянной перегородки в случае необходимости. Также убрали стену между гостиной и прихожей. Дверь в спальню перенесли ближе к окну. В прихожей сделали нишу для постирочного блока.

По новому плану в квартире есть прихожая, просторная кухня-гостиная, спальня с гардеробной, совмещенный санузел.

В квартире единым контуром уложен ламинат. Цельность пространства подчеркнута отсутствием двери между прихожей и гостиной и единым цветом стен в гостиной и спальне. Нитью через весь интерьер проходят красные акценты в отделке и мебели.

Кухня-гостиная

Владелец квартиры просил спроектировать угловую кухню, но она не «вставала» выделенную под нее нишу. Альтернативой стал модульный гарнитур с полуостровом. За фасадами под потолок предусмотрено достаточно мест для хранения. Из техники на кухне есть встроенный холодильник, посудомойка на 45 см, варочная панель на три конфорки, вытяжка и духовой шкаф.

Прием: часть стены над фартуком выкрасили в акцентный красный. Такой же оттенок использовали для стен в прихожей и в санузле. Тадем ритмичной плитки и яркой краски привлекает внимание и разбавляет монотонность серых фасадов.

В полуострове предусмотрели выдвижные ящики для приборов, кухонной утвари и мелкой техники. Его можно использовать как дополнительную рабочую поверхности или барную стойку.

Обратите внимание на люстру с поворотным механизмом — она может подсвечивать и стол, и остров.

В гостиной поставили диван Арил от divan.ru. Он сочетает в себе функции удобного дивана и полноценной полуторной кровати.

Удобнейшая модель за счет своей глубины: можно комфортно залезть на сиденье с ногами. А еще его можно раскладывать, — рассказывает дизайнер Юлия Гришина. — Смело заявляю, Арил — мой фаворит в бюджетных проектах».

На фото: диван Арил, divan.ru от 44 990₽* >>

-7

▶️ Этот диван сейчас можно купить со скидкой до 15 000₽*. Превратите дом мечты в реальность меняйтесь и меняйте интерьер вместе с divan.ru >>

Напротив — зона ТВ. Стену здесь оформили декоративными гипсовыми панелями. Фрезеровкой на фасадах тумбы поддержали вертикали панелей и драпировку на шторах — вертикальные линии словно вытягивают пространство вверх, визуально приподнимая потолок.

Кстати: подвесную ТВ-тумбу Енссон тоже покупали на divan.ru. Крепить к стене ее не стали — на маркетплейсе подобрали графичные черные опоры.

На фото: ТВ-тумба Енссон-1 Grafit от 15 990₽* >>

Спальня

В спальне предусмотрели только необходимое: кровать, консоль (она же — туалетный столик), мягкий акцентный стул, прикроватные тумбы. Часть этой комнаты отдали под отдельную гардеробную.

Обратите внимание: изголовье кровати выполнено из мягких стеновых панелей. Их прикрепили к стене, а кровать без изголовья приставили рядом.

Прихожая

Стены и напольный плинтус в прихожей окрасили в насыщенный красный. Уравновесили цвет с помощью белых дверей и потолка.

Прихожая и санузел — те пространства, где можно смело использовать насыщенные цвета, — рассказывает дизайнер. — Это помещения больше всего подходят для экспериментов, так как ими не пользуются постоянно.
Дизайн-проект Юлии Гришиной, автор фото Егор Кодяков
Дизайн-проект Юлии Гришиной, автор фото Егор Кодяков

Напротив входной двери повесили крючки для повседневной одежды и сумок. Рядом — большое зеркало и мягкий пуф. Далее за санузлом сделали нишу, которую будущие жильцы будут использовать по своему-усмотрению: как кладовую, постирочную, мини-гардеробную.

Санузел

Санузел стал продолжением яркой прихожей. Стены в мокрой зоне облицевали белой плиткой, остальные покрасили влагостойкой красной краской. Белая сантехника и полотенцесушитель поддержали цветовое решение.

Прием: плитку для ванны использовали одного размера. Чтобы сделать пространство более динамичным, «нарисовали» мелкоформатную плитку. Цвет затирки крупноформатной плитки подобрали максимально близким к «нарисованному».

Дизайн-проект Юлии Гришиной, автор фото Егор Кодяков
Дизайн-проект Юлии Гришиной, автор фото Егор Кодяков

Люк доступа к коммуникациям закрыли оригинальным постером.

=========
Оцените интерьер в комментариях
, а если материал понравился — не забудьте поставить лайк.

🖤divan.ru — не только блог про интерьеры, но и производитель доступной дизайнерской мебели. Ищите новые идеи и переходите на сайт, чтобы воплотить их в жизнь.

*Цены актуальны на момент публикации статьи