Найти в Дзене

Поставить дизайнерские светильники и ничего не забыть: опыт владельца загородного дома

В статье расскажем, как помогли нашему заказчику учесть все нюансы при организации освещения в его частном доме: от параметров светильников и плана их расстановки до гармоничного сочетания с отделкой деревом в интерьере. Заказчик — владелец загородного дома в Московской области. После того, как он достроил на участке дополнительное здание с зоной отдыха, летней кухней, отдельной террасой и бильярдом, возник вопрос: «Как создать атмосферу уюта в помещениях? Что для этого можно сделать?». В поисках ответов он изучал информацию в интернете и в какой-то момент понял, что добиться этого можно при помощи дизайнерского света. Заказчик принялся искать разные варианты и попал на наш сайт, в раздел «Светильники для загородного дома». Изучив ассортимент и соотнеся с планом помещения, он остановился на трех видах светильников: Оставалось правильно расставить светильники и отправить нам заявку, что заказчик и сделал. Дополнительные требования, которые важно было учесть при подборе светильников:
Оглавление

В статье расскажем, как помогли нашему заказчику учесть все нюансы при организации освещения в его частном доме: от параметров светильников и плана их расстановки до гармоничного сочетания с отделкой деревом в интерьере.

Что важно было учесть

Заказчик — владелец загородного дома в Московской области. После того, как он достроил на участке дополнительное здание с зоной отдыха, летней кухней, отдельной террасой и бильярдом, возник вопрос: «Как создать атмосферу уюта в помещениях? Что для этого можно сделать?». В поисках ответов он изучал информацию в интернете и в какой-то момент понял, что добиться этого можно при помощи дизайнерского света.

Заказчик принялся искать разные варианты и попал на наш сайт, в раздел «Светильники для загородного дома». Изучив ассортимент и соотнеся с планом помещения, он остановился на трех видах светильников:

  • Кольцеобразные светильники, в которых светодиоды располагаются по окружности. Они помогли бы создать отличный основной свет над зоной отдыха, готовки и бильярдной и смотрятся в целом гармонично.
  • Угловой светильник, напоминающий по форме букву «Г». Он должен был располагаться над выходом на террасу.
  • Профильные светильники, которые можно было бы смонтировать непосредственно на открытой террасе. При этом их можно изготовить под заказ любой длины, в зависимости от потребности человека.

Оставалось правильно расставить светильники и отправить нам заявку, что заказчик и сделал.

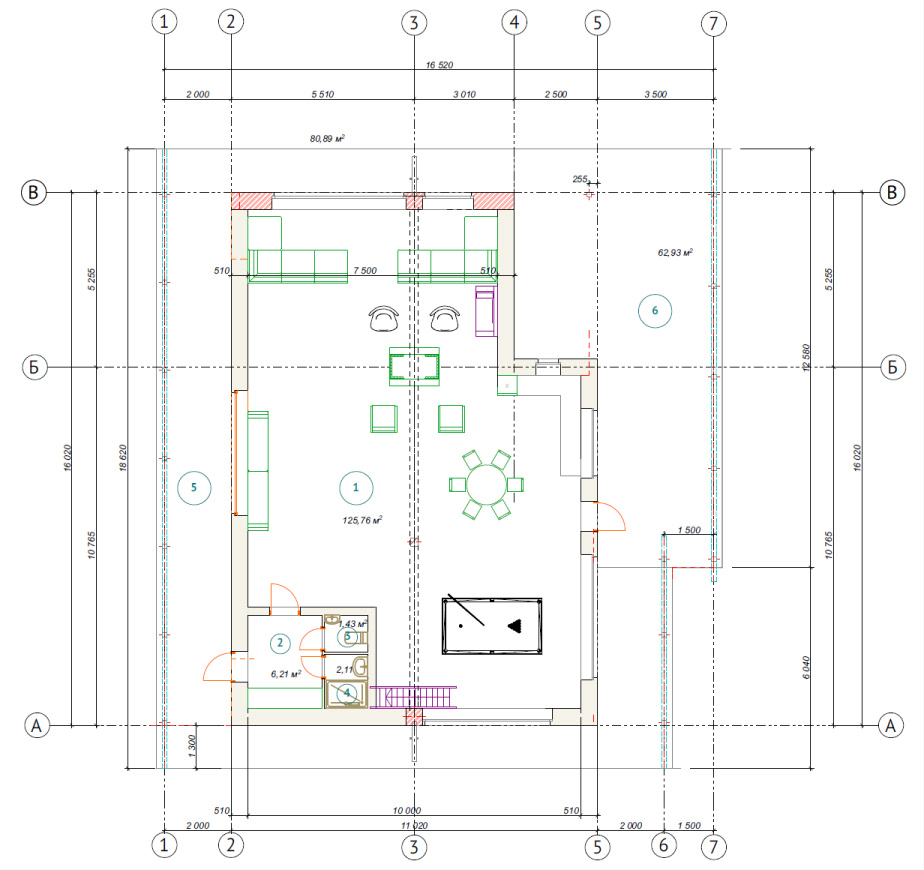
Общий план строения с основными элементами: на 125 квадратных метрах есть санузел, бильярд, зона отдыха и готовки
Общий план строения с основными элементами: на 125 квадратных метрах есть санузел, бильярд, зона отдыха и готовки

Дополнительные требования, которые важно было учесть при подборе светильников:

  • Цвет корпуса. Постройка выполнена из дерева, поэтому светильники должны при дневном свете отлично вписываться в общий стиль. Например, белый корпус точно не подошел бы.
  • Цветовая температура. Заказчику очень понравился внешний вид террасы в ночное время, которая освещается светильниками с температурой 3000 К. Освещение выглядит очень лампово и уютно.
  • Зеленая зона. Еще заказчик планировал подвесить горшки с растениями над зоной отдыха при помощи каркасной рамки, для еще большей атмосферности. В идеальном случае светильники должны были располагаться там же под потолком и сочетаться с этим «зеленым уголком».
  • Защищенность. Те светильники, которые будут монтироваться на открытой террасе, должны иметь степень защиты IP65 и выдерживать перепады температуры.

С задачей заказчика все было понятно. Однако когда мы увидели его вариант расстановки светильников, возникли некоторые сомнения.

Красным выделены три вида светильников, которые заказчик расставил на плане помещения. При первом взгляде нашего светотехника стало ясно, что их можно расположить более оптимально
Красным выделены три вида светильников, которые заказчик расставил на плане помещения. При первом взгляде нашего светотехника стало ясно, что их можно расположить более оптимально

Почему мы провели светотехнический расчет

Объяснив заказчику нюансы, мы договорились о том, что проведем дополнительно светотехнический расчет. Это важно по некоторым причинам:

  1. Светильники должны распространять свет так, чтобы освещение каждой зоны помещения было функциональным. Например, лучше расположить светильники строго над бильярдным столом — и потребуется их как минимум два. То же самое касается зоны отдыха и готовки, где итоговая освещенность должна быть достаточной для комфорта жильцов. Текущее расположение светильников не соответствовало этому функционалу.
  2. Шесть профильных светильников на террасе, напротив, в выбранной заказчиком конфигурации дадут слишком много света. В результате через большие окна это может напрягать глаза и давать некрасивые блики. Лучше было бы уменьшить их количество и расставить по-другому.
  3. В целом светотехнический расчет позволит быть уверенным, что результат освещения будет соответствовать ожиданиям. Тем более у нас это — бесплатная услуга.
Новый план расстановки светильников из светотехнического расчета, с конкретными значениями освещенности в люксах в каждой зоне помещения. Заказчик согласился с нашим вариантом.
Новый план расстановки светильников из светотехнического расчета, с конкретными значениями освещенности в люксах в каждой зоне помещения. Заказчик согласился с нашим вариантом.

Какие выбрали светильники

Оставалось подобрать конкретные модели светильников, с учетом нюансов, которые изначально обозначил заказчик. В результате мы предложили:

  • Шесть светильников FS-TG-D диаметром 1000 мм и мощностью 100 Вт.
  • Один угловой светильник FS-TR-D, со сторонами 2 и 1,5 метра, мощностью 36 Вт.
  • Пять профильных светильников FS-MAN-VBD длиной 2 метра и мощностью 100 Вт со степенью защиты IP и алюминиевым корпусом. Это даст хороший теплоотвод на такой мощности и позволит светодиодам проработать как можно дольше.

Но кроме этого были и другие тонкости, которые важно было учесть.

1. Цвет корпуса. После нескольких этапов обсуждения мы остановились на том, что корпус светильников должен быть выкрашен в цвет RAL 8017 — шоколадно-коричневый. Он как раз отлично сочетался с деревянными поверхностями в конкретном интерьере.

К сожалению, на фотографии плохо виден цвет корпуса — но он отлично сочетается с отделкой. В плане крепежа остановились на самом простом варианте на саморезах через стандартную крепежную скобу
К сожалению, на фотографии плохо виден цвет корпуса — но он отлично сочетается с отделкой. В плане крепежа остановились на самом простом варианте на саморезах через стандартную крепежную скобу

2. Диммирование. Дополнительно обсудили с заказчиком сценарии использования освещения. Выяснилось, что к нему часто будут приходить гости на шашлыки или поиграть в бильярд. Хочется, чтобы в этот момент света было побольше и все чувствовали себя комфортно. Но также владелец дома любит отдыхать в одиночестве, проводя время за чтением книги — в этот момент света хочется поменьше, чтобы создавалась более интимная атмосфера. Мы предложили отличное решение — использовать диммирование: можно регулировать световой поток и настраивать освещение, в зависимости от ситуации.

Фигурные светильники в виде кольца, располагающиеся над зоной отдыха возле окна. При помощи диммирования их свет можно легко отрегулировать под себя. На фото светильники сразу после монтажа, поэтому с них не успели снять защитную пленку. Монтаж производится на тросах
Фигурные светильники в виде кольца, располагающиеся над зоной отдыха возле окна. При помощи диммирования их свет можно легко отрегулировать под себя. На фото светильники сразу после монтажа, поэтому с них не успели снять защитную пленку. Монтаж производится на тросах

3. Стабилизированный мох. Четыре светильника должны были располагаться в «зеленой зоне», и их важно было гармонично туда вписать. Мы предложили оригинальное решение: установить посредине кольцеобразных светильников так называемый стабилизированный мох. Грубо говоря, это настоящее растение, но обработанное особым образом: природный сок замещается раствором на основе глицерина. За таким мхом не надо ухаживать годами, и при этом он будет радовать свежим внешним видом.

Так выглядит один из светильников со стабилизированным мхом. На фотографии слева — монтажная рамка, к которой будут крепиться растения
Так выглядит один из светильников со стабилизированным мхом. На фотографии слева — монтажная рамка, к которой будут крепиться растения

Когда мы приступили к производству, заказчик спросил: «А могу ли я приехать и посмотреть, как вы изготавливаете светильники? У меня уже был негативный опыт с другими подрядчиками. Хочу лично убедиться, что вы не халтурите». Мы были не против и провели заказчику настоящую экскурсию по производству: показали разные этапы, от сборки до тестирования.

Так проходит финальное тестирование профильных светильников. Заказчику понравился наш подход, и он заранее знал, что получит качественную продукцию
Так проходит финальное тестирование профильных светильников. Заказчику понравился наш подход, и он заранее знал, что получит качественную продукцию

Через 14 рабочих дней вся партия из 12 светильников была готова. После отгрузки монтаж выполнил электрик заказчика в течение нескольких часов — с подключением диммеров также не возникло никаких вопросов.