Найти в Дзене
Лесстрой Портал

Каркасный дом "Турин" стоимостью от 4 649 070 рублей

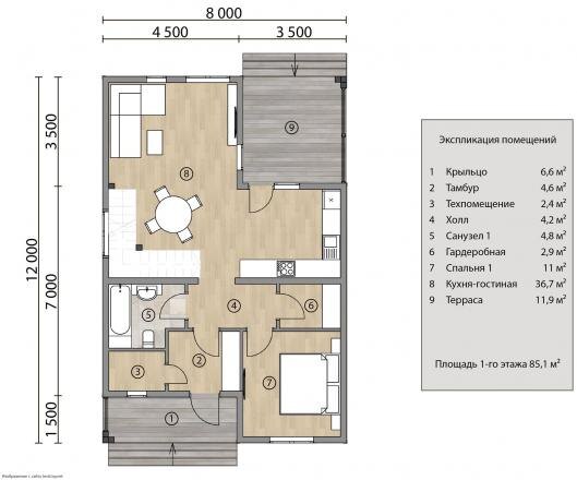
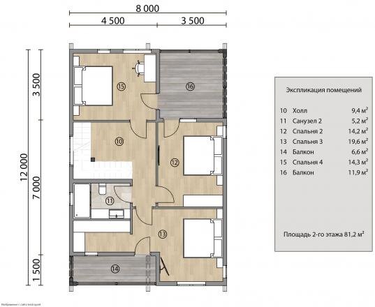
Дом общей площадью 93м2, от нашего подрядчика Канадская Изба, стоимостью от 4 649 070 рублей Ссылка на проект: https://lesstroy.net/user/9988/project/74535/ Цокольное перекрытие Несущие стены Межэтажное перекрытие Внутренние перегородки Высоты Кровля Окна Двери

Дом общей площадью 93м2, от нашего подрядчика Канадская Изба, стоимостью от 4 649 070 рублей

Ссылка на проект: https://lesstroy.net/user/9988/project/74535/

Цокольное перекрытие

  • Нижняя обвязка - Обрезной брус 100х150мм
  • Лаги пола - 50х200мм, усиленные лаги
  • Черновой пол - Обрезная доска (1 сорт) 20-25 мм
  • Утепление - 200мм
  • Чистовой пол - строганная шпунтованая доска 28 мм

Несущие стены

  • Каркас внешних стен - 40х150мм усиленный каркас
  • Внешняя отделка стен - Вагонка
  • Утепление внешних стен - 150 мм
  • Внутренняя отделка стен - Вагонка
  • Потолок натяжной

Межэтажное перекрытие

  • Лаги второго этажа - Обрезной брус 45х190, усиленные лаги
  • Утепление - 150мм
  • Финишное покрытие - Строганная шпунтованая доска 28 мм

Внутренние перегородки

  • Доска 40х100/150
  • Внутренняя отделка - Вагонка

Высоты

  • Высота 1-го этажа - 2,5м
  • Высота 2-го этажа - 2,5м

Кровля

  • Стропило 45х190мм камерной сушки
  • Утепление - 150мм (плитный утеплитель)
  • Обрешетка - 25х100мм
  • Контр-обрешетка - 25х50мм по ветрогидроизоляции
  • МЕТАЛЛОЧЕРЕПИЦА (цвет на выбор) В ПОДАРОК!

Окна

  • Оконные конструкции ПВХ REHAU
  • 2-х камерный стеклопакет (3 стекла)
  • Цвет – белый
  • Установка водоотливов под окнами

Двери

  • Входная: Металлическая (производство Россия) с терморазрывом
  • Межкомнатные: Деревянные филенчатые