Найти в Дзене

Одноэтажный проект дома 11х8

Это конструкторское решение, как быстро возвести дом. Им пользуются во всем мире, чтобы уже на заводе сделали львиную часть работы.
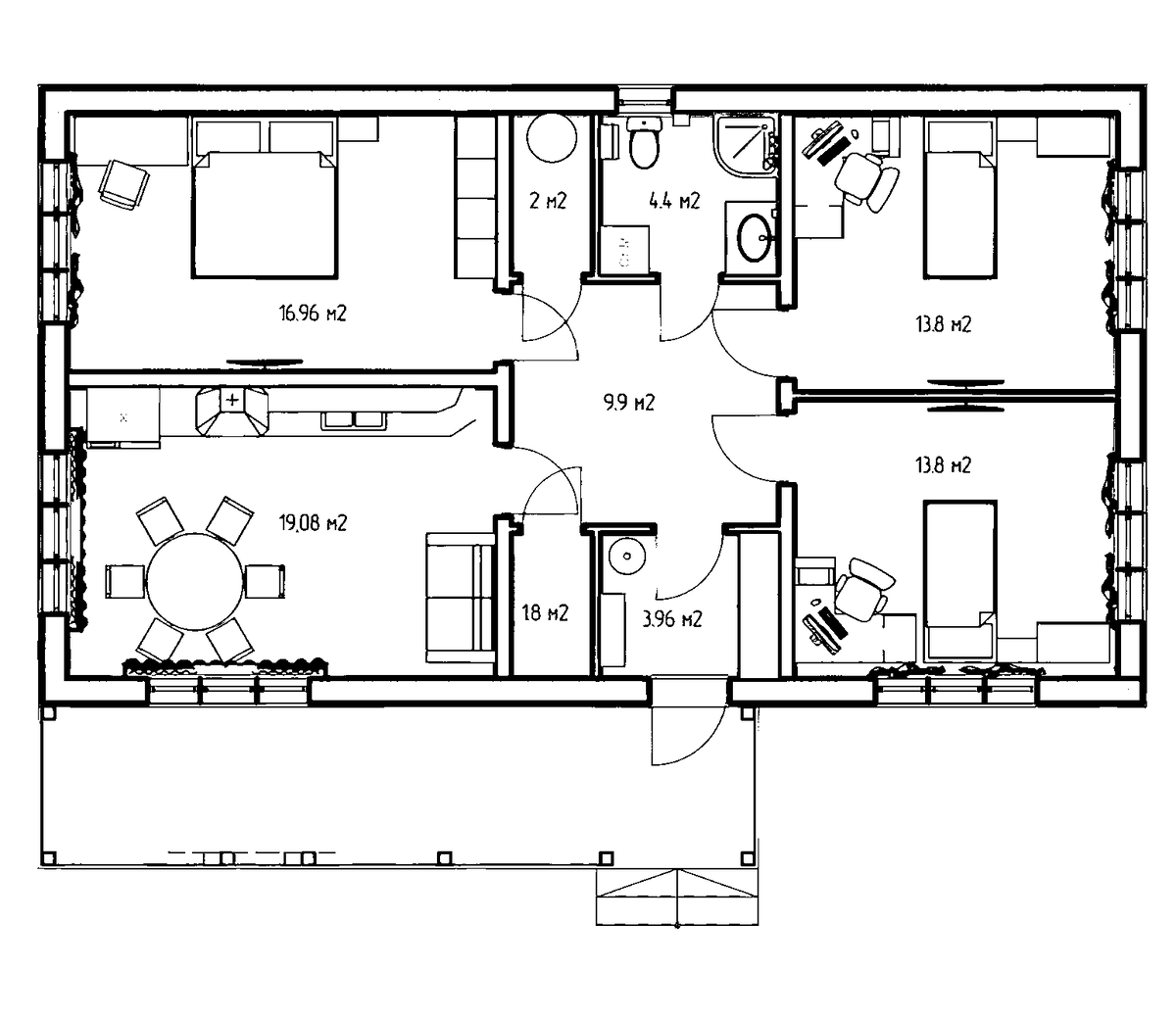
Вот пример трехкомнатного дома. Планировка отличается вместительной двумя вместительными спальнями площадью 17 и 20 квадратных метров, в отдалении с кухней-студией с просторной гостиной, в которой расположен кинотеатр. Таким образом взрослые могут уединится, пока дети спят, не мешая друг другу. Перед входом есть просторная терраса. Там, на свежем воздухе с комфортом могут разместиться более семи человек, так как ее площадь составляет более 20 квадратных метров. И она может быть расширена, т.к. наши проекты могут быть индивидуально доработаны под пожелания клиента.
Консультация БЕСПЛАТНО!
Звоните по телефону 8902-5665-444.
По ценам на домокомплекты, можно узнать на сайте.
#Иркутск #Домокомплекты

Домокомплект

Это конструкторское решение, как быстро возвести дом. Им пользуются во всем мире, чтобы уже на заводе сделали львиную часть работы.
Вот пример трехкомнатного дома.

-2

Планировка отличается вместительной двумя вместительными спальнями площадью 17 и 20 квадратных метров, в отдалении с кухней-студией с просторной гостиной, в которой расположен кинотеатр. Таким образом взрослые могут уединится, пока дети спят, не мешая друг другу.

-3

Перед входом есть просторная терраса. Там, на свежем воздухе с комфортом могут разместиться более семи человек, так как ее площадь составляет более 20 квадратных метров. И она может быть расширена, т.к. наши проекты могут быть индивидуально доработаны под пожелания клиента.

-4


Консультация БЕСПЛАТНО!

Звоните по телефону 8902-5665-444.

По ценам на домокомплекты, можно узнать на сайте.

#Иркутск #Домокомплекты