Добавить в корзинуПозвонить
Найти в Дзене

Как создать оазис в квартире?

Возможно ли создать атмосферу, вдохновленную путешествиями к океану?Можно! А в холодных оттенках? Можно! Сегодня мы расскажем вам о нашем дизайн - проекте, в котором мы вдохновлялись мотивами северного побережья, а в конце вы узнаете, какие элементы декора могут сформировать friendly-пространство, в котором так хорошо и спокойно. И так, перед нами стояла задача создать просторное, минималистичное, общее пространство, но с возможностью уединения для работы и отделения приватной зоны для сна и отдыха. И чтобы оно было эффективное с точки зрения хранения большого количества вещей. Мы учли тот факт, что заказчики – истинные ценители минимализма и осознанного потребления, поэтому в интерьере просто не могло быть случайных вещей. Они очень любят путешествия по уникальным природным местам. Особенно к океану. Это помогает восстановиться после напряженных рабочих будней. Дом для них важное место физического и эмоционального восстановления и полной перезагрузки. Но какой же вызов без трудност

Возможно ли создать атмосферу, вдохновленную путешествиями к океану?Можно! А в холодных оттенках? Можно!

Проект в ЖК "Резиденця композиторов"
Проект в ЖК "Резиденця композиторов"

Сегодня мы расскажем вам о нашем дизайн - проекте, в котором мы вдохновлялись мотивами северного побережья, а в конце вы узнаете, какие элементы декора могут сформировать friendly-пространство, в котором так хорошо и спокойно.

И так, перед нами стояла задача создать просторное, минималистичное, общее пространство, но с возможностью уединения для работы и отделения приватной зоны для сна и отдыха.

И чтобы оно было эффективное с точки зрения хранения большого количества вещей. Мы учли тот факт, что заказчики – истинные ценители минимализма и осознанного потребления, поэтому в интерьере просто не могло быть случайных вещей.

Они очень любят путешествия по уникальным природным местам. Особенно к океану. Это помогает восстановиться после напряженных рабочих будней. Дом для них важное место физического и эмоционального восстановления и полной перезагрузки.

Но какой же вызов без трудностей?

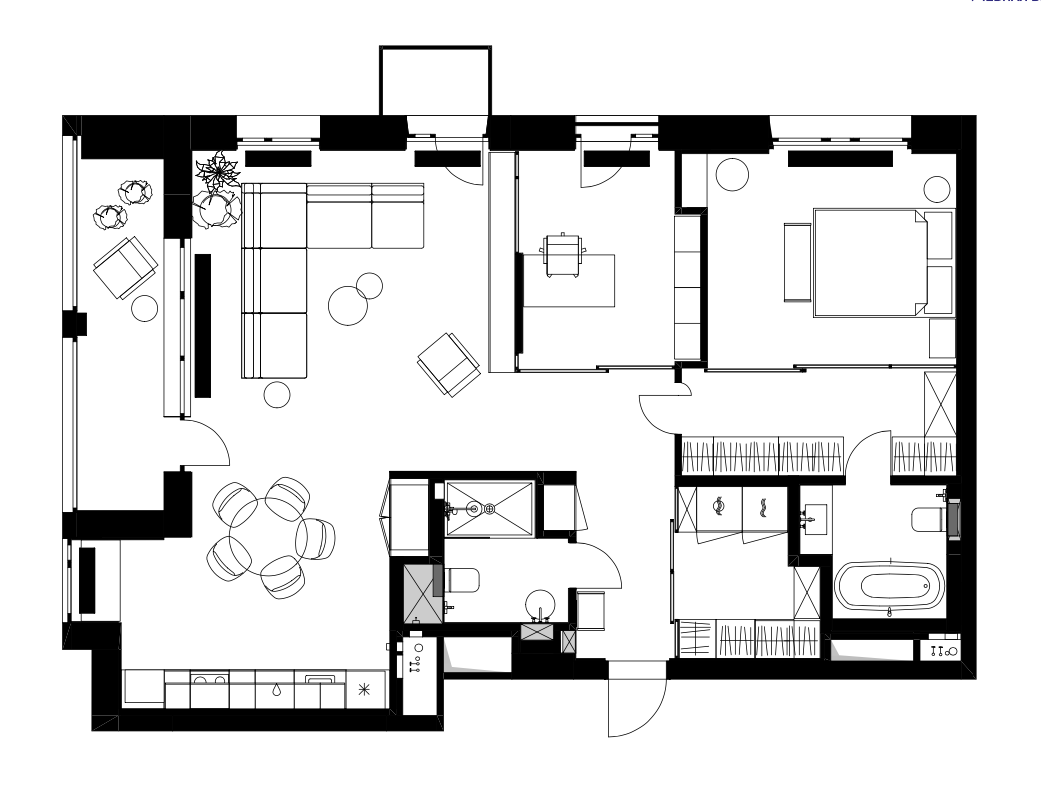
Хотя квартира, расположенная в элитном московском жилом комплексе, имеет площадь почти 100 кв. м, исходный план оставлял желать лучшего: большую ее часть занимали коридоры, отсутствовали технические помещения и вход в хозяйский санузел был очень неудобно расположен. Но наш дизайнер выполнила полную законную перепланировку, сохранив максимально открытое пространство с зонированием на общие и приватные помещения. До минимума сократила проходные зоны, сделала отдельный хозяйственный блок, удобные системы хранения.

Авторская перепланировка
Авторская перепланировка

Вместо глухих стен мы использовала стеклянные перегородки, с помощью которых функционально разделила гостиную и рабочую зону, спальню и гардеробную, прихожую и место хранения верхней одежды.

-3

Таким образом, получилось подвижное, перетекающее пространство, напоминающее природные дюны. Благодаря нишам и встроенным системам удалось разместить большое количество вещей и мелких предметов, не загромождая пространство. Получилось даже спрятать туалет для кота: лишь круглое отверстие в двери выдает его местоположение.

Коридор
Коридор

Тумба под камин в каменном шпоне рифмуется с декором кухонного фартука и столешницы. Большой комфортный диван и высокие тропические растения в кадках вызывают ассоциации с оазисом, где приятно расслабиться после работы.

-5

Через стеклянные перегородки видно рабочее пространство. Оно расположено таким образом, чтобы не разрывалась общая интерьерная композиция, но при этом рабочее место не просматривалось полностью: стол полностью скрыт за стеной, отделанной под скальный камень.

Кабинет
Кабинет

Одним из пожеланий было уйти от холодного офисного стиля в оформлении кабинета, который визуально связан с гостиной. Поэтому сквозь стеклянные перегородки просматривается покрытый микроцементом рабочий стол, формой напоминающий скалистые горы.

Теперь обсудим кухню.

Кухня состоит из двух частей: в линейной комбинации с закрытым хранением размещается вся необходимая кухонная утварь, посуда и крупная техника. В скрытом шкафу – целая станция с техникой для приготовления кофе и других напитков.

-7

Спальня оформлена минималистично в общей гамме интерьера. От наших глаз скрыт туалетный столик. Природную тему поддерживают пуфы из фетра. Похожие на камни они напоминают о приморском пейзаже.

-8

Скрытые системы хранения в прихожей. Она и кухня вместе с гостевым санузлом образуют куб, обшитый деревянными панелями.

Двери шкафов и вход в санузел выполнены из того же материала и воспринимаются как часть стены, что, собственно, сильно снижает уровень визуального шума.

-9

Мебель и декор подбирались так, чтобы создать природную расслабляющую атмосферу, без излишних отвлекающих подробностей. При сходной палитре интерьер строится на нюансах фактур и объемов.

Природные формы, натуральные материалы, фактурные ткани формируют friendly-пространство, где хорошо и спокойно.

Весь интерьер выглядит единым за счет «перетекания» отделочных материалов из зоны в зону.

А так как мы больше вдохновлялись и тропической зеленью, и теплотой дерева и просторами северного побережья, здесь на полах дубовый паркет, стены отделаны декоративной штукатуркой с шероховатой, приятной на ощупь текстурой.

Но фишкой всего проекта является отделка стены за камином, имитирующая наскальный камень, и дающая ощущение теплоты и нерукотворной природной красоты.

Получается такое пространство для настоящих путешественников. Уютное, комфортное, уединенное. В нем приятно отдыхать после долгих перелетов и настальгировать по путешествиям.

А как вам такие решения поставленных задач? Справились ли мы с вызовом?