Найти в Дзене
DIVAN.RU

Двушка 62 кв.м: элегантный интерьер для семьи с двумя детьми

Эта квартира «5/2»: ее владельцы проживают за городом, а здесь остаются с понедельника по пятницу — в рабочие будни. Заказчики хотели видеть интерьер минималистичным, но «с характером», и дизайнеру удалось реализовать задуманное. Об объекте: двухкомнатная квартира 62 кв.м, г. Пермь
Автор проекта: дизайнер Анна Березняк, стилист Галина Зак, автор фото Виталий Жданов
Бюджет проекта: 3,5 млн рублей Квартиру приобрели с черновой отделкой. Владельцы посчитали планировку от застройщика удачной, поэтому ее не меняли. Расположение комнат действительно оказалось функциональным: в квартире организовали изолированную кухню, гостиную, детскую для двоих детей, санузел и хозяйственное помещение. Несмотря на небольшую площадь, комнаты выглядят просторными: светлые стены визуально расширяют пространство. В отделке использовали материалы с естественными текстурами камня и дерева. Комната оформлена в элегантном стиле контемпорари. Монохромную отделку разбавили яркой мебелью и декором. Гостиная выполняет
Оглавление

Эта квартира «5/2»: ее владельцы проживают за городом, а здесь остаются с понедельника по пятницу — в рабочие будни. Заказчики хотели видеть интерьер минималистичным, но «с характером», и дизайнеру удалось реализовать задуманное.

Проект дизайнера Анны Березняк, стилист — Галина Зак, автор фото — Виталий Жданов
Проект дизайнера Анны Березняк, стилист — Галина Зак, автор фото — Виталий Жданов

Об объекте: двухкомнатная квартира 62 кв.м, г. Пермь
Автор проекта: дизайнер Анна Березняк, стилист Галина Зак, автор фото Виталий Жданов
Бюджет проекта: 3,5 млн рублей

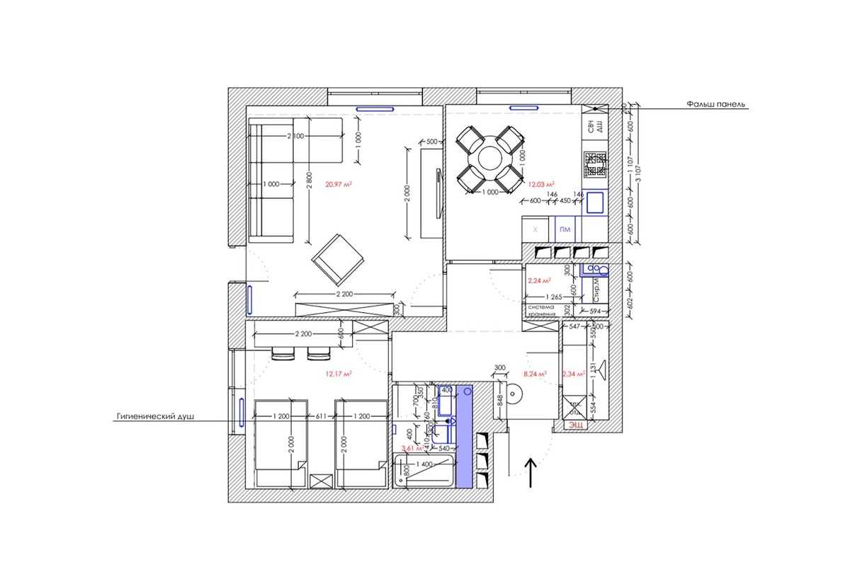
Квартиру приобрели с черновой отделкой. Владельцы посчитали планировку от застройщика удачной, поэтому ее не меняли. Расположение комнат действительно оказалось функциональным: в квартире организовали изолированную кухню, гостиную, детскую для двоих детей, санузел и хозяйственное помещение.

Планировочное решение и расстановка мебели
Планировочное решение и расстановка мебели

Несмотря на небольшую площадь, комнаты выглядят просторными: светлые стены визуально расширяют пространство. В отделке использовали материалы с естественными текстурами камня и дерева.

Гостиная

Комната оформлена в элегантном стиле контемпорари. Монохромную отделку разбавили яркой мебелью и декором.

Гостиная выполняет роль родительской спальни, поэтому сюда нужен был диван с механизмом раскладывания. Искали модель в зеленой обивке — таким было пожелание заказчика.

Мы пересмотрели массу вариантов и остановились на диване Дисент от divan.ru, — рассказывает дизайнер проекта. — На сайте бренда есть “Конструктор” диванов, где можно поменять обивку понравившейся модели. Кстати, образцы ткани можно бесплатно заказать домой — очень удобно примерить оттенок и фактуру еще до заказа.

В кадре: диван Дисент, divan.ru >>

-5

▶️ Этот диван сейчас можно купить со скидкой до 13 000₽*. Превратите дом мечты в реальность меняйтесь и меняйте интерьер вместе с divan.ru >>

Кухня

На кухне царит серый монохром с акцентами синего и золота. Одноуровневый гарнитур изготовлен на заказ, от верхних шкафов отказались намеренно: заказчики не планируют часто готовить. Однако кухню укомплектовали необходимым набором техники: варочной панелью, духовкой, посудомоечной машиной, микроволновкой и холодильником — часть бытовых приборов встроили в пеналы по бокам гарнитура.

Детская

Комнату гармонично оформили для разнополых детей — пространство визуально зонировали мебелью и разноцветными неоновыми буквами. Обратите внимание на акцентную стену: графичный лев — ручная роспись, выполненная художником.

Рядом с яркой дверью установили стеллаж, который переходит в широкий рабочий стол — за ним удобно делать уроки вдвоем. Спокойная интерьерная палитра универсальна: обстановку в комнате легко поменять по мере взросления детей.

Санузел

В санузле комбинированная отделка: в душевой уложили керамогранит под мрамор, остальные стены покрасили матовой краской. Стеклянная перегородка выполнена на заказ из тонированного стекла. Обратите внимание, как фасады шкафчика над инсталляцией сливаются с отделкой — абсолютный минимализм и отсутствие визуального шума.

Прихожая

Планировка от застройщика предполагала два санузла, но во втором организовали хозяйственный блок, где установили стиральную машину. Основное хранение организовано в прихожей: здесь обустроили полноценную гардеробную. Светлую отделку помещения разбавляет декор в стиле нео-мемфис — оформление с порога намекает на элегантный минимализм и интерьер квартиры с «характером».

=========

Оцените интерьер в комментариях, а если материал понравился — не забудьте поставить лайк.

🖤Диван.ру — не только блог про интерьеры, но и производитель доступной дизайнерской мебели. Ищите новые идеи и переходите на сайт, чтобы воплотить их в жизнь.

*Цены актуальны на момент публикации статьи